5个月大的蒋蛋蛋,他和太奶奶、外公、外婆、爸爸、妈妈一起生活在建筑面积60平方米、层高3.25米的家中,这个30多年没有装修的老房子,给一家人的生活,带来诸多烦恼。

原始户型图
问题一:卫生间规划不合理
卫生间位于厨房里面,出入不便,规划不合理。

卫生间改造前
问题二:卫浴空间狭小
卫生间连2平方米都不到,在如此狭小的空间里上厕所、洗衣服、洗漱、洗澡……完全没有舒适度可言,全家都要在卫生间修炼“忍术”。

走道改造前
问题三:令人崩溃的储物危机
将空间的上方用来储物,但是:1、整个空间会变得非常压抑、阴暗。2、拿取物品不方便,基本上放进去就不想拿出来,想拿的时候却根本找不到。

储物间改造前
5平方米的储物间全都用来放东西,你知道魔都的房价有多高嘛?!用30万的空间去放3块钱一瓶的矿泉水!关键是还堆满了!

问题四:层高尴尬,使用有限
3.25米的层高其实特别尴尬,因为不管怎么分割,都会有一层让人站不直啊!而且如何爬上去这个问题也是相当的棘手啊!简易爬梯,太陡;普通楼梯,太占地方,如何是好?!愁死个人了......
设计师神改造

原始平面图

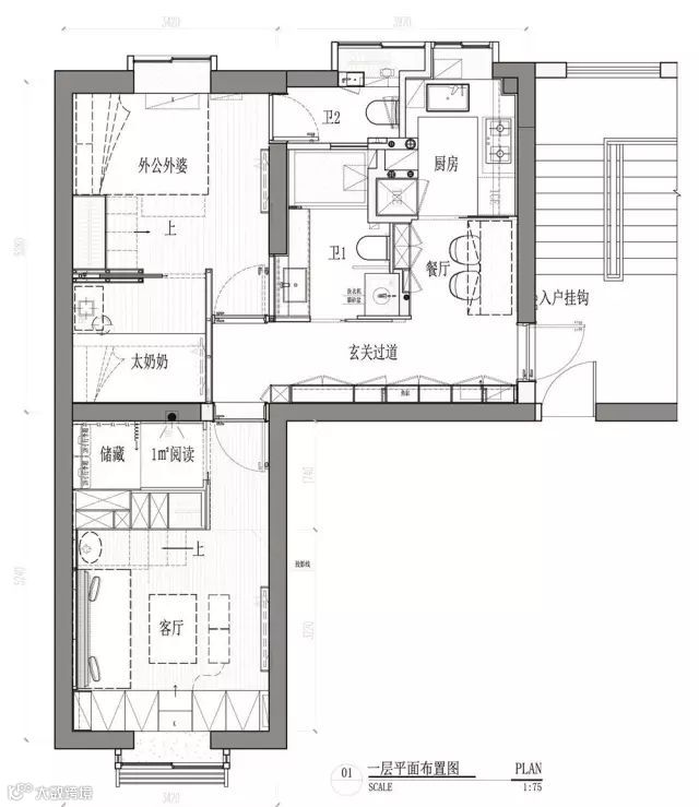
一层平面布置图
入户门的最大问题就是两家挨在一起 ,当防盗门打开的时候,另外一扇门无法打开 ,防盗门整体平移20公分,解决邻居互相冲突的问题。
防盗门移20公分后 ,过道会多出整个30公分的空间,设计师做了整面墙的超大容量鞋柜,彻底解决了一家六口人所有鞋物的收纳问题 。

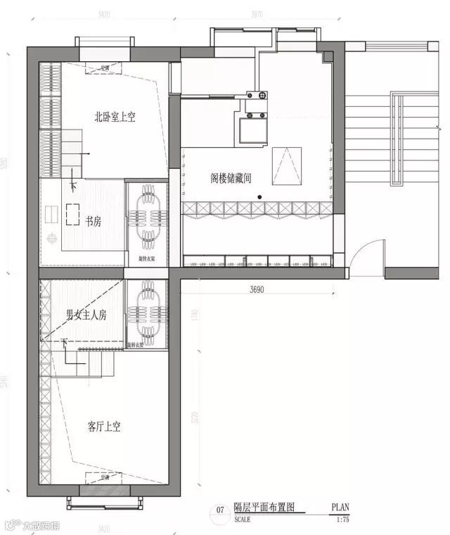
错层平面布置图

改造后客厅

改造后客厅
楼梯坡度缓和,不占用任何空间,老年人也能轻松使用。

改造后客厅

改造后客厅
可移动楼梯,吊柜再高也不怕拿不到里面的东西。

改造后客厅

改造后客厅

改造后卧室

改造后隐藏的阅读区

老人房改造后

老人房改造后

老人房改造后
太奶奶的床可以电动调控角度。

错层书房

旋转衣架


卫生间

卫生间

卫生间

一楼过道


隐藏式的爬梯 ,当然这个爬梯平时收起来不占地方 ,那如果要拿取上面衣物的时候,还是可以把它整个拉下来。

餐厅与厨房

厨房

玄关鱼缸
来源:绘本家居(ID:huibenwang)

