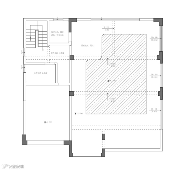
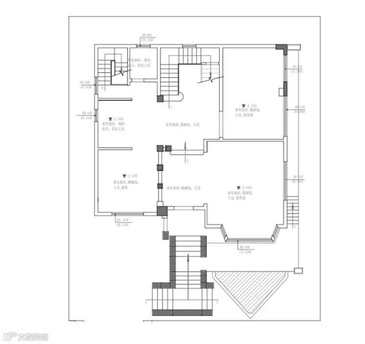
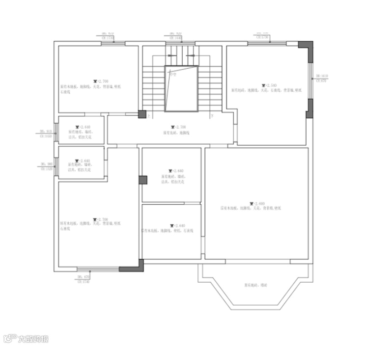
项目信息
|
房屋面积 |
890m² |
|
设计风格 |
现代轻奢 |
|
户型配置 |
别墅 |
|
楼盘名称 |
金桂花园 |
|
装修公司 |
广州大辰装饰 |


客厅


精致而又典雅的空间,设计师摒除过于繁琐的细节,利用大横厅的尺度优势,强调体块之间的穿插和组合关系,营造出一种干净整洁、具有现代感的氛围。
餐厅
餐厅的设计与客厅一墙之隔,设计感满满的餐桌和墙壁挂画,点缀四季三餐的温馨气息。作为点睛的吊灯装饰,使得空间高贵精致感油然而生。
吧台

贵气与时尚为灵感来源,构建一个轻奢、精致的现代家居空间,让其承载更多关于家的热爱和眷恋。
厨房

楼梯

以灰色调和米色调为主,让空间厚重而不沉闷,营造一种舒适的环境。
台球室

影视厅

卧室


设计师在卧室同样采用明快的现代轻奢设计风格,透过墙面设计和天花线条展现整体空间独特之处:精致、庄重、浪漫,描绘出时尚优雅的生活蓝图。
书房

书房就像是一面通向心灵世界的窗,所以书房的设计需要驾驭住自由与浪漫。书房氛围感的营造,光线起着非常重要的作用,我们要确保空间的明亮度,但又不能会眼睛造成伤害。射灯选择上,柔软的光线效果为最佳。
儿童房

儿童房设计注重儿童的自由随意与舒适性,儿童房在设计上也格外用心,儿童房采用富于变化的色彩,天花吊顶采用图案造型,各式各样的娱乐都体现出设计师对于儿童房设计的自由理念。
主卫

现代轻奢风格更注重生活质量,装饰上面的外观一般简约豪华,为每一位业主营造一个完全放松的家居环境。
阳台

现代轻奢造型,一种气质视觉的传达,不是靠一个细节或一种元素,它往往是多个细节 元素组合而来,优雅舒适简约有气质,不一般的现代轻奢……简直美爆!
















