新中式,是一种具有深刻文化内涵和时代特色的设计理念,这种设计理念不仅让传统中式风格焕发出新的活力,也让现代设计更加具有文化底蕴和内涵;是对中国传统文化的传承和发扬,也是对现代设计理念的创新和发展。
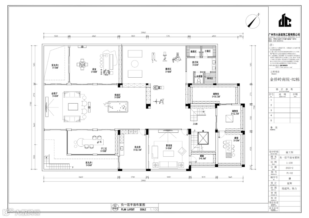
▲-1F设计图
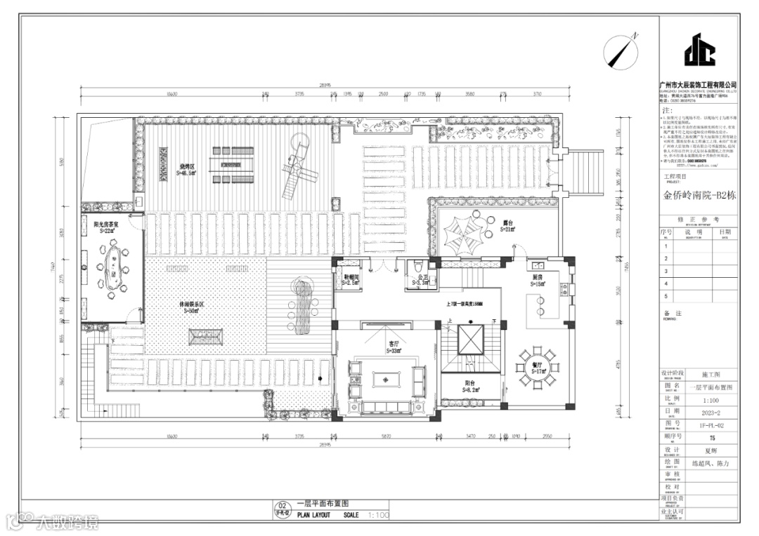
▲1F设计图
▲2F设计图
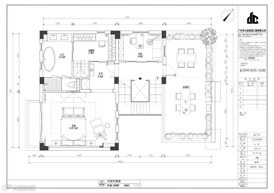
▲3F设计图
项目地址:金侨岭南院
Project address
项目面积:1200㎡
project area
项目设计:大辰装饰 夏辉
Project design
项目施工:大辰装饰
Project construction
这是一套1200㎡的独栋别墅,整个空间氛围定义为新中式,功能上以三代同堂的居住需求为主;设计师从现代审美趋势中汲取灵感,将传统元素与现代元素进行糅合,创造出既具有传统韵味又符合现代审美需求的设计作品。
负一楼
-1F这一层的设计充满了创意和巧思,大面积的柜子巧妙地将会客厅和休闲娱乐分开,既保证了空间的独立性,又满足了基本需求,又实现了功能的多样性。在这里,家人可以尽情享受精神上的洗礼,感受家的温暖和幸福。
1F主要作为客厅、厨餐厅功能区,将所有的琐碎日子都糅在这个空间里。
玄关
中式盆栽、棕色木质柜、黑色大理石线条装饰、鎏金纹大理石背景墙,这些元素都带有浓厚的中国传统文化和审美特色,设计师将它们巧妙地融合在一起,营造出一种既传统又现代、典雅又奢华的空间氛围。
客厅
玄关后面紧接着是客厅,且两侧均有门可以进入,这种设计巧妙地融入了对称性的美学原则,体现了天地之道、阴阳之理,同时也是礼仪之制的重要体现,这种设计理念在现代家居中同样具有深远的意义。
当中式灯具与东方意境的古韵美与现代设计风格相遇时,整个客厅仿佛被赋予了新的生命与灵魂。这种融合不仅展现了传统与现代的和谐共生,更营造出一种独特而迷人的空间氛围。
厨餐厅
通过巧妙地运用复古与现代的设计元素,成功地营造出了一个既传统又现代、既温馨又舒适的空间氛围。它仿佛是一个时光隧道,让人在品味古韵的同时也能感受到现代生活的美好。
金属玻璃推拉门作为厨房和餐厅隔断,整个设计更加具有趣味性。厨房的设计比较注重实用性,深棕色和白色的主色调相互映衬,为整个空间营造了一种既稳重又不失清爽的氛围。木质橱柜的选用,不仅增添了自然与温馨的气息,还体现了设计师对传统材质的理解与运用。
2F和3F均为睡眠区,保持私人的独立睡眠空间,给所有成员一个私密的休憩空间
卧室
二楼的三个卧室设计风格一致,充满了国风的气息,每个房间最为引人注目的便是那面国风高山背景墙。家具的款式和颜色都与国风背景墙和暖色灯线相协调,形成了和谐统一的视觉效果,营造出了一种独特而富有韵味的空间氛围。
主卧
现代人对于居住空间的追求,越来越倾向于简单舒适、温馨实用;设计师在设计主卧时,摒弃传统中式风格的束缚与繁杂,化繁为简,将现代生活理念融入其中,减少了许多奢华的装饰,营造出一种简约而不失雅致的空间氛围。
主卫
主卫的设计比较大胆前卫,灰色大理石的运用与金属框的点缀,巧妙地将现代感与奢华气质相融合,营造出一种既宽阔又明亮的视觉效果。
书房
书房的布局简单而实用,书桌摆放在靠窗的位置,充分利用了自然光线。整个书房以纯木色为主色调,从地板到书架、书桌,都采用了木质的材料,营造出一种温馨而舒适的学习氛围。

