
现代轻奢 高级生活
-
本案坐标珠海,660㎡建筑加上800㎡花园。业主一家三口,恩爱的夫妻和一个可爱的小公主。对于家,希望环保、实用,不喜欢过于复杂的装饰。此项目设计师从珠海景色竞芳艳的自然着手,探寻当地文脉气息,将那份自然的灵性与人文的厚度相结合,以简洁纯粹的手法营造一个温暖、舒适、富有人文情怀的空间。

仿佛是一场古今对话,而 c 位的吊灯则是那个媒介。取形于齐白石的《借山图》,将那份恣意洒脱的画风凝固于此,似云似水,将那份珠海的柔情的海滨花园之感表达的淋漓尽致。


客厅进行了挑空设计,挑空高度 6.85 米,设计师认为黄铜元素是轻奢空间不可缺少的固定搭配,天生自带光效的金属质感与独特的造型唤醒整个空间氛围,起到画龙点睛的奇妙效果。


旋转楼梯的点睛,螺旋状由上至下逐步递减的主灯,造型由“鱼”简化现代手法寓意深远.将光与水凝固于此,当窗外的光线打进来,映照在玻璃和木材及结构型材上,二维世界与三维世界的碰撞,虚幻与现实的交叉,带来一场美妙的对话。








主卧的整体空间还是比较大的,形成了一个完整的生活轨迹。落地玻璃门将睡眠区与休闲区隔绝开来,让阳台成为简单独立的休憩空间,让空间独立的同时,透明的材质丝毫不会影响采光。阳光洒落,奶白色的床体折射出温馨柔和的微光,很是惬意。


旁边进去就是衣帽间,同样采用透明的柜体,让内部衣物更加清楚明了,方便快捷找到自己的今日穿搭。旁边贴心的设置了全身镜,同时加上梳妆台,让精致的穿搭立马配对最适合的妆容。



小公主的卧室以粉色为主打色系。灰粉色满足了小女孩的公主梦,又不会过分跳脱和主体设计割裂开来。无主灯的设计使整个空间不会有过分刺眼的光源,加上粉色窗纱营造了一个梦幻温馨的小窝。


一楼的两个客卧风格大致相同,统一的无主灯设计将“好睡’哲学贯穿到底。简约大气的设计,不管是长辈还是好友都不会有突兀感。


地下室是一个多功能的休闲区。主体是客厅的形式,和亲朋好友在此品茶聊天,蜂窝状绒质沙发舒适感更足,面对面的交流减小距离感。


沙发后面就是岛台,闲暇之余可以作为操作台沏杯咖啡,洗洗水果很是方便。黄铜自带光效的金属感,与轨道灯相配合,使整体空间视觉上更加开阔,岛台底部的灯光,也使整体更具氛围感。


健身区没有绝对的封闭隔绝开来,可以透过方窗看到外面的景色。条形的不规则懒人沙发.也增强了一丝趣味和视觉的差异感。工作之余来一次大汗淋漓的身体宣泄,让精神和身体同时得到解脱和自在。


影音室进行了双排沙发的设计,可以实现多人观影,一家人的亲子时光在这里度过再合适不过了。旁边小置物台可以承载观影美食,边吃边看,人生一大自在。


庭院是一个巨大的游泳池,既可以为一家三口提供一个娱乐欢愉之地,又让那一汪蓝仿佛镶嵌一般融于周围景色。绿植的点缀与池水灯光搭配的恰到好处,夜幕下水天呼应,充满生机。设计师用现代手法将法式的浪漫结合一一水景、端景,构建一个“大隐于市”的雅致生活圈。


旁边还设置了休息区,凉亭的设计可以在夏季阻隔阳光。木制的地板防滑性更好,安全性更高。同时木质可以更好地融于环境,与绿植呼应。游泳嬉戏后在凉亭里喝杯果汁,吃点点心,好不惬意自在。

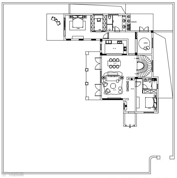
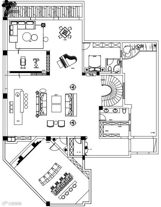
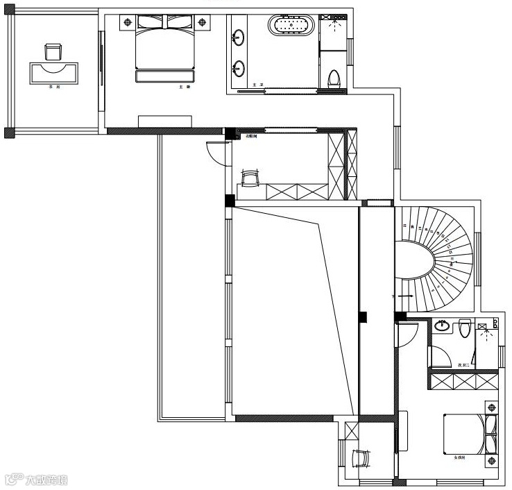
平面规划

△F1方案图

△F2方案图

△BF方案图
往期精彩
追求宁静致远,崇尚简约之美
低调奢华,设计与品质的完美体现
传世大宅,新古典风装饰主义
灵韵雅居,抒写生活与艺术的平衡美
隐谧东方,诗意栖居

卡蘭蒂斯创办于2005年,总部位于广东广州,多年来专注于高端私人定制、全球产品运营、室内设计推广、家居产品研发。创办以来卡蘭蒂斯即对高端家居经营领域不断进行深入研究,整合专业装饰设计和施工力量,以国际视野专业执行、诚信服务,提供室内设计、装饰工程、软装陈设等在内的高端整体定制服务。十余年间已为万千客户提供了优质的家具和服务,逐步形成多元化综合型的全球品牌战略集团,在北京、上海、四川、陕西、江苏、辽宁、山西、河南、河北、广西等直辖市及省会城市均有分公司。
卡蘭蒂斯集结了由知名海归设计师、白金售后服务队伍等组成的精英团队,提倡新匠人精神,向客户提供高效的专业服务,以最感恩的心态赢得最诚挚的认同;主动建立并不断完善企业社会责任管理体系,践行一流产业集团的社会责任。
独家首发,未经授权,严禁转载,欢迎转发至朋友圈。
更多精彩请关注
▽

400-056-7020