项目地址:广州天河橡树园A1栋
项目用途:私人住宅
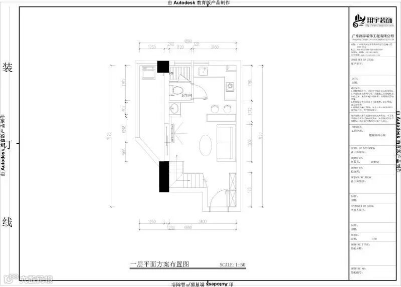
项目面积:35平
设计风格:现代风格
主要用材:艺术涂料,马赛克,不銹钢等
一楼效果图

设计初衷:本户型为LOFT公寓,业主是一位单身高知女性,对生活品味要求较高,希望家里的空间有层次有质感,并可以有足够的收纳空间。
考虑到业主平时没有在家煮饭的习惯,设计格局的时候就弱化了厨房的功能改为开放式厨房加吧台的形式,既保证了通风采光,又减少了墙体加大了人的活动面积。原户型的双扇落地窗采用固定一扇,前面新砌电视背景的做法,既保证了原有的通透,又丰富了空间的层次。
二楼效果图

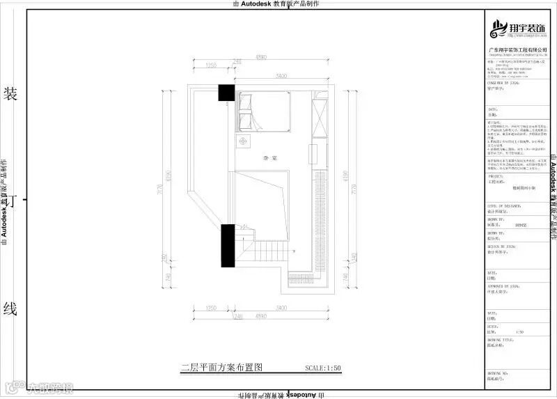
二层采用减小中空,利用过道位置来做衣柜,使空间有了非常强大的储物空间,睡眠区采用靠墙形式,方便二楼的出入活动。
整个空间色调采用业主钟爱的北欧冷淡风,以灰色调为基础,在空间上以材质体现整个空间的质感,做到简约而不简单。
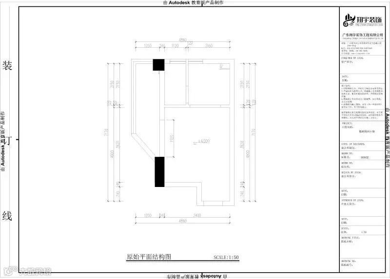
原始平面结构图

一楼平面图

二楼平面图




