
ORIENT RESIDENCES
“建筑的实质是空间,空间的本质是为人服务。”
——— 约翰.波特曼如是说
东胜·天御效果图
东胜·天御效果图
东胜·天御效果图
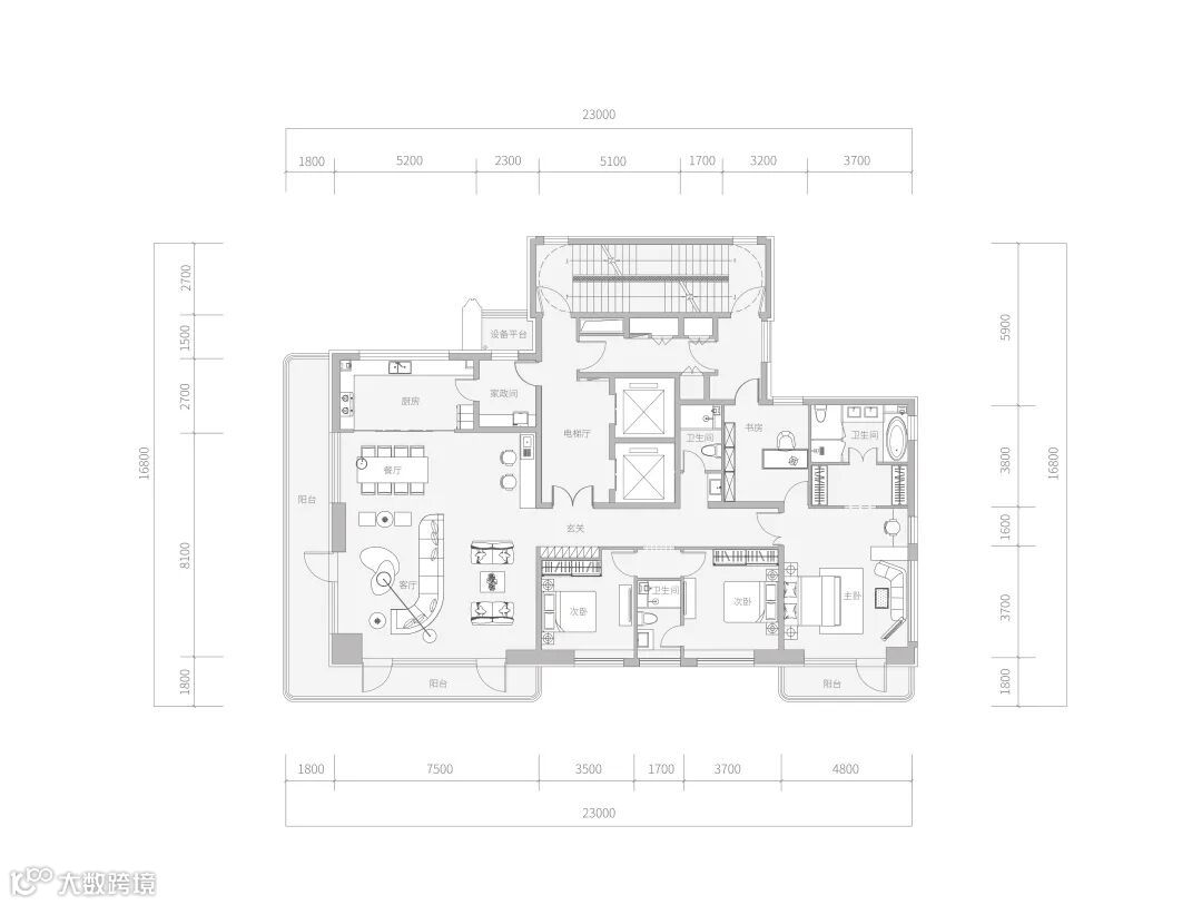
东胜·天御建面约300㎡户型图

港誉城市服务集团
ORIENT RESIDENCES
“建筑的实质是空间,空间的本质是为人服务。”
——— 约翰.波特曼如是说
东胜·天御效果图
东胜·天御效果图
东胜·天御效果图
东胜·天御建面约300㎡户型图
