建筑是城市的灵魂,线条是建筑的精髓。一条条流淌于城市的建筑线条,或别出心裁,或气势恢弘,或婉约细腻,曲里藏彩,线中流光。它们勾勒出城市的模样,也刻画出人们的幸福。
在城市规划设计师的眼中,我们生活的这座城市,拥有怎样独具气质的灵魂建筑?历经风雨变迁,什么样的产品才能重塑城市天际线?12月13日,东胜集团首席技术官兼研发设计中心总经理段玉忠做客FM88.2石家庄新闻广播《都市精英》栏目,聚焦城市风貌提升之变,解读城央豪宅之美。
最近,行走在大街小巷,总是会让人不觉感叹,石家庄的变化太大了!昔日的私搭乱建不见了,取而代之的是一条条整洁的街道、一个个宜人的小花园,还有“我们如此热爱石家庄”的文字涂鸦墙等网红打卡地,每一个细微的变化,都体现着石家庄逐梦前行的铿锵足音。毕业于同济大学城市规划与设计专业的段玉忠,曾在同济城市规划设计研究院、复旦规划建筑设计研究院等机构任职,自来到石家庄之后,出于自身专业的敏感,他强烈感受到城市发展带来的剧变。在他看来,2021年,石家庄迎来快速发展的关键之年。“二环内做‘减法’,二环外做‘乘法’”、棚户区改造和城中村拆迁改造、路网延伸、公共配套建设等一系列政策和措施的加快实施,使得城市环境持续改善,城乡面貌日新月异。
段玉忠表示,其参与设计开发的东胜·天御,正是石家庄精细化设计管理下的标杆项目。从外立面上,东胜·天御将扎哈的弧线灵感与玻璃幕墙、航空级铝板和精工细节相结合,形成东胜·天御立面特色。优美的曲线,配合玻璃幕墙,层层叠叠间,好似律动的钢琴键,呼应着有山有水的优雅生活;而非对称的立面,则如张开的双翼,振翅欲飞,强化着建筑的自由,充满着艺术时尚和科技感,力争给石家庄留下一所收藏级的艺术地标。
东胜·天御效果图
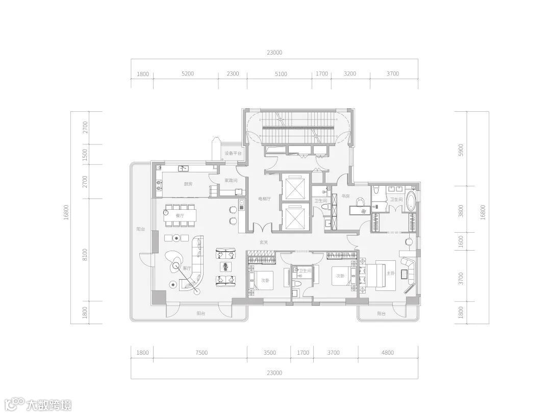
在室内空间上,东胜·天御也做到了极致。段玉忠介绍,除了一栋建面约145㎡的户型外,所有户型均做到了4-5米面宽,层高3.15米起步,建面约200㎡及300㎡的户型更是将层高做到了3.3米。特别是建面约300㎡环幕大平层,两梯一户,一层一户,LDK+B无界横厅,长达9米的艺术走廊,22米的L型游轮甲板式观景阳台,270-360°落地观景窗,无一不体现出主人的格调与品位,开创石家庄市场的新趋势。功能性和舒适性兼备是东胜天御的硬性要求,从功能性户型向体验户型转变,才是东胜·天御的灵魂所在。比如仪式感的玄关、可变性的户内空间、科技感的智能化设备等,让生活与“空间”更和谐。
东胜·天御建面约300㎡户型图
东胜·天御效果图
对标洛杉矶比弗利山庄,东胜·天御于城央打造了3.3 万㎡立体沉浸绿洲。两环+两轴+多个环抱入户花园+私享花园的自然形态,通过不同层次、自然空间的曲折变化、层层递进的空间序列,营造出世界级漫奢森居景观体验。于方寸之间见天地,东胜·天御形成了下沉艺术庭院、圈层社交会所、生态漫步系统、架空层泛会所等高低错落的公共空间体系,在这其中,各类的生态绿植恣意生长,绿意层叠,成山似林,已然分不清是在建筑中布下了绿植,还是在森林里种下了建筑。

东胜·天御效果图
时代大潮下,段玉忠表示,一大批新的时代精英正不断进化,对产品、消费和生活,提出了新的审美诉求。我们的产品也要不断迭代升级,从家庭、居住、健康、社会等多维度提升每一位居民的生活体验感。好的项目如同东胜·天御,只定制,不复制,这是东胜集团给予城市的答案,以及对土地和居者的尊重。



