大数跨境

东胜·天御 | 以尺度丈量生活气度 诠释城市封面人居

东胜·天御 | 以尺度丈量生活气度 诠释城市封面人居 港誉城市服务集团
2023-11-02
1
生活当有尺度,方容壮阔人生。城央平层之“贵”,不止在于建筑对有限资源的无限占有,更在于生活空间的大有可为,和承载生活的大者礼序。契合市场和时代所需,东胜·天御共鸣执掌城市话语者,基于对峯层生活习惯的精研考量,通过巧妙布局和设计,回应人们对理想生活空间的期待。
在东胜·天御建面约 168 ㎡、200 ㎡、300 ㎡的主力户型内,设计师通过顺畅、流动感的巧妙空间设计,完成不同功能区稳定和谐的组合,恰当融入的机能空间让室内保持极佳的呼吸感,让生活更加无拘。专属独立电梯厅,密便捷配置,让主人从归家的一刻起,就仿若踏进了品质的生活天堂。在这阔朗的空间里,业主可实现更多改造的乐趣,无论是建造单纯的收纳空间,还是自然发挥收纳 + 多功能空间,都更大程度的延伸居者从容生活享受。

东胜·天御效果图

从电梯厅步入室内,LDK+B 无界横厅超越传统餐客厅一体的格局,链接约 1.8 米观景云台,打造无界空间与城市的社交主场;约 7.5 米宽厅尺度,可满足十余人私人聚会,呈现一场空间与匠心的私属领域,成就世家大族的生活主场。餐客厨一体宽厅布局,不仅提供了日常休闲需要,更在满足家庭成员情感维系的同时,营造融合而不混淆的温情交流空间,将生活欢享与社交排场皆糅合于此。

东胜·天御实景图

对于关注家人的塔尖人士来说,在寸土寸金的城市中心,大平层不仅能满足居住需求,还可以给全家人的生活更多宽待。自国家开放“全面二胎”政策以来,二胎家庭数量急速上升,三代同堂的居住需求激增,而东胜·天御阔绰的空间尺度,足可满足从二人世界到三口之家、四口之家甚至三代同堂的所有需求。
东胜·天御实景图
在卧室的设计上,双套房设计与 PLUS 级阔尺相结合,做足了尺寸感、舒适感和仪式感,仿佛每一个空间都被施了魔法一般,让空间有了更强的迭代感。超大独立衣帽间、分段式干湿分区卫生间、合理规划的储纳空间,让功能“扁平化”、生活“私密化”、空间“家庭化”;周到考量老中青三代生活不同侧重点后的洄游式空间规划,处处彰显着优越生活与高阶品质;而利用材质、光线以及声音、温度、湿度等元素把控,营造出每一个场域应有的面貌及生活情绪,最终形成每一间房子的调性和气质。
东胜·天御效果图
从稀有到私有,东胜·天御以尺度丈量生活气度,让每一处空间更贴合生活要求,用一幅幅高品质的居住场景,诠释理想的生活质感,盛放一家人的幸福生活。

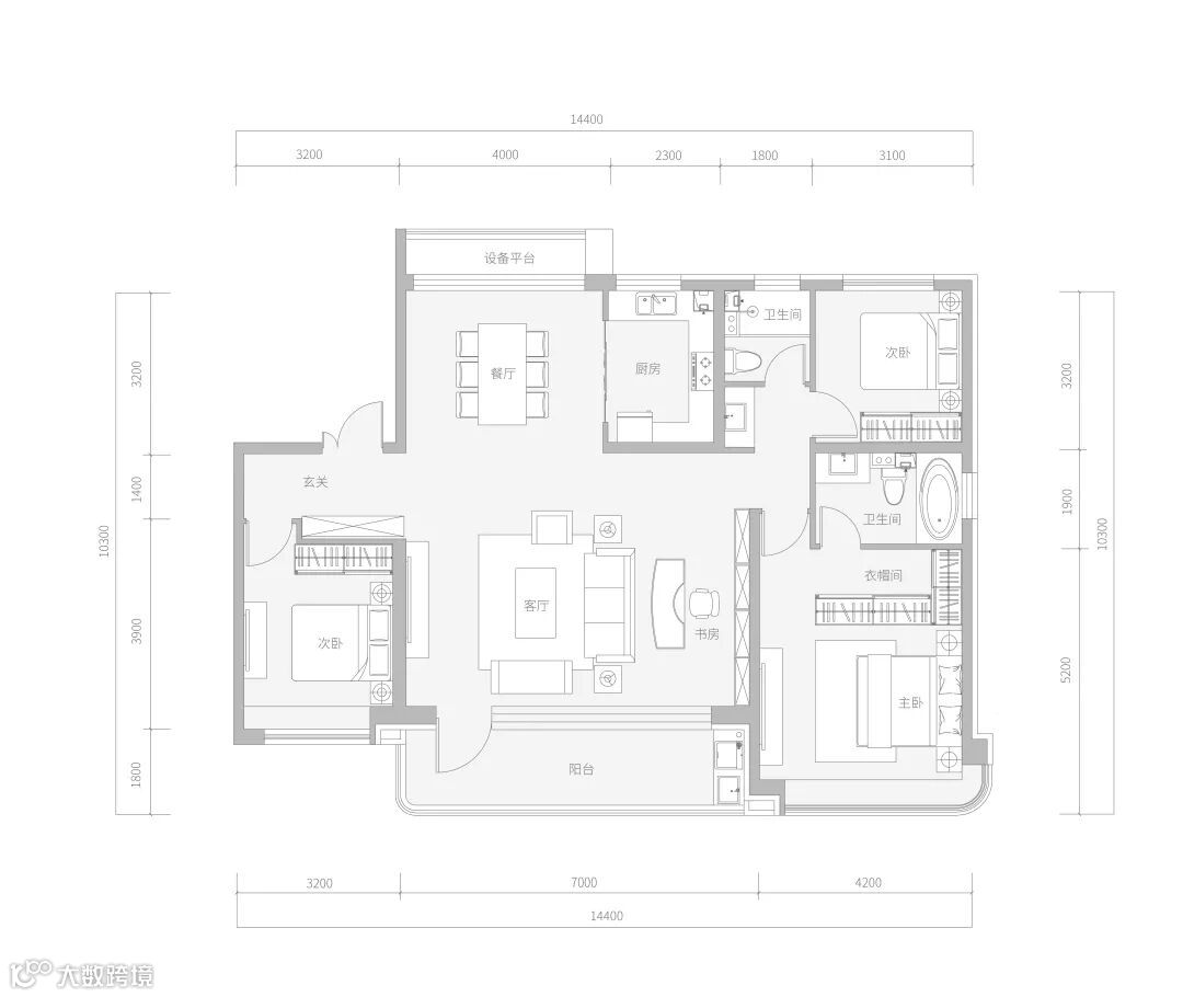
东胜·天御建面约168㎡户型图

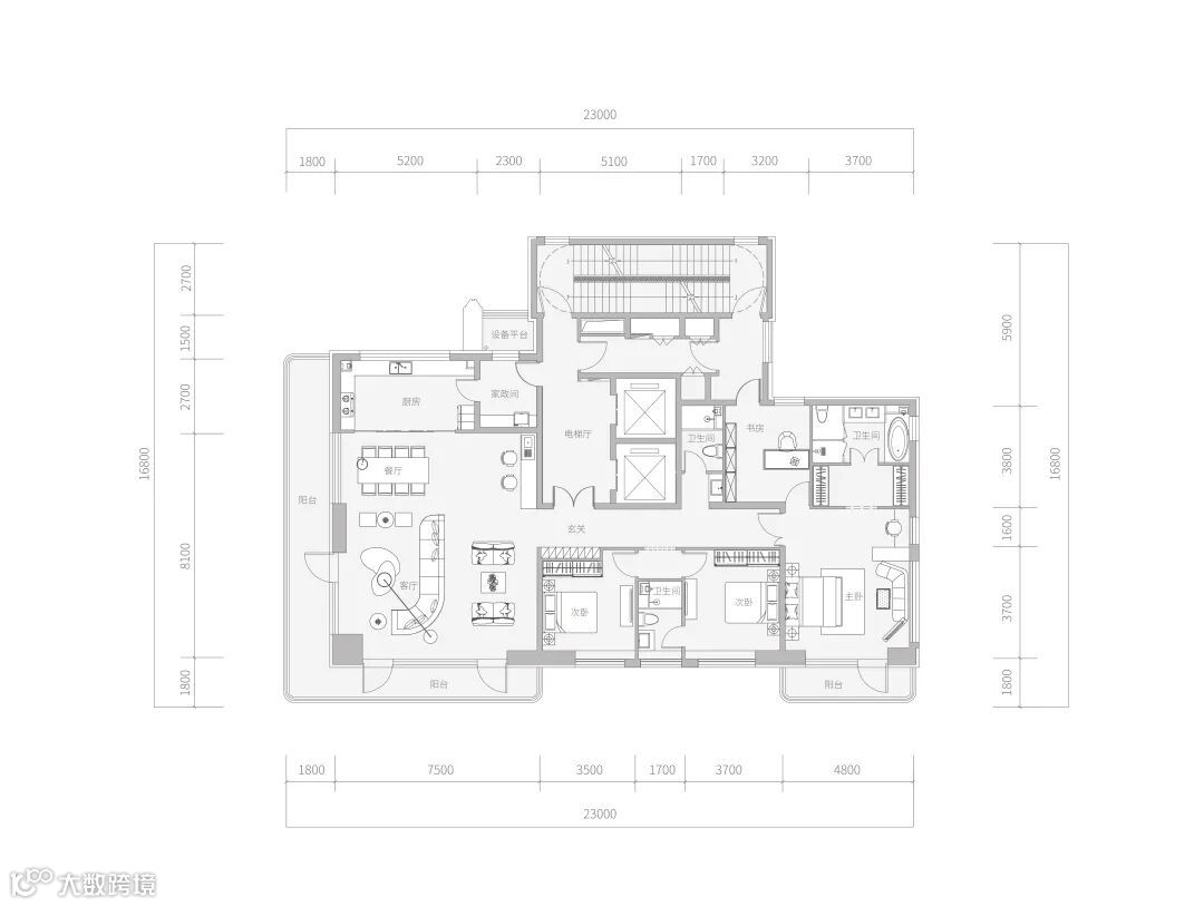
东胜·天御建面约200㎡户型图


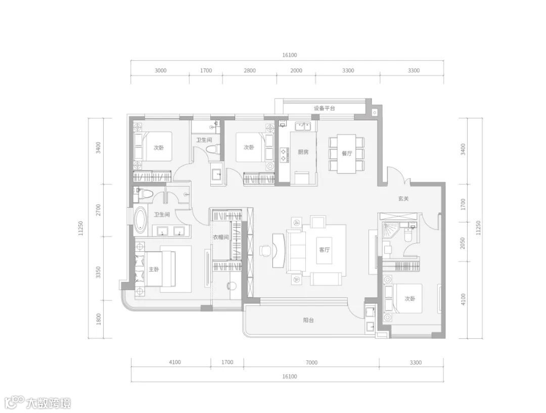
东胜·天御建面约300㎡户型图


东胜·天御城央限定,盛惠双11,520席建筑面积约168-300㎡大平层住宅产品,兼具尊雅舒适性与空间美感,为塔尖人士给予比肩国际的生活方式,值此金秋之际,特惠6重礼,城央争藏正当时。

来源:《东胜》会刊、东胜·天御

【声明】内容源于网络
0
0
港誉城市服务集团
港誉城市服务集团,城市综合运营服务商,深入布局物业管理、环境服务、康养服务三大核心主营业务。以“城市大管家”为角色定位,致力于发展成为行业领先的智慧城市服务平台与客户最信赖的综合服务企业。
内容 1263
粉丝 0
港誉城市服务集团 港誉城市服务集团,城市综合运营服务商,深入布局物业管理、环境服务、康养服务三大核心主营业务。以“城市大管家”为角色定位,致力于发展成为行业领先的智慧城市服务平台与客户最信赖的综合服务企业。
总阅读929
粉丝0
内容1.3k