大数跨境

东胜·天御 | 超越空间限制,重新出发寻找一种全新的生活定义和审美

东胜·天御 | 超越空间限制,重新出发寻找一种全新的生活定义和审美 港誉城市服务集团
2023-06-29
4

建筑的最终意义,是在有限的空间里,实现无限的生活。


东胜·天御超越空间限制,重新出发寻找一种全新的生活定义和审美——7.5 米 MAX 无界宽厅,LDK+B 餐客厅阳台一体化设计将室内布局化繁为简,没有了分割的墙面,餐厅、厨房、客厅功能空间融为一体,分别独立又共通,在增加室内通透感的同时,也让居者的会客、家人的宴会,都有了安放的格局。

东胜·天御实景图


“一座房子一个家,每一个空间承载的是我们每一个家庭的情绪与活动的氛围。”澳大利亚H2 Design Studio PTY 室内板块合伙人武炳章老师谈到,东胜·天御在空间格局打造、产品设计上,均深入考量了现代人居的习惯与需求,从空间释放及功能享受双重生活感知出发,让建筑与美学相辅相成,回应人们对理想生活空间的期待。

东胜·天御效果图


除此之外,东胜·天御 168-300 ㎡环幕大平层,23 米超大面宽视野尺度户型,270°环幕视野,透过大面积的窗,将满园葱翠与蓝天白云尽收眼底,约 7.5 米无界宽厅的全落地玻璃,让阳台与客厅的界限自然消隐。客厅连接南向空中花园,将室外自然景观引入室内,让自然的光景成为客厅重要的装饰,营造更低密,静谧,私密的生活氛围,真正实现有天有地有自然的度假式生活场景。得益于 2.9 的低容积率和 270°的开阔尺度规划,东胜·天御还打造了“甲板式”空中观景步廊,并达到了前所未见的尺度——进深 1.8 米,突破传统阳台 1.5 米进深,增加了 30 公分,22 米一步一景,按照成年人每步 50 厘米的标准,需要走上 44 步,才能游览完整个阳台。

东胜·天御效果图


显然,这方空间已突破常规阳台的空间演绎,而给予了居者全新生活方式的引导——居者完全可以将它打造成一个空中庭院或空中健身房,享受晨间一场露台瑜伽,亦或是约上三五好友一同放松身心,都将是一次难以忘怀的欢愉时刻。“东胜·天御 200 ㎡的户型给我留下了非常好的印象,尤其是他们将动区与静区进行了分离,充分考虑到业主生活空间、会客空间与休闲空间的关系,让生活、休憩、娱乐互不干扰,方便实用更显贴心。”在参观实楼样板间之后,不少购房者如此感叹到。

东胜·天御效果图
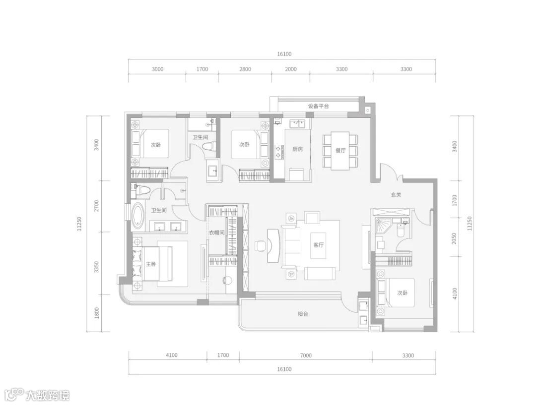
东胜·天御四室两厅三卫户型设计,奢华主卧配备专属独立衣帽间和超大卫浴空间,另外一侧的儿童房打造出亲子互动空间,而南向书房则通过半透的格栅释放空间尺度……一条宽敞走廊链接起主人、孩子、亲友等多元生活版图,使每一位家庭成员进可享受阖家欢乐,共度美好瞬间,退能互不干扰,私享自在时光。在更高能级的规划下,东胜·天御的每一处细节都被提出了更加严格的要求。值得注意的是,东胜·天御在层高上也突破常规,以高出普通住宅约 40 厘米,高约 3.3 米的尺度,营造媲美墅质空间的生活境界。独有的空间比例,意味着建筑格局、楼层构造均要发生颠覆性的改变,也因此而成就了东胜·天御“不卖平方,卖立方”的超高标准,更加匹配高端住宅所应有的尺度与规制。

东胜·天御效果图


每一座骄傲的城市,都在以奔涌向前的气魄,屹立于时代潮头,作为一个城市的“后来者”,东胜·天御将与城市携手续写非凡未来,将独一无二的封面级生活主场,献给追求极致生活的时代精英。
建筑面积约200㎡户型图



【声明】内容源于网络
0
0
港誉城市服务集团
港誉城市服务集团,城市综合运营服务商,深入布局物业管理、环境服务、康养服务三大核心主营业务。以“城市大管家”为角色定位,致力于发展成为行业领先的智慧城市服务平台与客户最信赖的综合服务企业。
内容 1263
粉丝 0
港誉城市服务集团 港誉城市服务集团,城市综合运营服务商,深入布局物业管理、环境服务、康养服务三大核心主营业务。以“城市大管家”为角色定位,致力于发展成为行业领先的智慧城市服务平台与客户最信赖的综合服务企业。
总阅读2.2k
粉丝0
内容1.3k