今库教育
把入户给你最爱的人
日前,佛山市自然资源局
一连发布10份区域控规
覆盖禅城、南海、顺德和高明!
区域控规明确了这个片区的
规划范围、功能定位、发展目标......
赶紧看看你家有没有在片区呢!

快跟着小编一起来看看吧!
↓↓
禅城区
禅城区聚锦路西侧规划道路的控制性详细规划调整出炉。

整体上看,控规片区以陶瓷产业为主,陶瓷厂、村居较多。周边配套有五分公园、禅西智慧新城、石湾公园、佛山市石湾客运站也在不远处,根据控规进行拆除建设,未来人居环境将改善不少。
南海区
南海丹灶则在本次一连发布六个片区控规,六大片区规划面积合计达到逾664公顷,本次控规披露,区域将增加多宗住宅用地和商业用地,未来居住人口规模预计将超过3.7万人。从功能定位上主要突出两大关键词,一个是强中心,一个是环保产业。
高海片区、新安片区和金沙市场片区作为金沙城区的组成部分,在定位上突出与丹灶中心城区、丹灶新城共同发展,形成丹灶镇强中心。
高海片区

点击图片查看控划原文
规划范围:
高海片区位于佛山市南海区丹灶镇中东部,位于樵金中路西侧,北至迎金一路,南至迎金二路、东至樵金中路、西至南沙涌。规划地块东西长约0.98km,南北长约0.81km,规划面积约48.89公顷。

功能定位:
规划区为丹灶镇次级中心——金沙城区,通过樵金路、迎金一路与丹灶中心城区、丹灶新城共同发展,形成丹灶镇强中心。
主导功能:
以居住、工业为主,商业、公服配套服务功能及村庄建设用地功能为辅。
人口规模:
本次规划居住人口由村庄人口和城镇人口组成,经预测居住人口规模为7514人。

新安片区

点击图片查看控划原文
规划范围:
新安片区位于佛山市南海区丹灶镇中东部,位于樵金中路东侧,北侧文沙北路,南至金伟路,东至东平水道,西至樵金中路、规划地块东西长约1.1km,南北长约1.2km,规划面积约83.58公顷。

功能定位:
规划区定位为丹灶镇次级中心组成部分——金沙城区,处于桂丹路综合服务走廊上,通过桂丹路快速通道与丹灶中心城区、丹灶新城共同发展,形成丹灶镇强中心。
主导功能:
以居住、商业服务、公服配套服务功能为主,村庄建设用地为辅。

人口规模:
本次规划居住人口由村庄人口和城镇人口组成,经预测,居住人口规模为10303人。
金沙市场片区

点击图片查看控划原文
规划范围:
金沙市场片区位于佛山市南海区丹灶镇中东部,位于樵金中路东侧,北至金伟路、南至东阳一路、东至天晟海琴湾,西至樵金中路。规划地块东西长约1.8km,南北长约1.26km,规划面积约107.82公顷。

功能定位:
规划区定位为丹灶镇次级中心组成部分——金沙城区,处于桂丹路综合服务走廊上,通过桂丹路快速通道与丹灶中心城区、丹灶新城共同发展,形成丹灶镇强中心。
主导功能:
以居住、工业为主,商业、公服配套服务功能及村庄建设用地为辅。

人口规模:
本次规划居住人口由村庄人口和城镇人口组成,经预测居住人口规模为9499人。
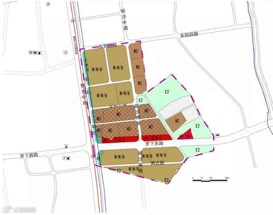
鳗鱼场片区

点击图片查看控划原文
规划范围:
鳗鱼场片区位于佛山市南海区丹灶镇中东部,位于樵金中路东侧,北至迎金二路、南至东阳四路、东至天晟海琴湾,西至罗行小学。规划地块东西长约2.29km,南北长约1.58km,规划面积约172.51公顷。

功能定位:
小型环保产业集聚发展示范区。
主导功能:
以环保产业功能为主,村庄建设用地和配套服务功能为辅。

人口规模:
本次规划居住人口由村庄人口和城镇人口组成,经预测,居住人口规模为6158人。
罗行片区

点击图片查看控划原文
规划范围:
罗行片区位于佛山市南海区丹灶镇中东部,位于樵金中路西侧,北至罗下东路,南至中安大道,东至樵金中路,西至南沙涌。规划地块东西长约1.94km,南北长约1.87km,规划面积约158.86公顷。

功能定位:
规划区定位为小型环保产业集聚发展示范区,展现罗行竹编文化和岭南水乡特色为主,兼备休闲体验生态宜居社区。
主导功能:
以居住、工业为主,商业、公服配套服务功能及村庄建设用地功能为辅。

人口规模:
本次规划居住人口由村庄人口和城镇人口组成,经预测,居住人口规模为3673人。
下滘片区

点击图片查看控划原文
规划范围:
下滘片区位于佛山市南海区丹灶镇中东部,位于樵金中路东侧,北至东阳四路、南至罗下东路,东至下滘村、西至樵金中路。规划地块东西长约1.16km,南北长约1.25km,规划面积约92.6公顷。

功能定位:
规划区定位为小型环保产业集聚发展示范区。
主导功能:
以环保产业功能为主,配套服务功能为辅。

人口规模:
本次规划区为设计规划人口,因此规划区人口为0。
狮山

点击图片查看控划原文
本次局部调整主要调整内容包括用地性质、用地指标、配套设施和指导性道路调整,其中指出规范区内建筑限高按机场限高控制,建筑高度不应超过41米。

顺德区
围绕广佛环线、地铁3号线与广州地铁7号线等轨道交通优势,佛山新城又一片区发布了最新区域控规,将打造广州大学城卫星城创新基地、人才集聚小镇;顺德北部片区产居融合发展、创智社区枢纽。

根据佛山市自然资源局修编批后公布的《佛山市佛山新城(原东平新城)东部片区控制性详细规划(益丰停车场及周边片区)》,规划区主要涉及的北滘高村及陈村镇部分用地拟打造成顺德TOD综合开发典型示范;创建“水乡”、“岛居”、“小镇”模式的大学城卫星城创新示范区。
根据新出炉的用地规划,城市建设用地面积为98.77公顷,占规划区总用地面积80.69%,包括居住用地公共管理与公共服务设施用地、商业服务业设施用地、道路与交通设施用地、绿地与广场用地5大类。其中,公共管理与公共服务设施用地主要为中小学用地,总用地面积为5.49公顷,也就是说,届时片区将有新建中小学校。
据了解,该片区是顺德北滘目前人才住房、新建住宅最为集中的片区,除了已有美的壹号公馆、合景天銮、美的绿城凤起兰庭等新建住宅社区,美的领贤公馆等人才住房社区,还靠近多个时政公园、文化配套等公共设施,包括北滘体育公园、北滘文化中心和北滘公园等。
同时,还有广佛环线、地铁3号线与广州地铁7号线等轨道交通在片区经过,可以互联广佛两地,靠近美的集团等企业总部,具有打造广州大学城卫星城创新基地、人才集聚小镇的先天优势。
高明区
本次同步发布的区域控规中,还包括高明城南片区。根据最新批后公布的《佛山市高明区明城镇城南新区控制性详细规划》(GM-D-02-05、GM-D-03-01单元),城南新区部分区域将功能定位成运动体验功能、休闲商业功能、生态人居功能、公共服务功能。

城南新区位于明城镇主城区以南,北至明七路,东至白管村,西至龙潭村,南至明阳山,沧江河呈东西向穿越规划范围内北部,涵盖沧江河南北两岸,与老城区南北相望。本规划范围为城南新区土地利用规划的允许建设用地范围,总面积约1.29平方公里。根据广东省对特色小镇住宅用地比例的有关政策要求,城南新区的土地使用为居住面积约38公顷,规划居住、商业、公共管理与公共服务设施混合用地用地30.33公顷,占规划总用地面积的29.38%,建成后规划总人口约为1.2万-2.1万人。
值得一提的是,同一片区的明城镇东洲鹿鸣体育特色小镇已在2017年9月入选为全国首批运动特色小镇试点,此次规划的城南新区迎合国家体育特色小镇发展战略,围绕运动休闲为特色,把城南新区建设成为功能复合多样、用地布局合理、设施配套完善、生态环境优美的运动休闲城镇中心区和传统体育文化体验和创新基地。
佛山这些区域的发展真的要崛起了!
小伙伴们心心念念的美好生活
也真的要来了!
你期待吗?
还不知道哪一种入户方式适合自己
咨询顾问将会为您免费评估!
扫描下方二维码
直接联系专家

往期精彩:
想了解更多“入户资讯”
长按关注服务号
禅城区

整体上看,控规片区以陶瓷产业为主,陶瓷厂、村居较多。周边配套有五分公园、禅西智慧新城、石湾公园、佛山市石湾客运站也在不远处,根据控规进行拆除建设,未来人居环境将改善不少。
南海区
高海片区、新安片区和金沙市场片区作为金沙城区的组成部分,在定位上突出与丹灶中心城区、丹灶新城共同发展,形成丹灶镇强中心。
高海片区

点击图片查看控划原文
规划范围:
高海片区位于佛山市南海区丹灶镇中东部,位于樵金中路西侧,北至迎金一路,南至迎金二路、东至樵金中路、西至南沙涌。规划地块东西长约0.98km,南北长约0.81km,规划面积约48.89公顷。

功能定位:
规划区为丹灶镇次级中心——金沙城区,通过樵金路、迎金一路与丹灶中心城区、丹灶新城共同发展,形成丹灶镇强中心。
主导功能:
以居住、工业为主,商业、公服配套服务功能及村庄建设用地功能为辅。
人口规模:
本次规划居住人口由村庄人口和城镇人口组成,经预测居住人口规模为7514人。

新安片区

点击图片查看控划原文
规划范围:
新安片区位于佛山市南海区丹灶镇中东部,位于樵金中路东侧,北侧文沙北路,南至金伟路,东至东平水道,西至樵金中路、规划地块东西长约1.1km,南北长约1.2km,规划面积约83.58公顷。

功能定位:
规划区定位为丹灶镇次级中心组成部分——金沙城区,处于桂丹路综合服务走廊上,通过桂丹路快速通道与丹灶中心城区、丹灶新城共同发展,形成丹灶镇强中心。
主导功能:
以居住、商业服务、公服配套服务功能为主,村庄建设用地为辅。

人口规模:
本次规划居住人口由村庄人口和城镇人口组成,经预测,居住人口规模为10303人。
金沙市场片区

点击图片查看控划原文
规划范围:
金沙市场片区位于佛山市南海区丹灶镇中东部,位于樵金中路东侧,北至金伟路、南至东阳一路、东至天晟海琴湾,西至樵金中路。规划地块东西长约1.8km,南北长约1.26km,规划面积约107.82公顷。

功能定位:
规划区定位为丹灶镇次级中心组成部分——金沙城区,处于桂丹路综合服务走廊上,通过桂丹路快速通道与丹灶中心城区、丹灶新城共同发展,形成丹灶镇强中心。
主导功能:
以居住、工业为主,商业、公服配套服务功能及村庄建设用地为辅。

人口规模:
本次规划居住人口由村庄人口和城镇人口组成,经预测居住人口规模为9499人。
鳗鱼场片区

点击图片查看控划原文
规划范围:
鳗鱼场片区位于佛山市南海区丹灶镇中东部,位于樵金中路东侧,北至迎金二路、南至东阳四路、东至天晟海琴湾,西至罗行小学。规划地块东西长约2.29km,南北长约1.58km,规划面积约172.51公顷。

功能定位:
小型环保产业集聚发展示范区。
主导功能:
以环保产业功能为主,村庄建设用地和配套服务功能为辅。

人口规模:
本次规划居住人口由村庄人口和城镇人口组成,经预测,居住人口规模为6158人。
罗行片区

点击图片查看控划原文
规划范围:
罗行片区位于佛山市南海区丹灶镇中东部,位于樵金中路西侧,北至罗下东路,南至中安大道,东至樵金中路,西至南沙涌。规划地块东西长约1.94km,南北长约1.87km,规划面积约158.86公顷。

功能定位:
规划区定位为小型环保产业集聚发展示范区,展现罗行竹编文化和岭南水乡特色为主,兼备休闲体验生态宜居社区。
主导功能:
以居住、工业为主,商业、公服配套服务功能及村庄建设用地功能为辅。

人口规模:
本次规划居住人口由村庄人口和城镇人口组成,经预测,居住人口规模为3673人。
下滘片区

点击图片查看控划原文
规划范围:
下滘片区位于佛山市南海区丹灶镇中东部,位于樵金中路东侧,北至东阳四路、南至罗下东路,东至下滘村、西至樵金中路。规划地块东西长约1.16km,南北长约1.25km,规划面积约92.6公顷。

功能定位:
规划区定位为小型环保产业集聚发展示范区。
主导功能:
以环保产业功能为主,配套服务功能为辅。

人口规模:
本次规划区为设计规划人口,因此规划区人口为0。
狮山

点击图片查看控划原文
本次局部调整主要调整内容包括用地性质、用地指标、配套设施和指导性道路调整,其中指出规范区内建筑限高按机场限高控制,建筑高度不应超过41米。

顺德区
围绕广佛环线、地铁3号线与广州地铁7号线等轨道交通优势,佛山新城又一片区发布了最新区域控规,将打造广州大学城卫星城创新基地、人才集聚小镇;顺德北部片区产居融合发展、创智社区枢纽。
根据佛山市自然资源局修编批后公布的《佛山市佛山新城(原东平新城)东部片区控制性详细规划(益丰停车场及周边片区)》,规划区主要涉及的北滘高村及陈村镇部分用地拟打造成顺德TOD综合开发典型示范;创建“水乡”、“岛居”、“小镇”模式的大学城卫星城创新示范区。
根据新出炉的用地规划,城市建设用地面积为98.77公顷,占规划区总用地面积80.69%,包括居住用地公共管理与公共服务设施用地、商业服务业设施用地、道路与交通设施用地、绿地与广场用地5大类。其中,公共管理与公共服务设施用地主要为中小学用地,总用地面积为5.49公顷,也就是说,届时片区将有新建中小学校。
据了解,该片区是顺德北滘目前人才住房、新建住宅最为集中的片区,除了已有美的壹号公馆、合景天銮、美的绿城凤起兰庭等新建住宅社区,美的领贤公馆等人才住房社区,还靠近多个时政公园、文化配套等公共设施,包括北滘体育公园、北滘文化中心和北滘公园等。
同时,还有广佛环线、地铁3号线与广州地铁7号线等轨道交通在片区经过,可以互联广佛两地,靠近美的集团等企业总部,具有打造广州大学城卫星城创新基地、人才集聚小镇的先天优势。
高明区

城南新区位于明城镇主城区以南,北至明七路,东至白管村,西至龙潭村,南至明阳山,沧江河呈东西向穿越规划范围内北部,涵盖沧江河南北两岸,与老城区南北相望。本规划范围为城南新区土地利用规划的允许建设用地范围,总面积约1.29平方公里。根据广东省对特色小镇住宅用地比例的有关政策要求,城南新区的土地使用为居住面积约38公顷,规划居住、商业、公共管理与公共服务设施混合用地用地30.33公顷,占规划总用地面积的29.38%,建成后规划总人口约为1.2万-2.1万人。
佛山这些区域的发展真的要崛起了!
小伙伴们心心念念的美好生活
也真的要来了!
你期待吗?
还不知道哪一种入户方式适合自己
咨询顾问将会为您免费评估!

往期精彩:
想了解更多“入户资讯”
长按关注服务号

