人是万物的尺度,一切以人为本。鼎宅也不例外,只有真真切切以人的痛点与需求为尺度的鼎豪进化,才经得起生活的推敲,才配得上时代的垂青。
东胜·天御以卓越的尺度基因,让建筑与美学相辅相成,回应人们对理想生活空间的期待,消弭人与自然之间的界限。


与传统270°瞰景空间不同,东胜·天御窗景结构做了创新,突破传统意义的环幕瞰景视野,超高的窗墙比,接近地面的超大玻璃环幕,将观景视野做到了极致。
环幕视野之下,在这里,还可以享受极具颠覆性的社交生活。
270°环幕视野,男主人可随时叫上生意场上的伙伴,一边看着繁华美景,一边觥筹交错,这样的圈层体验,是不是很新颖?
经典的生命力来于传承,但更多是适时的自我迭代与更新。很多厨房都会放上一个岛台,在厨房和餐厅的交界处,也就是我们常说的LDK一体化。
300㎡大平层:设计逾100㎡空中会客厅,LDK+B无界横厅,超越传统餐客厅一体的格局,外链观景云台,以环绕洄游格局,打造中心人物的私领社交场,让社交的精彩成为不动声色的日常愉悦。
200㎡大平层:约70㎡LDK+B餐客阳台通厅,环绕洄游格局,约16米向阳三面宽,约3.3米层高,不仅让社交空间更迭,更让家人尽揽阳光纵享通透。

东胜·天御的22米L形弧线转角步廊,一步一景,按照成年人每步50CM的标准,需要走上44步,才能游览完整个阳台。
内容上,它已经突破了常规阳台的空间演绎,将声学、光学、美学诚邀入室,给鼎豪业主生活方式以引导——如何更优雅、有态度地享受超尺度的生活空间想象:
在这里,你完全可以将它打造成一个空中庭院或空中健身房,甚至是家里的高尔夫推杆练习场、儿童嬉戏区,拓展生活的场景尺度,让阳台的功能不限于观景。
“人的需求满足”大过“物的奢华营造”,才是一座真正鼎豪的自我修养。
东胜·天御将不仅从尺度美学上进行深度思考,回归居所本身,更注重功能的再构造。建筑面积约148-300㎡大平层住宅,让尺度成为空间的主导,让空间回归生活的本质。

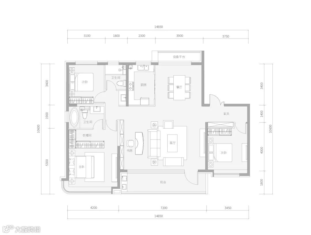
168㎡户型图

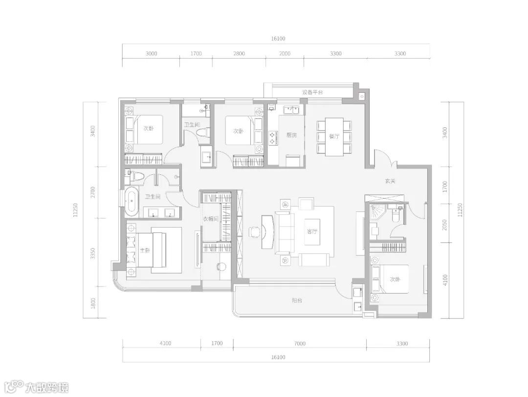
200㎡户型图



