搜索
首页
大数快讯
大数活动
服务超市
文章专题
出海平台
流量密码
出海蓝图
产业赛道
物流仓储
跨境支付
选品策略
实操手册
报告
跨企查
百科
导航
知识体系
工具箱
更多
找货源
跨境招聘
DeepSeek
首页
>
东胜·天御 | 宽境尺度 探寻生活本真
>
东胜·天御 | 宽境尺度 探寻生活本真
港誉城市服务集团
2022-09-20
2
真正的高端产品,不仅具有产品、
服务
、文化等层面的赋能,还需要结合景观、尺度、舒适度、视野、窗外的价值、社区尊享服务等优质基因。
尺度,通过对不同指标与参数的分析梳理,构建有别于普通人居的类别区分。东胜·天御环幕大平层,以大面宽、全景观及全套房设计,层层递进,使家更具尺度感和礼序性,开放的建筑结构带来非凡的奢华气息。
约
3.3
米奢阔层高超越市场常规尺度,宽幕横厅连接双面阳台;
LDK+B
创新规划理念将客厅、餐厅、厨房、阳台各功能区紧密连接,中西双厨随意切换,集日常生活所需,缩短生
活动
线。只有能容下全家人的欢笑,与家人共享的空间,才有意义。
视野开阔的天际线就是城市轮廓的精华,东胜
·
天御约
23
米景观面
完美融合的
观景
平台将天际线纳入私人视野。
为营造更优越的观景感受,东胜
·
天御规划
L
型环幕阳台,打造
270°
非凡观景视野,室内通风采光极佳,整个空间达到超越想象的通透视觉效果
。你完全可以将它打造成一个空中庭院或者空中健身房,享受城央的一场露台瑜伽、亦或是约上三五好友一同品茗,欢畅的休闲时光
。
约
23
米
景观面及
1.8
米南向大
阳台
设计,让阳光清风自然入室,临窗而立,约
3.3
万方城央森林花园风景一览无余。即使足不出户,也能轻松感受到四季萦怀的理想栖居大境。
更轩敞的空间,更科学的规划,更开阔的视野,更极致的享受,这是东胜
·
天御为
成功人士
量身定制的鼎豪之所,
亦
是未来人居的
生活的标准
。
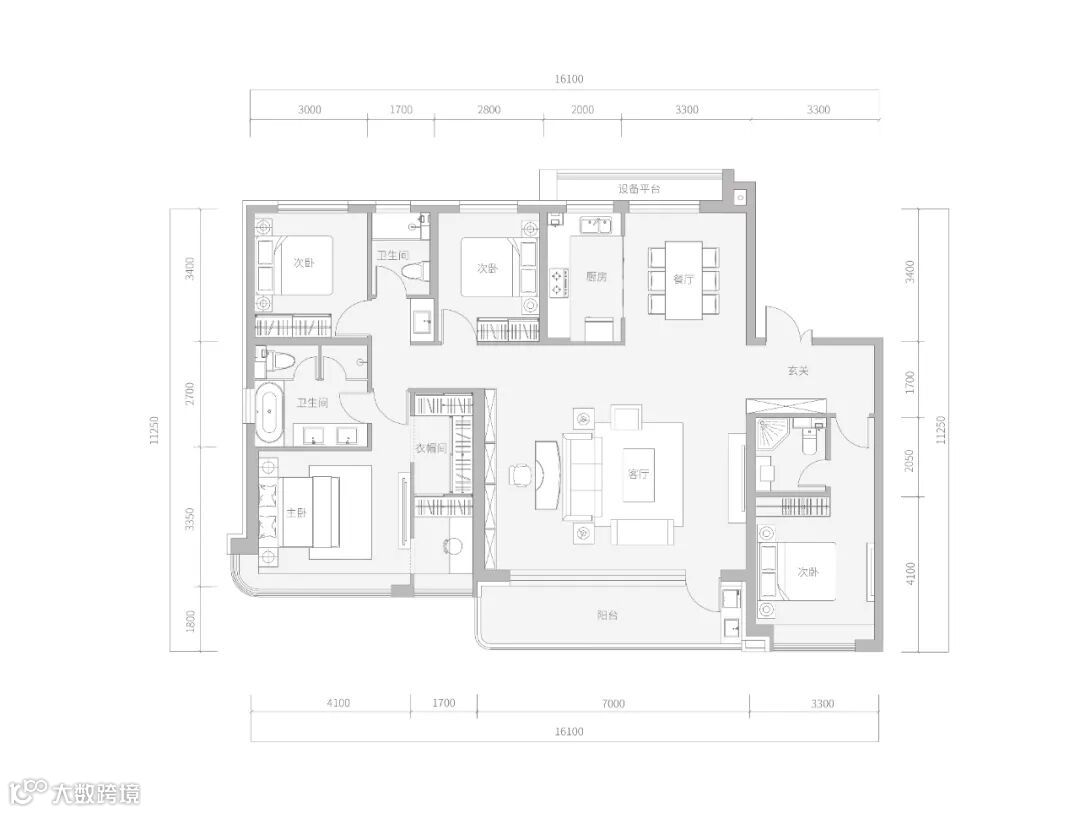
168㎡户型图
200㎡户型图
【声明】内容源于网络
0
0
港誉城市服务集团
港誉城市服务集团,城市综合运营服务商,深入布局物业管理、环境服务、康养服务三大核心主营业务。以“城市大管家”为角色定位,致力于发展成为行业领先的智慧城市服务平台与客户最信赖的综合服务企业。
内容
1263
粉丝
0
关注
在线咨询
港誉城市服务集团
港誉城市服务集团,城市综合运营服务商,深入布局物业管理、环境服务、康养服务三大核心主营业务。以“城市大管家”为角色定位,致力于发展成为行业领先的智慧城市服务平台与客户最信赖的综合服务企业。
总阅读
929
粉丝
0
内容
1.3k