
后疫情时代,人们的居住需求正发生着深刻的变革:阔景大房、居家办公、宜居环境、醇熟配套、物业保障等已成为当今购房的关键词。
时代语境之下,全球各主要经济体都推出了不同程度的经济刺激计划,但面临脆弱的股市、期货市场,更多高净值人群选择将持有的资金转化为更优质的资产,伫立峰阶的菁英人群,以超前视野选置更具价值潜力的豪宅,收获财富进阶与个人资产升级。

2021年,伦敦1500万英镑以上的房产交易数量达到32笔,而2020年的数据则是17笔,成交量翻了将近一番;美国豪宅市场亦是表现不俗,2021年全年成交8套总价1亿美元以上的超级豪宅。以湾区为例,根据房地产指南Compass Real Estate,和加州房地产经纪人协会的数据,湾区房屋销售与价格于2020年12月狂涨,单户房屋中价位已接近历史纪录水平高位。根据CoreLogic及DQNews数据,湾区8个县12月中位房价比去年同期上涨13%至93万5000元。

2022年北京楼市领跑“小阳春”的同样是豪宅项目。一季度均价在7万元/㎡以上的豪宅成交1913套,同比上涨39%,成交金额277.67亿,同比上涨49%。2月,广州某豪宅项目拿下14.8万/㎡的备案价,一举刷新广州新房备案记录。由以上数据我们不难看出,全国核心城市的豪宅顶住了大环境的压力,仍然保持着无可估量的潜力。
另外在政策层面也是利好频出,2022年一季度以来,购房首付比例降至首套房20%,二套房30%,首套房商贷利率已经降到十年以来的最低水平。同时,石家庄市公积金贷款额度单方缴存最高60万,双方缴存最高80万……诸多利好政策指向当前都是最佳购房时机。

就目前河北省省会石家庄来看,占据城市核心资源的优质豪宅产品屈指可数,而东胜·天御便是豪宅置业的首选。从标定豪宅的鼎级标准,到同步世界的审美建筑,东胜集团23年匠心之作,东胜·天御位于建设大街与和平路相交十字轴芯,被称之为城市资源级豪宅,打造520席纯粹性社区,为圈层给予比肩国际的生活方式。

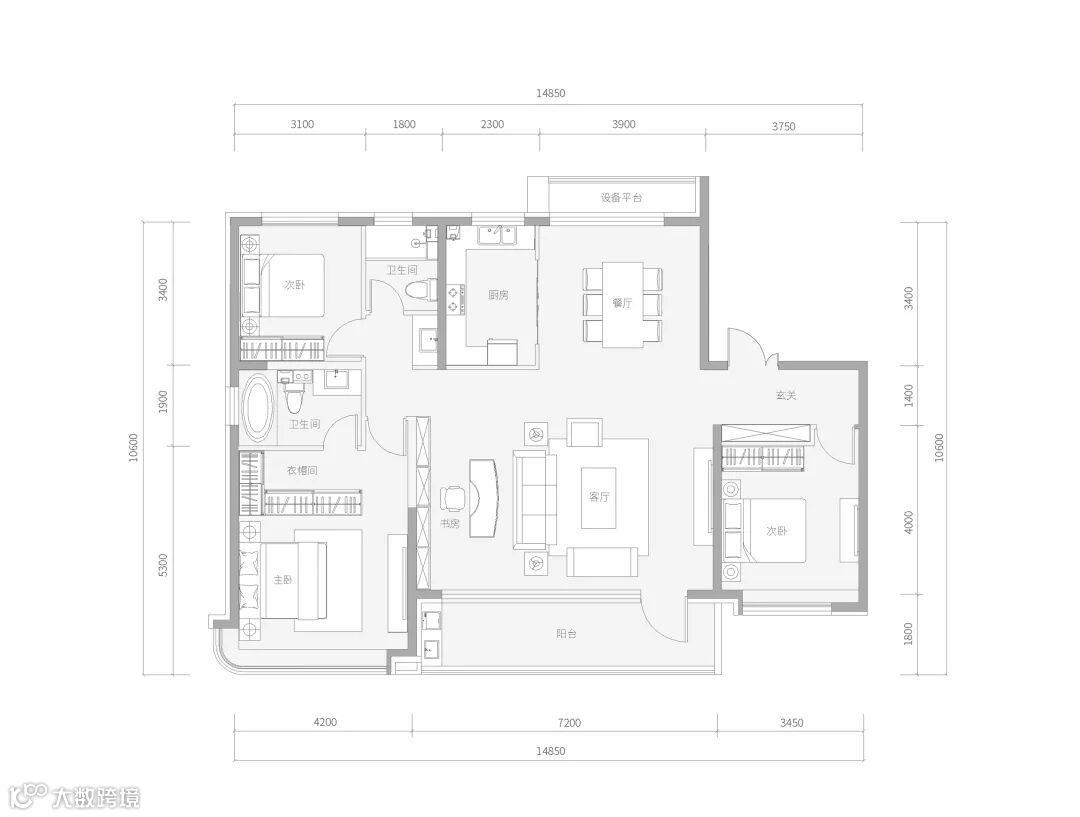
东胜·天御5月热销,全城争藏,其中168㎡户型凭其优质的产品设计当红不让:14.8米的南向三面宽,加上3.15米的理想层高,明厨明卫,无论从居住空间,户型功能,细节表达,168户型都体现了东胜·天御对于人居生活的理解,诠释着城央鼎豪的国际标准。目前11号楼的168户型热销不断,优质房源即将告罄;6月1日-5日端午期间东胜·天御重磅推出“认购即享额外97折”优惠政策,错失难复,把握臻藏!

168㎡户型图

200㎡户型图



