
项目
简介
科学城商业广场位于科学城核心区,矗立于广州黄埔区科学城总部经济核心CBD区域的绿轴广场,北邻翡翠希尔顿酒店、广州科学城体育公园,南面科学城科学广场、广州开发区黄埔区规划展示馆,四周牛角岭公园、尖峰岭公园、绿地广场环绕,地理位置优越。
项目区位
1.一环三心双轴多片区、广州强势东进
科学城规划扩容7倍,包含原科学城、云埔工业区、东区、永和开发区、长岭居以及广石化等地区,打造成中国“智造中心”。

2.科学城地铁之上、同步世界的远见
双地铁交汇两站直达天河,多维立体路网,30分钟直达珠江新城,项目近科学大道及开泰大道十字路口,上班通勤、出入办公等出行更加便捷。

3.醇熟烫金版图、圈定商务疆域
3公里范围内,囊括市政、商业、医疗、休闲、娱乐、交通等全方位配套。

项目价值
01
花园式办公小独栋 会呼吸的企业“家”

02
核心区位写字楼 企业进入黄埔首选

03
商务条件
请左右滑动查看图片
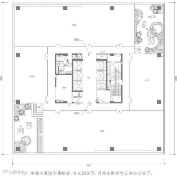
楼宇户型图
左右滑动,查看更多
CONTACT US
☎️ 招商热线: 蔡先生 18922166985
🏡 项目地址:广州市黄埔区科学大道181号








