搜索
首页
大数快讯
大数活动
服务超市
文章专题
出海平台
流量密码
出海蓝图
产业赛道
物流仓储
跨境支付
选品策略
实操手册
报告
跨企查
百科
导航
知识体系
工具箱
更多
找货源
跨境招聘
DeepSeek
首页
>
达索系统 SOLIDWORKS 2024 Electrical全新升级|一分钟了解新功能
>
达索系统 SOLIDWORKS 2024 Electrical全新升级|一分钟了解新功能
SOLIDWORKS意普科技
2023-12-07
2
导读:电气工程师在完成电气原理图设计的同时,还需要频繁的修改,导出各报表,使得大量时间浪费在重复性的手动工作上,即
电气工程师在完成电气原理图设计的同时,还需要频繁的修改,导出各报表,使得大量
时间
浪费在重复性的手动工作上,即便如此,也无法保证百分百准确无误;
电气设计部门和机械设计部门虽然在设计同一产品,但不同部门之间互相独立的设计
工具
使协同变得困难。
那么如何提高电气工程师的设计效率?
如何在协同中完成设计?
达索系统SOLIDWORKS 2024 Electrical为电
气工程师提供高效准确的电气原理图设计的解决方案同时,还提供多用户协作设计,使机械设计和电气设计得以在同一平台内进行。电气工程师在二维图纸中的电气设计,可以在机械工程师的三维空间结构中进行模拟布局,自动布线,计算线长,真正实现机电一体协同设计。
达索系统SOLIDWORKS 2024 Electrical
全新升级,为用户带来全新体验。
达索系统SOLIDWORKS 2024 Electrical
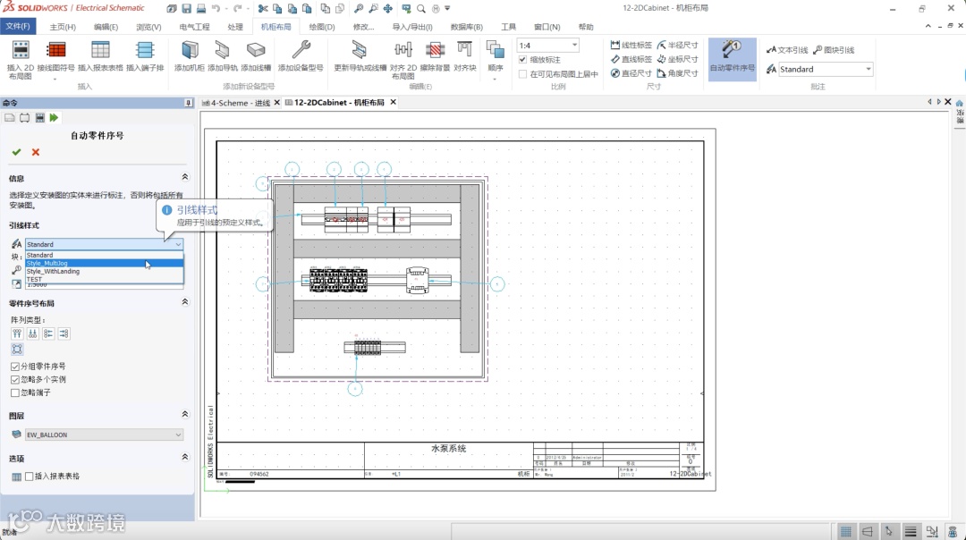
中,我们可以为2D机柜布局图中的零件自动创建序号,序号块具有各种形状可选,多种布局阵列及过滤条件,并且零件序号还可以体现在机柜材料清单中。
在绘制电气原理图时,当我们删除部件型号,设备属性中相关的部件属性及端子名称会被同时删除;
在报表属性中,新增加了“范围值”属性,我们可以设置任意特殊符号,为连续3个及以上的变量进行缩写设置,以便减小报表列宽,降低分行的概率;
在达索系统SOLIDWORKS 2024 3D中,我们能够更加快捷方便的进行设备对齐、批量修改导轨及线槽
长度
;
新增“仅为
活动
位置布线”选项,对大项目布线,我们可先进行子装布线,再总装布线,从而提升布线效率。
点击观看达索系统SOLIDWORKS 2024 Electrical
新
功能视频
微信公众号
微信客服号
【声明】内容源于网络
0
0
SOLIDWORKS意普科技
内容
0
粉丝
0
关注
在线咨询
SOLIDWORKS意普科技
总阅读
0
粉丝
0
内容
0