这是一个北京的小户型改造案例。屋主是一名建筑设计师,让我们来一起听听他的方案改造陈述:
“老公,我需要个衣柜和一面镜子”当设计惯了太多高大上项目的设计师男主人面对老婆这么简单的一个要求时的确也有些为难。
因为仅仅47平米的一居室,面对每天不断的淘宝快递,即使再增加47平米也装不下老婆的衣服。另外,加上男主人的买书癖,与日俱增的书本更是让已经满载负荷的小屋严重超载。


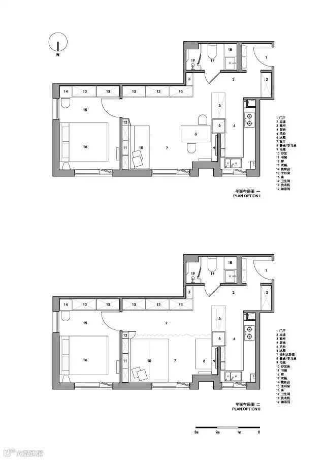
下面这两张户型图是同一区域改造后的户型图,细心的读者可以看到两张图的中间部分“10,7,8”区域有所不同,也是改造的一大亮点。

首先改造的是入口门厅,原本只能用来存放垃圾的门口,被改造成入户的门厅。使空间增加了一次转折,配上艺术家朋友的作品,让进入家中的瞬间多了一多了一丝艺术气息。

其次改造的是厨房,原本封闭狭长厨房被打开,增加了一个吧台,把厨房和客厅若隐若现的分隔开。既可以用来享用早餐,也可以用来作为构思方案时的绘图区,让久坐的设计师可以站起来活动一下。


接下来看看客厅吧。女主人的衣柜必然是堂而皇之的侵占到了客厅,否则哪里安得下。通高的镜子装在了冰箱的背后。储物墙的好处不必多言,它也正是这次改造的一大功臣。



客厅除了满足平常的生活之余,还要考虑偶尔朋友或家人过来临时住宿的功能。所以在客厅中央的顶部有一根钢丝线,上面还站着几只主人从米兰带回来的小鸟夹子。不知道的朋友还好奇这是做什么用的,实际上在图中这个书架右侧内暗藏着一个格子。


当把格子打开,拉出帘子,打开折叠的沙发,客人就可以在这里看电视休息了。有时男主人也会因为呼噜声可怜的被女主人撵到这里思过。当然这里也是一个绝佳的读书和看电影的角落。

帘子的侧边变成了一个独立的休息区,客厅也瞬间变为了一个走道。

空间小不是问题,重点在于你如何把它按照你的需要利用起来。这个时候如果还在抱怨家里东西太多的你,请环看你的家,有哪些空间还没有被合理利用?
家天下实业感谢您的关注!!
联系方式:0752-3073138 5580991
联系地址:惠州市大亚湾西区大亚湾大道228号壹品国际2001-4


