
▲ 入户进门处是餐厅,两把柠檬黄的椅子『照亮』了整个空间

▲ 鸟笼吊灯也很有特色

▲ 格子移门相隔是厨房

▲ 这面餐厅背景墙用花鸟壁纸铺贴,柜子美丽且实用

▲ 客厅和餐厅通铺地板

▲ 浅灰色布艺沙发和中国风元素实木茶几

▲ 沙发两侧同系列台灯和落地灯『守护』着

▲ 一组略带做旧的装饰画

▲ 灰色帘子白色纱的组合

▲ 电视背景中间是暗纹的花鸟风格壁纸

▲ 简单的主卧,面积不大,衣柜都没做

▲ 外面是晾衣服的生活阳台

▲ 卧室主要作用是休息,不做任何不必要的装饰

▲ 次卧兼书房,做了榻榻米

▲ 护墙板采用饰面板挖槽制作而成,低成本方案

▲ 榻榻米除了当床还有比较大的储物空间

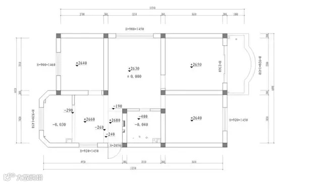
▲ 原始结构图

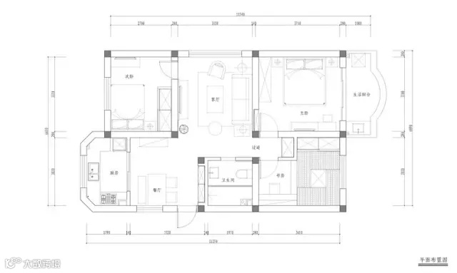
▲ 平面布置图

家天下实业感谢您的关注!!
联系方式:0752-5580991
联系地址:惠州市大亚湾西区大亚湾大道228号壹品国际2001-5


