
▲ 黑白灰为主色调的简约风,融入了一点绿色的软装,让整个空间多了几分活力

▲ 灰色极简的电视背景

▲ 用地台替代电视柜

▲ 沙发一半背靠小房间,一半是休闲区,梁上挂下来的铁艺木架即是收纳又是隔断,台式风经常用

▲ 从这个角度可以看到入户门和鞋柜

▲ 客厅俯视角度

▲ 地毯、单人椅、抱枕、凳子等装饰都选了带有绿色元素的

▲ 餐厅的吊灯

▲ 主卧床头的灰色背景很有质感

▲ 窗帘也配了绿色

▲ 简单的次卧

▲ 厨房深色墙浅色地,白色烤漆橱柜

▲ 卫生间干区洗手台马赛克背景

▲ 原始平面图

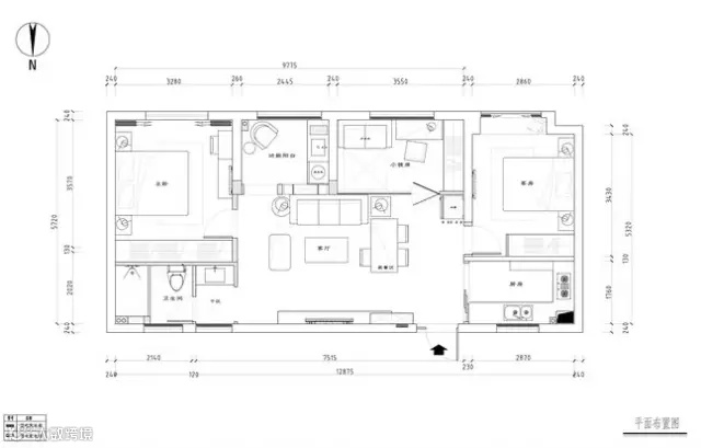
▲ 平面布置图

【恭喜你!找到一个魔法碎片,快点保存到手机吧!】

家天下实业感谢您的关注!!
联系方式:0752-5580991
联系地址:惠州市大亚湾西区大亚湾大道228号壹品国际2001-5

