
▲ 原始137平,现浇43平,喜欢新中式的人一般都对传统文化有独特的爱好,把传统的美融入到现代审美中

▲ 沙发背景用深灰色的地板上墙制作

▲ 黑白分明的家具,浓郁的中式元素

▲ 电视背景打了一个框架加入灯光

▲ 光洁的大地砖让整个空间显得干净大气

▲ 餐厅位于客厅边上

▲ 原木餐台加上铁艺主体,配上传统圈椅造型的座椅

▲ 加上软装点缀

▲ 腊梅装饰的吊灯,墙上的蝴蝶装饰,细节上提升精致

▲ 白色调的厨房中间保留了一个备用地漏

▲ 餐厅和厨房之间做了一个吧台,增加功能区的同时可分隔空间

▲ 楼梯旁边的这个窗户是个点睛之笔

▲ 卫生间干区在简单的黑白色中透出格调

▲ 随着楼梯上楼

▲ 简约的卫生间

▲ 浅蓝色的儿童房

▲ 书房很简单

▲ 主卧和衣帽间

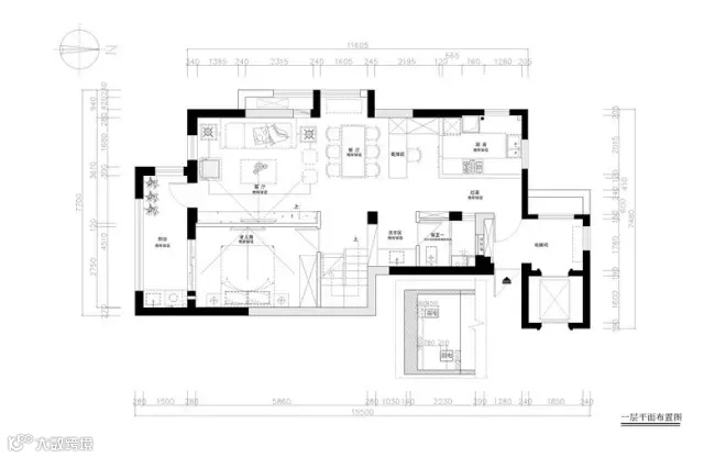
▲ 一楼平面布置图

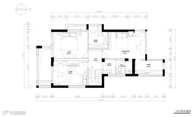
▲ 二楼平面布置图

家天下实业感谢您的关注!!
联系方式:0752-5580991
联系地址:惠州市大亚湾西区大亚湾大道228号壹品国际2001-5

