
▲ 装修不仅要花钱,还要花心血和时间才能达到自己满意的效果

▲ 客厅美式布艺沙发背靠飘窗,墙面用白色护墙板

▲ 从餐厅望客厅,边上的一幅大油画是入户的端景

▲ 白色八格移门后面是厨房

▲ 从客厅可以看到入户玄关鞋柜

▲ 在餐厅卧室书房之中间有一个回厅

▲ 书房用综合储物书柜

▲ 在仿古地板的衬托下显得略带复古范

▲ 卧室用大花纹墙纸铺贴,加上美式床之后氛围浓郁

▲ 床尾电视墙是定制的组合柜

▲ 这面马赛克墙效果很好,只是金色填缝起来非常麻烦

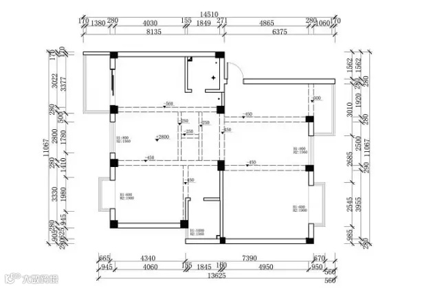
▲ 原始结构图

▲ 平面布置图
家天下实业感谢您的关注!!
联系方式:0752-5580991
联系地址:惠州市大亚湾西区大亚湾大道228号壹品国际2001-5

