70平现代格调小屋 隐形门很到位
▲ 房子可以小,但是要有调,这是屋主的想法,总花费30万左右
▲ 各种灰色组合,浅灰色的沙发,深灰色的窗帘,浅咖色的沙发背景
▲ 黑色的茶几、深咖色的边柜
▲ 深灰色电视背景是饰面板上色处理的
▲ 电视背景中藏了隐形门
▲ 关上之后和电视墙完全达到天衣无缝
▲ 用撞色的各种软装来点缀黑白灰的硬装空间
▲ 为了拥有一个比较大的厨房,把原来的户型做了改动,餐厅背景也做了隐形门
▲ 门关上之后也很融合
▲ 橱柜采用了非常罕见的黑色门板,配合白色墙砖也是黑白分明
▲ 次卧柜门采用镜面,同时可以当穿衣镜使用
▲ 主卧是老人房,采用原木色的家具,为了不显得太『老气』,设计师采用了绿色的窗帘
▲ 房间不大但储物功能也做的到位
▲ 深色调的卫生间显出高冷气质
▲ 深灰色的亚光砖质感十足
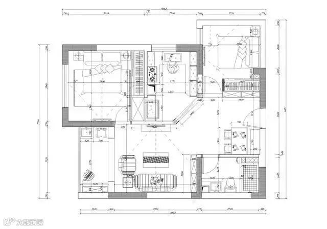
▲ 原始结构图
家天下实业感谢您的关注!!
联系方式:0752-5580991
联系地址:惠州市大亚湾西区大亚湾大道228号壹品国际2001-5




















