这是一套三居室厅两卫的房子,业主买给父母养老住的,设计上的要求是简洁大方,色调温馨,适合老人居住。二老对房子的装修也没有过多要求,全听儿子的,所以设计师结合业主的要求,打造了这套日式原木风美家。
这是客厅全景,高级灰的沙发搭配原木色的桌椅,干净明快,又好打理,显得客厅宽敞整洁。原木边凳、暖色藤编台灯,氛围温馨,带着家的温暖与踏实
。
入户门,你肯定想不到,那面玻璃镜子后面是一个隐藏的鞋柜,保证了入门的收纳需求。餐厅边的立柜,和餐桌同色系的原木风,风格统一、色调温润,入门就有好心情,老人家很喜欢这一块儿的搭配。
再来一张客厅的全景,电视背景墙和电视柜造型简洁,大砖上墙的设计,大气简洁,也方便老人打扫卫生。定制的电视柜,保证了小物件的收纳需求。
这张图能很清楚的看到,客厅、餐厅的格局。客、餐厅同款的芥茉绿窗帘,在原木色的映衬下,清新活泼,还能舒缓人的情绪,其实老人居住的房子一样可以加些明亮的色彩元素。
这套房子的格局很好,餐厅边就是厨房,橱柜门板也是木纹效果,实现了整体风格的统一。墙面深色系的花片砖,让厨房更显档次,不会产生视觉疲劳,更重要的是,这种颜色的花砖很耐脏,好打理。
餐厅全景,没错,有一道隐形门。为了保证餐厅墙面的完整、和空间的独立,次卧设计了一道隐形门。全木纹包墙,定制的同款门形,营造出别有洞天的设计效果。
主卧、次卧的设计,延续了客厅的简洁风格。主卧是二老住的,灰色调背板、吊柜,白色床上用品、咖啡色抱枕,全是老人喜欢的色调,搭配的典雅大气。
主卫、次卫的设计,依旧是低调内敛的色调、实用简单的配置。业主听从设计师的建议没有装浴缸、全是淋浴,方便老人平时打扫卫生,地面是重新打磨的防滑砖,安全系数更高。
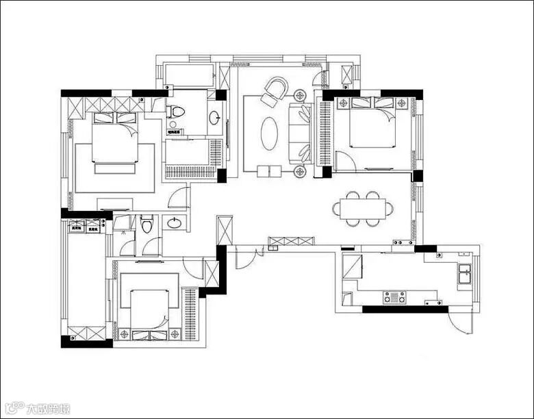
户型图,三室两厅两卫的格局,房子的格局、采光都很好。一套看似普通的房子,是儿子对父母的孝心与回报,愿老人在这里幸福的度过晚年生活。
家天下实业感谢您的关注!!
联系方式:0752-5580991
联系地址:惠州市大亚湾西区大亚湾大道228号壹品国际2001-5
