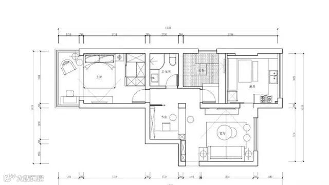
岁月催人老,也催房子老,几十年的家具陈设也到了该换新颜的时候了!看这64平米小户型如何装修设计,上演广州老房完美变形记!
家天下实业感谢您的关注!!
联系方式:0752-5580991
联系地址:惠州市大亚湾西区大亚湾大道228号壹品国际2001-5

家天下实业岁月催人老,也催房子老,几十年的家具陈设也到了该换新颜的时候了!看这64平米小户型如何装修设计,上演广州老房完美变形记!
家天下实业感谢您的关注!!
联系方式:0752-5580991
联系地址:惠州市大亚湾西区大亚湾大道228号壹品国际2001-5
