大数跨境

54平方米的小窝,照样让你倍感温馨

54平方米的小窝,照样让你倍感温馨 家天下实业
2016-04-10
8
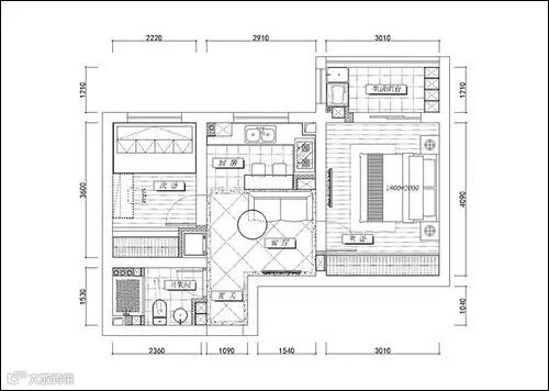
导读:54平米的小房子,先上户型图,如下: 客厅全景图一进门就是小客厅,由于小窝面积太小,厨房只能做成开放式的,砌

54平米的小房子,先上户型图,如下: 

客厅全景图

一进门就是小客厅,由于小窝面积太小,厨房只能做成开放式的,砌了个小墙隔开客厅和厨房,沙发就摆在小墙前面,电视把它挂在墙上,电视柜是一个简单的储物柜。 

这是进门玄关处 

厨房的背后就是书房~

书房还做了个大衣柜~ 

榻榻米特写~

那小墙是一个吧台~

阳台~ 

主卧室 ~

卫生间干湿分区~

洗漱台



家天下实业感谢您的关注!!
联系方式:0752-5580991
联系地址:惠州市大亚湾西区大亚湾大道228号壹品国际2001-5


【声明】内容源于网络
0
0
家天下实业
家天下是一家集设计、施工、材料、服务于一体的公司。专业的设计、施工团队,先进管理、优质服务,赢得广大客户的支持与信赖,是一家最值信赖的家装公司,秉承“诚为基、和为贵、拼为魂、家为大”的企业精神,打造最完美的家装工程,提供最优质的一站式服务。
内容 1432
粉丝 0
家天下实业 家天下是一家集设计、施工、材料、服务于一体的公司。专业的设计、施工团队,先进管理、优质服务,赢得广大客户的支持与信赖,是一家最值信赖的家装公司,秉承“诚为基、和为贵、拼为魂、家为大”的企业精神,打造最完美的家装工程,提供最优质的一站式服务。
总阅读12.7k
粉丝0
内容1.4k