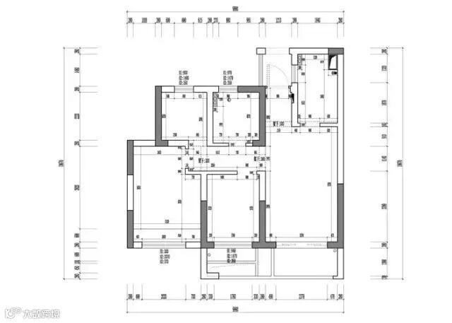
户型图


▲户型为标准的两室户
客厅


▲落地窗设计给客厅提供了良好的采光,一个明亮宽敞的环境会大大提高居住的幸福感。

▲在家具的选择上,并没有局限于任何一种风格。所以在客厅中,可以看到日系家装的简洁,也可以看到美式家居的精致。

▲布艺沙发给客厅增添了几分舒适的随意感,灰色布面很有高级质感。
▲客厅中大红色的茶几是最吸睛的单品,中式设计的茶几与绿色抱枕撞色,不仅不突兀,反而增加了一抹韵味。
餐厅


▲小户型空间有一定的局限性,但如何打破局限,合理的将空间利用起来,就是需要思考的问题啦!

▲设计师将客厅和餐厅划为一体,开放式餐厅让整个客厅显得更加宽敞。
厨房


▲厨房设计为半开放形式,利用墙角的拐弯,有效节约空间。

▲厨房墙边的黑板墙,随意涂鸦或者随手写几句给家人的备忘,都能给生活增加情趣。

▲原木色的厨房,虽然空间不大,但温馨气氛满分。
走廊


▲链接公共区域和卧室区域的走廊。
主卧

▲白色实木大床,搭配素色花纹床品,清爽自然。床头两侧的床头灯,方便睡前阅读。

▲拼色窗帘配上柔和白纱,白天拉上白纱有一定遮挡效果也不影响采光,晚上拉上窗帘又有很好的遮光效果。

▲衣柜安装移门,可以节约柜门空间。
次卧

▲次卧继续延续整体的清新淡雅风格。

▲阳台打破成规,做成了一个小榻榻米,增加了房屋的收纳空间。

▲榻榻米不仅实用,还是休闲品茶看书的好地方,倚着靠枕翻着手上的书,感觉时间都慢了下来。
卫生间


▲卫生间空间不大,又想让空间看起来整齐宽敞,那你一定要试一试镜柜!镜柜有多实用,这里就不赘述了。美观性,扩容性它都是好帮手。

▲淋浴房做干湿分离。
家天下实业感谢您的关注!!
联系方式:0752-5580991
联系地址:惠州市大亚湾西区大亚湾大道228号壹品国际2001-5


