房屋简介
【房型】:5房2厅+3露台(复式)
【面积】:160平


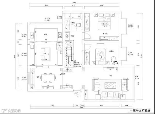
从大门进来,首先是进门的玄关,美剧中是不是常出现这种壁炉,配上白色的山茶花,一艘小船寓意带着我们全家幸福起航。

壁炉的右边就是客厅啦,6米多长,是不是很够霸气呢,壁灯和吊灯都是纯铜的。

壁炉的左边是餐厅,美式的卡座展现的淋漓尽致。

壁炉的对面是换鞋凳

餐厅的正前方就是我最最超级喜爱的厨房(分西厨,中厨)隆重登场!
西厨,白色与绿色完美的结合,西厨由于层高问题,放弃了中央空调,遗憾啊。

中厨来了,是不是感叹厨房真心大啊,当初看中就是因为够大。

儿童房也是比较花心思的地方,从挑墙纸开始,这一面墙就用三种不同的墙纸搭配起来的。

过道右手第二间就是老人房,HH全实木家具,简美的风格显露无疑。

老人房出来对面就是干区了,干区是我比较满意的地方,细致到擦手巾也是BARZE的,台盆是科勒的梅玛系列,懂的。

干区的边上就是一楼的卫生间了,美式标准的小砖登场,150*75的贴费真心贵,黑白经典乃永恒,暖风机选择了松下。

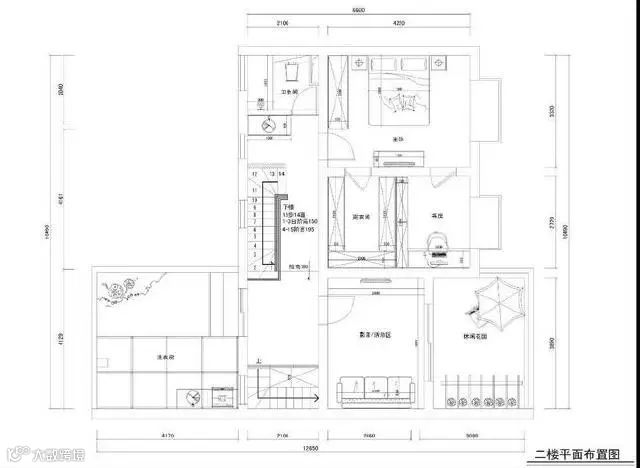
卫生间完毕,伴着楼梯来到二楼,脚感还不错。

右手边的第一间是活动室,第二间是主卧,门关着的是主卫,门口依旧是干区。
那我们就先从活动室开始吧,活动室门口的门是美式标准的谷仓门。

活动室全景,HH沙发,没有装中央空调有些遗憾吧。。

活动室的正面,浓浓HH风。

活动室的外面就是屋顶花园了,BBQ的最佳场所,请大家无视花花草草,被当家的打理的乱七八糟。

离开活动室,请大家和我移步主卧,主卧全景噔!噔!噔!

站在主卧打开书房,书房的一角。

主卧的右手边一扇门里面就是衣帽间,衣帽间比较的乱,请大家忽视,随便看一看吧。

接下来带大家去参观一下主卫,经典的白加黑,真心漂亮了。

二楼干区来一张特写

最后我们回到活动室,活动室的对面就是洗衣房,洗衣房分成二间,一间是洗衣房,另一间是晒衣房。

家天下实业感谢您的关注!!
联系方式:0752-5580991
联系地址:惠州市大亚湾西区大亚湾大道228号壹品国际2001-5


