
【现在只要编辑短信(小区名称+户型面积+风格)发送到13352614403,十分钟内即可成功预约免费量房】
活力清新小公寓设计
淡色木质与灰色清爽简单
小面积的亮色点缀空间,充满活力





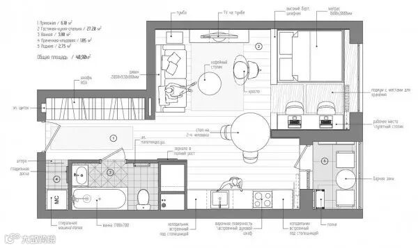
小空间里避免了用厚实的墙壁做区域分隔▲

半开放式的空间将卧室安放于客厅一角▲

同时还是一个工作室▲


阳台还摆放了一张小餐桌阳光明媚的早晨,这样迎接美好的一天。▲


声明:图文源自网络 版权属原作者所有
惠州家天下实业有限公司,是一家集设计、施工、材料、服务于一体的装饰公司。
专业从事家装、别墅、酒店、会所、商业空间、园林景观等场所的设计与施工。
公司拥有专业的设计团队,专业的施工人员,加上先进的管理方式、良好的服务态度,家天下赢得了越来越客户的支持和信赖,是一家最值得信赖的家装公司
公司秉承“诚为基、和为贵、拼为魂、家为大”的企业精神,打造最完美的家装工程,为客户提供最优质的一站式服务。
选择我们,你当然错不了!


家天下实业感谢您的关注!!
联系方式:0752-5580991
联系地址:惠州市大亚湾西区大亚湾大道228号壹品国际2001-4

