|
【现在只要编辑短信(小区名称+户型面积+风格)发送到13352614403,十分钟内即可成功预约免费量房】
小房子的设计,可以用寸土寸金来衡量。大多数情况下,人们都希望,面积能够得到最大利用,但是这家设计却·······
原本只有45平的小房子
竟然将78%的面积浪费在客厅里
厨房只留6平,卫生间3平
包括起居室,也只有区区的4平
那这又是出于何种缘由呢

45平的小家,被改造成宽敞的一室一厅一卫,还有宽敞的活动区域,最令人羡慕是,在家还可以投影看电影、以及舒适的书柜·······

矩形的木饰盒柜
与水泥的天花面,相接
不保留空隙
直接与地面的木面衔合

木饰盒柜的一侧面
保留一部分的小格子
这不仅可以用来整理书籍
还可以随意放置一些生活的用品


在它的侧立面,保留了一部分空位,留作放置沙发。橄榄绿色的沙发面,显得小家的氛围极为自然。



吊顶部分,处理地极为简单
甚至都没有粉刷
就连灯具的走线,也没有掩饰

在走廊的过道上,随自己的心意,干脆悬挂一个倒挂的绿植。

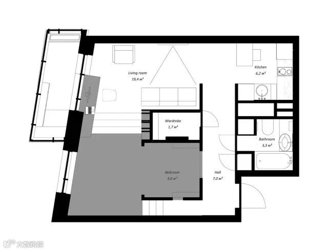
在小家的整体布局中,将更多的面积留给了活动区域,起居室的面积只有4m²,沙发区域1.7m²,厨房6m²,卫生间3m²

一点儿也不需要折叠
合理的利用空间
家里的环境也一样会很舒适

行动的动线也极为简洁,不用说,一个过道只能容纳一个人空间。家里来了朋友,也一样可以轻松地在家里走来走去。





6.2平米的厨房使用空间
将冰箱、微波炉···嵌入在厨柜里
在墙面的支起一个木块
做成一个简易的桌面


家里,只有桌面是可以折叠的
桌凳的下方
是一个照明用的简易灯饰

3.3m²的卫生间
也一样可以装得下,浴缸


看完了家里的小空间
咱们再来看看
起居室和活动区域的设计


不要床头柜
活动木面充当了收纳的作用




起居室白色的长条状物件
并不是白炽灯
是可以卷起来的屏风

包括后置“木框”,也可以通过卷式的屏风,形成一个隐秘的私人空间。

有一面干净的墙面
在家也可以投影看电影
放下屏风
看电影的氛围会更为舒适



Home Office,一块木隔板
就能装饰完成

从卧房留下的空间,还可以观察到室内的整体情况,而这组设计,最值得说的是,不仅是不用折叠,而且家具的使用量也极少·····

声明:图文源自网络 版权属原作者所有


家天下实业感谢您的关注!!
联系方式:0752-5580991
联系地址:惠州市大亚湾西区大亚湾大道228号壹品国际2001-4


