
三只眼
小编私房话:
微户型,是在高房价时代中诞生的“极致小户型”。
面对这样的户型,只谈“风格”显然是不现实的,如何创造“小宅大观感”、让居住者住得舒适自在有尊严、在有限空间内尽可能保留传统住宅功能分区才是设计者该着重考虑的。
这时候,一具多用、一房多用、大大提升空间利用率的复合设计能很好地让这类微户型变得“小而美”。
这次为大家带来的案例,便是通过复合设计、多功能定制的方法,达成“小而美”的无风格之家。
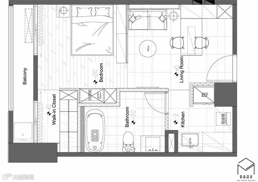
小而美,33㎡微户型公寓的无风格定制

“任何一个角落都不能被浪费”是设计者的坚持。
对小户型而言,比起风格,功能的满足和创造显得更重要,也更棘手。
可以从这四个方面入手:
1
小宅大观感
需要注重通透感的设计让光影自然流泻,
并充盈整个空间,
创造“小空间变大了”的空间观感。
▼入户无遮挡,视线穿透整个空间

2
巧妙分区
需要不破坏空间整体感、
又保证实现完整功能区域的分区方式。
▼颜色分区法:蓝绿色为餐厅到客厅画个界。

▼无玻璃钢结构加置物柜将家中的公领域与私领域区分开来,又保证通风流畅。


3
低调但强大的收纳设计
需要巧妙又低调的收纳设计,
解决小户型收纳难题,
充分满足居住者收纳、收藏之需。
▼玄关处浅白色柜体将玄关收纳与餐厅收纳结合在一起。

▼客厅与卧室之间的蓝绿色双面置物柜,同时满足着客厅和卧室的收纳需求。


▼卧室与地板同色的高柜,收纳功能强大。

▼豪华的步入式衣柜,充分利用靠近阳台的这一块狭长区域,保证采光,又满足隐私需求。


4
创造多功能区
按需而生的多功能定制,
往往能创造“我的家独一无二”的自豪感。
▼兼具吧台、餐桌、工作台功能于一体的加宽吧台桌。


▲靠近玄关,所以可作为玄关置物台使用。屋主的职业常常需要在家里办公,所以也作为工作台使用。
▼白色钢结构,是客厅与卧室的分隔“墙面”,也是一个可用于装饰与收纳的多用框架。


单一的现代、欧式、美式等风格界限在小户型中已经越来越模糊,一个混搭、或者按需定制的整体方案带来的舒适顺心的家庭空间正受到越来越多居住者的欢迎。
公司:慕森设计
面积:33㎡
地点:台湾省台中市
资料:
DECOmyplace,《日光乍洩!台中 10 坪清爽白色渲染公寓》
·end·
菲俪微户型定制推荐
掌握小空间大变身魔法的全屋定制
能让一个不足20㎡的小空间在卧室、书房、活动室之间灵活变身
菲俪全屋定制
之
会变身的
小户型空间定制
空间魔法
(点击产品图片 了解产品详情)
好设计让生活值得品味
菲俪全屋定制
从专业定制角度解读居住者需求
菲俪定制新品

空间只是半成品,你的爱赋予它家的温度

菲俪全屋定制
自定义生活
↙↙↙ 戳【阅读原文】预约免费设计




