
2017.9.22 周五
小编私房话:
一个关于“年轻人买房要注意什么?”的问题下。
一位回答者给出暖心建议:请购买地铁、轻轨轨道交通附近的小户型房产,面积50平米左右即可,俗称单身公寓。
因为:这类房产总价不太贵,将来转手容易,交通优势又决定了其价值相对坚挺,对于单身女性尤其适合。
也就是说,人生第一套住房,也许50㎡刚刚好。
今天的案例是很好的装修参考。
小编:古迪安娜
“
深呼吸
阳光味道的空气
全力向我们展示对阳光的强烈渴望的北欧风空间,装修起来需要记住三大要点:大采光、白墙、木质调。如果需要更进一步,那就再多记住两个搭配要点:选择简约但有设计感的家居单品,以及自由混搭原则。其他便可一切随心,从心所欲。
(想要完全掌握北欧风装修要点,点击查看→《如何打造纯正北欧风?可以从哪几个方面着手?》)
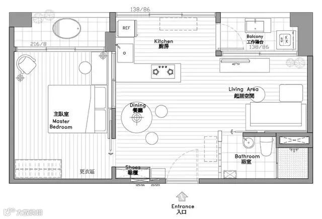
▼即使是只有50㎡的小空间,掌握了以上要点,也可以轻松营造清爽北欧空间。
▼开放式空间,串联客厅、餐厅、厨房,对墙采光蔓延至玄关。进门不会因为空间小而压抑,反而因为整体开放区域而心情舒畅。
餐厅、厨房
清新混搭餐厅区域
▼用一点都不迷你的定制型玄关柜,规划出一个迷你玄关。外出常用衣物、鞋子、穿鞋凳都有了好去处。
▼二手欧洲家具、灯饰,营造个性怀旧氛围。
▼采光充足,温暖怀旧氛围卧室。
▼轻便收纳设计规划。
设计公司:十一日晴空间设计
套内面积:50㎡
资料:
DECOmyplace
「淡水15坪清新北欧风单身女子公寓」

菲俪简约空间定制

菲俪工厂店展厅参观预约:028-85679694
好设计让生活值得品味
菲俪全屋定制
从专业定制角度解读居住者需求
—
你可能错过的内容


菲俪居家志
走|进|生|活|的「故事家」
扫码订阅→→→→→→→↗
银灰色
预约免费设计,点击下面【阅读原文】

