

环抱于都市山水的高层私人会所,以纯粹自然的简约气质,演绎摩登经典的表达方式。

设计以精妙绝伦的流线天然轮廓展开,拉近天空和云海的距离,彰显建筑与自然的融合新生,诠释尊崇会所的价值座标。


在极具深度的变化中营造空间序列,前厅进入开放式玄关空间的明暗,在起承转合中迎接自然的拥抱,水天一色的窗景,阳光透过水面的折射,在风的拂动下波光粼粼,与装置山石造景形成独特韵味,疏影斑驳灵动。





建筑室内外空间的界限在此打破与模煳,塑造无边际泳池和下沉式客厅休息区,延续天际线的线条,让水系光景无限渗透至室内空间。

延伸至客厅汀步,水晕与光影的交错律动下,仿若置身于云海间,惬意而宛然天成。










在纯净简白的色彩基调下置入当代低调奢华的傢具陈设,大理石金属等不同材质的通透质感和粗旷肌理,锻造错落有致的视觉层次和品质感。



至二层空间线条超越现实的演绎,昇华美学轮廓,让精致流线与自然完美融合在一起,仿若漫步云端,藉由故事的交织,营造我们可以去品味的空间。





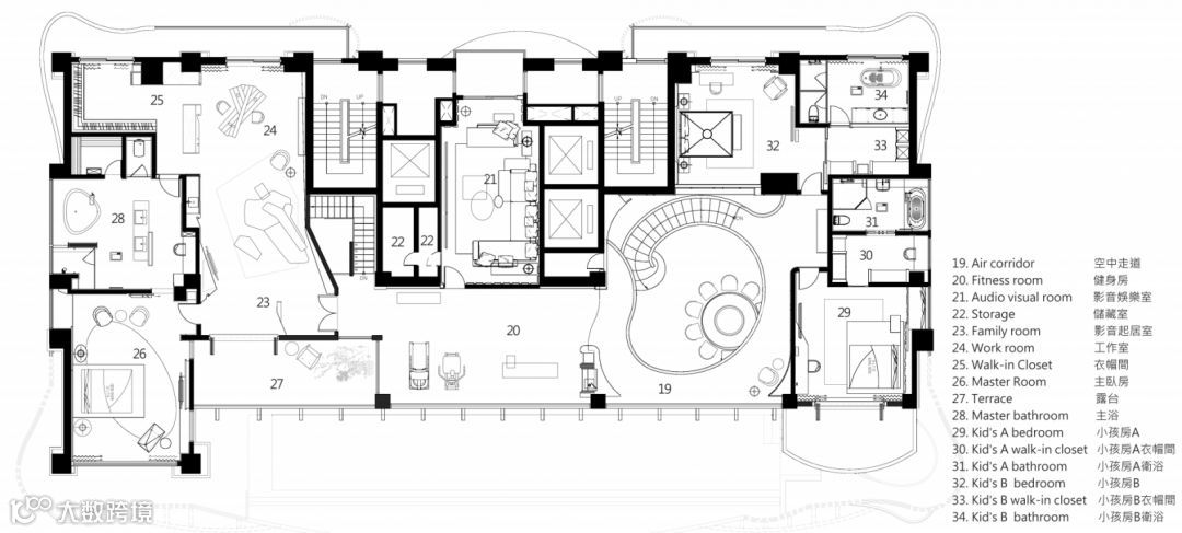
▼平面图


你感觉怎样?
想定制家具的小伙伴可以参考一下!
欢迎咨询东莞市珂琦家具


