
窗外,云集的财富在落日余晖的映衬下,熠熠夺目。窗内,是雅致舒适的生活之境,划开喧嚣。而人从繁华中沉淀,在这娴静之地凝望商海沉浮。

这就是上海静安寺核心商圈最后一手纯大平层高端豪宅——嘉天汇。设计师方磊试图寻找一种克制与平衡的手法,来演绎先锋生活、传递优雅风度。

“基于探索架构开放互连的丰富可能性,同时注重隐私和舒适,从全局统筹、再到细节把控,用现代视角将空间具化为功能性和艺术性的载体。”设计师方磊如此概述其设计思路。



客厅作为空间枢纽区域,其横轴动线贯穿玄关、餐厅、厨房,形成一种流动之美。金属元素分割的吊顶与地毯呼应,构筑T型视觉张力,配以落地窗采集充足阳光,最大化延伸入户视线。



因势利用L型墙体并结合人体工学打造悬浮柜体,同时和藏有暗门的木饰面一体布局。与之对望的岛台、橱柜,同样巧妙地将功能性融入体块,在黑白相映间凸显材质的碰撞。


餐厅吊顶延续客厅手法产生视觉韵律。利用餐桌两侧立面非承重墙,打造内嵌式置物区,以金属钢板插入石材的形式错落分布,同时白色大理石背景与米色硬包、木饰面相辅相成。

刻花玻璃与不锈钢勾勒客卫的递进层次,落地镜面有效缓解局促感。水滴状吊装龙头由顶端垂落而下,与圆柱台盆互动,硬朗酷炫,堪称点睛之笔。

在狭长走廊引入展厅陈设概念,借由材质、光线、色泽进行分割,让视觉在体现规整之余,又提升收藏品陈列的观赏性。端口拐角处与餐厅置物区的背景元素强有力呼应。



女孩房床品、背板、立面三者关系竖向递增,加以莫兰迪色系调剂,氤氲出柔情与细腻,在日光的晕染下更加温婉可人,宛如梦幻之境。

客房立面背景呈L型转折至顶,与床体上下对应。床头两侧金属支架运用亚克力层板内打光的方式,提亮整个空间。

书房、主卧、衣帽间、卫浴共同组成独立的大套间,私享静谧空间由此开启。主卧立面墙布延伸至顶面一体化呈现,下方同色系木格栅创造出横向序列感,让造型独特的主卧更添艺术美感。

智能雾化玻璃分隔主卫与主卧,一键启动便可实现使用场景灵活调整。将自然粗犷的质感移植主卫,在悬吊镜面与金属架的结合下,兼具功能与亮点。


原木色开敞柜体构建步入式衣帽间,通透感扑面而来,处处展现着精致的气质。



回形动线末端,便是凝聚核心氛围的家庭厅,承载着娱乐、休闲、水吧功能。钻石面切角既与家庭厅内体块形态相映成趣,又让视觉自由跳脱。



男孩房在垂直排序的壁布硬包下巧妙完成区域划分,亮色的点缀为空间带来欢愉与温馨。卫生间立面悬挂金属架,集镜面、置物于一体,搭配千鸟格纹饰背景,表达着前卫不羁。

长辈房设计力求内敛,床品赋予其明亮与温度,沉稳雅致的氛围是其最佳注解。卫生间则有力延续了简约纯粹的气质。



露台以地面高低区隔就餐区及休闲区,为名流精英的派对聚会提供绝佳场所。在这里纵览城市天际线,惬意悠然间自成格局。
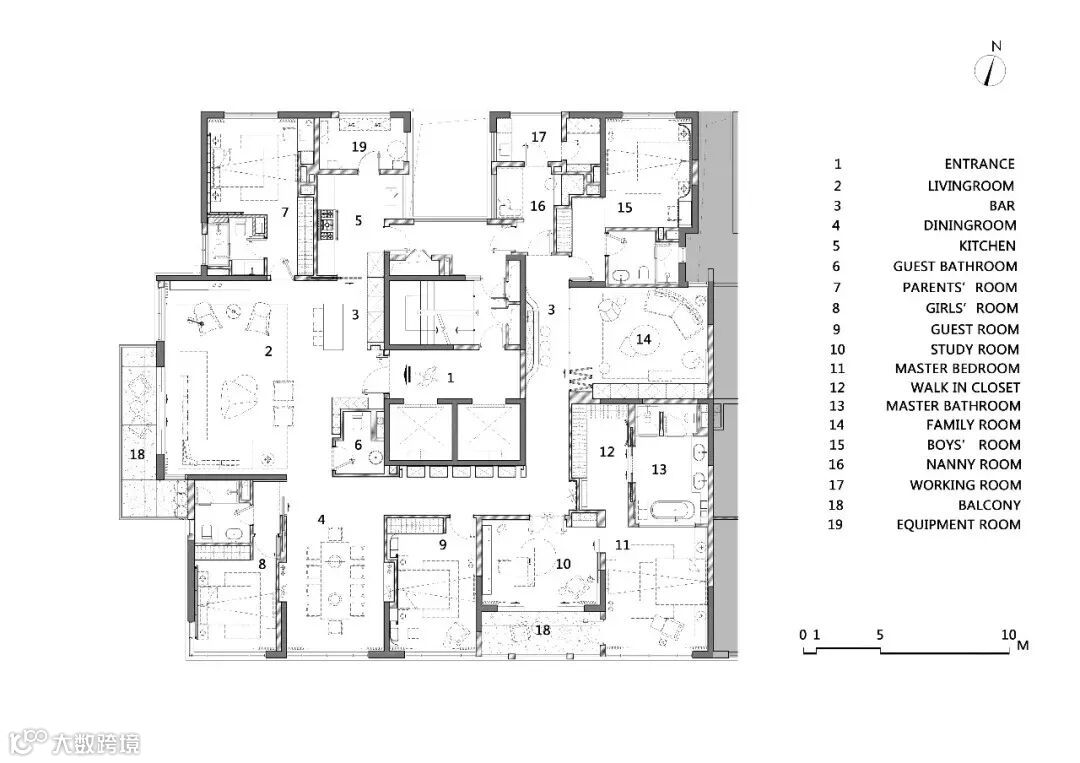
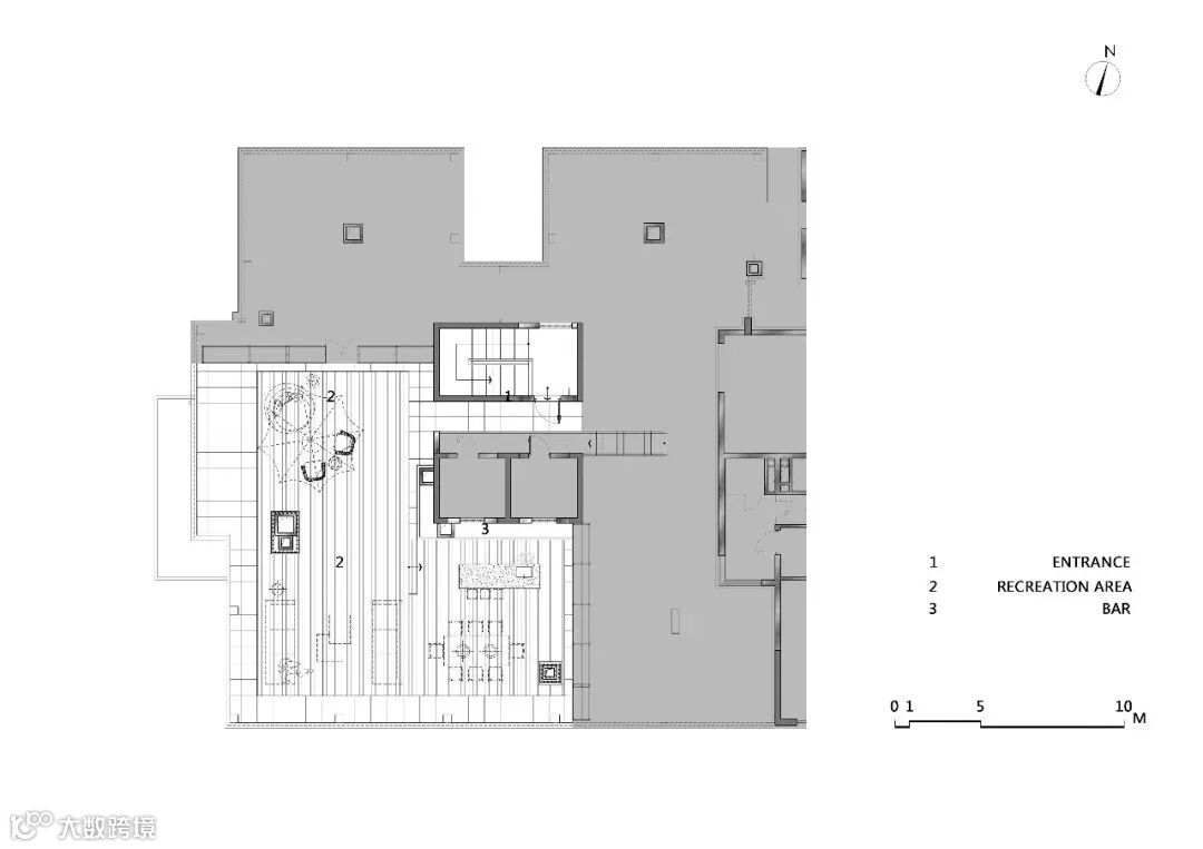
▼平面图


你感觉怎样?
想定制家具的小伙伴可以参考一下!
欢迎咨询东莞市珂琦家具


