
倚林香溪畔,聆听秋语声 | 康桥·香溪郡
香溪郡,康桥的信仰平墅大宅。位于郑州素有“长安街”之称的金水路东段,坐拥绿博园方特游乐园等周边一系列休闲生态资源体系。
/ 设计理念 /
世间要有光,而万物向阳生长。人与自然的趋光性,决定了建筑是捕捉光的容器,更是光的承载体。
因此,本案以“空间向阳性”作为室内方案的设计原则,在空间原有的结构上,将室内布局尽可能地向阳光延展开来。营造生态且兼具人文创意的阳光美墅。
纳万象于方寸之间,悟生活之寻常冷暖。
/ 客厅 /
简约而不简单,一直是设计中的终极追求,本户型的设计方案,在讲究空间动线流畅及向光性的同时,注重空间形式感。
通过对存在事物不断的感知,赋予空间新的灵感重塑,给空间使用者带来另一番人居体验。
/ 餐厅 /
客厅属多功能空间,更是生活空间的中心,设计师将客厅与用餐区、主厨区划分在同一区域,既保证了空间使用的流畅性,也将其二者从私人空间中分离,确保专属区域的私密性与恬静氛围。
家具的搭配挑选上呼应空间的色彩调性,讲究流畅的线条,崇尚少即是多,简单质朴而不失时尚的设计理念。
/ 走廊 /
/ 休憩区 /
多功能房作为过渡区域,演绎整体户型空间的书房角色,引入自然光线,既保证使用过程中的视线明朗,也提供了个人休憩的放空区域。
/ 主卧 /
此外,本户型立意“镜头里的世界”,在注重空间上功能性设计及布局的同时,软装搭配上从用餐区、过渡走廊、休憩区及卧室处皆引用了富含深意的摄影作品。
“山水无言,境如禅”,丰富空间层次的同时,为空间居住者的寻常日子里增添些许朦胧的场景戏剧性,在虚与实之间,享受小空间人居的惬意,窥视万千世界的美好。
/ 儿童房 /
/ 厨房 /
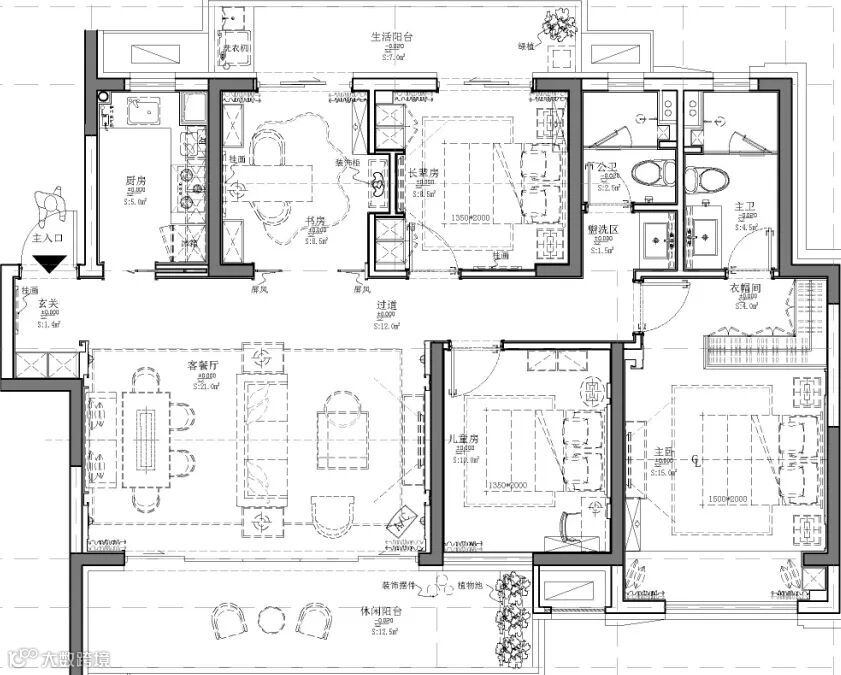
/ 平面图 /
/ 细节图 /
倚窗见林野,繁华入梦眠。
/ 客厅+餐厅 /
通过推拉屏障等半开放设置,打通内外空间,保证空间开阔的视野及绝佳的观赏性。
布局上将稳定活动区——客厅及用餐区呈开放式设计,划分在室内的阳光充足处,毗邻休闲阳台,空间上给人以通透之感。
/ 书室 /
除此之外,书室及长辈房划分在毗邻生活阳台一处,透过自然光线优化室内环境的美感,消除人处固定空间内的枯燥感。
室外阳光带给空闲使用者日常光照需求的同时,也给室内空间带来了生命,加强了空间的容量与质感,随着季节与昼夜的变化,内部空间随之变化万象,生机勃勃。
/ 主卧 /
主卧以一个精致、雅奢、从容的生活方式为空间主题,提取自然及生活中的新东方美学元素,构筑出艺术氤氲的舒适空间。
/ 儿童房 /
/ 平面图 /
/ 细节图 /
项目名称 | 康桥·香溪郡三五号院
设计机构 | 深圳市臻品设计顾问有限公司
你感觉怎样?
想定制家具的小伙伴可以参考一下!
欢迎咨询东莞市珂琦家具


