
万物皆有灵性,一草一木造就自然的旖旎风光,一砖一瓦构筑温情的住宅。

本案——西湖春天洋派住宅,坐落于历史文化名城许昌,南朝鹿鸣湖,北拥芙蓉湖,西邻饮马河千亩生态绿色长廊,山水作伴隐于市,赋予本案居室似水的柔情与灵气。

设计赋予空间灵魂,但对空间的设计构思不能脱离人的存在,使灵魂生动的,是餐桌上热腾腾的饭香气和觥筹交错的独特音符。

设计方案建立在不同的使用场景上,现代奢华的居室中,不一样的人物特性赋予空间不一样的鲜活个性,因此造就多彩的人文空间。


本案为上下两层空间,自玄关而入,客厅与用餐区呈左右分布,视觉上一览无遗,明亮通透的客厅里,落地窗设计打破室内与室外的隔阂,背景的“山色梅花图”与室外景观连成一体,使人身居室内,却依然能够感受到花叶纷飞的热闹。

虽不能如屈原所往“朝饮木兰之坠露,夕餐秋菊之落英”,但毗邻阳台的布局设计将视觉的通透性应用到每一处空间,也让居室主人体验了一把“室内饭香四溢,室外鸟语花香”的恣意盎然。


负一层区域担当宴请宾客、品酒言欢的空间角色,整体延续一层的空间设计色彩,大地咖色的设计主调里,以简洁的天空蓝灰色家具作为点缀色元素,体现空间大气的同时,更增添一份优雅和沉稳的气质。

贯穿空间的羽毛灰将整体的设计色调巧妙地汇成一体,大地的温和包容着海洋的俏皮,点缀起生活的乐趣和质量。


与此同时,书房采取半开放式设计,最大程度延伸面积,使空间延伸性及视觉通透性达到最佳效果。


私人藏酒室隐藏着主人对生活质量的追求,三五好友聚首,执一盏美酒或佐以佳肴,或飨宴以歌,颇有自古文士“堂上陈美酒,堂下列清歌”的恣意快活!



主卧空间以时尚简洁的现代风格加以诠释,木色材质搭配咖色主调,粗糙与细腻的不同肌理并存空间,牵引出空间主人对精致、优雅、舒适生活的追求。

次卧以“星点梅花”为景,使居室呈现出诗人郑板桥所述“室雅何须大,花香不在多”的意境。

深具质感的墨兰色与清雅色系的床品互映搭配,色泽典雅,在简约的空间中显得落落大方,半透明的纱帘设计,更营造出怡情养心的居室环境。

衣帽间摆放着从不同地方淘回的高质量衣物及摆饰品,时尚的装饰融入多元化的现代元素,打造出简练内敛却不失豪华大气的空间。

儿童房色彩鲜艷跳跃,不同饱和度的紫色、蓝色交相点缀,凸显出空间小主人自由活泼的性格心智。

厨房承载着传承人间烟火气的使命,嵌入式设计达到规整空间的效果,整齐划一的用具陈列,使居室主人在使用过程中对整个空间运筹帷幄,收放自如。

卫生间划分干湿两区,将功能分化以增加实用性,置入更多的收纳功能,在增加使用空间舒适度的同时提升配套质量。



下沉式庭院的存在,将地下空间的质量完全升级,与此同时,释放室外活动休闲功能,隐于内的庭院给人带来浓郁的归属感。
软装饰品精选






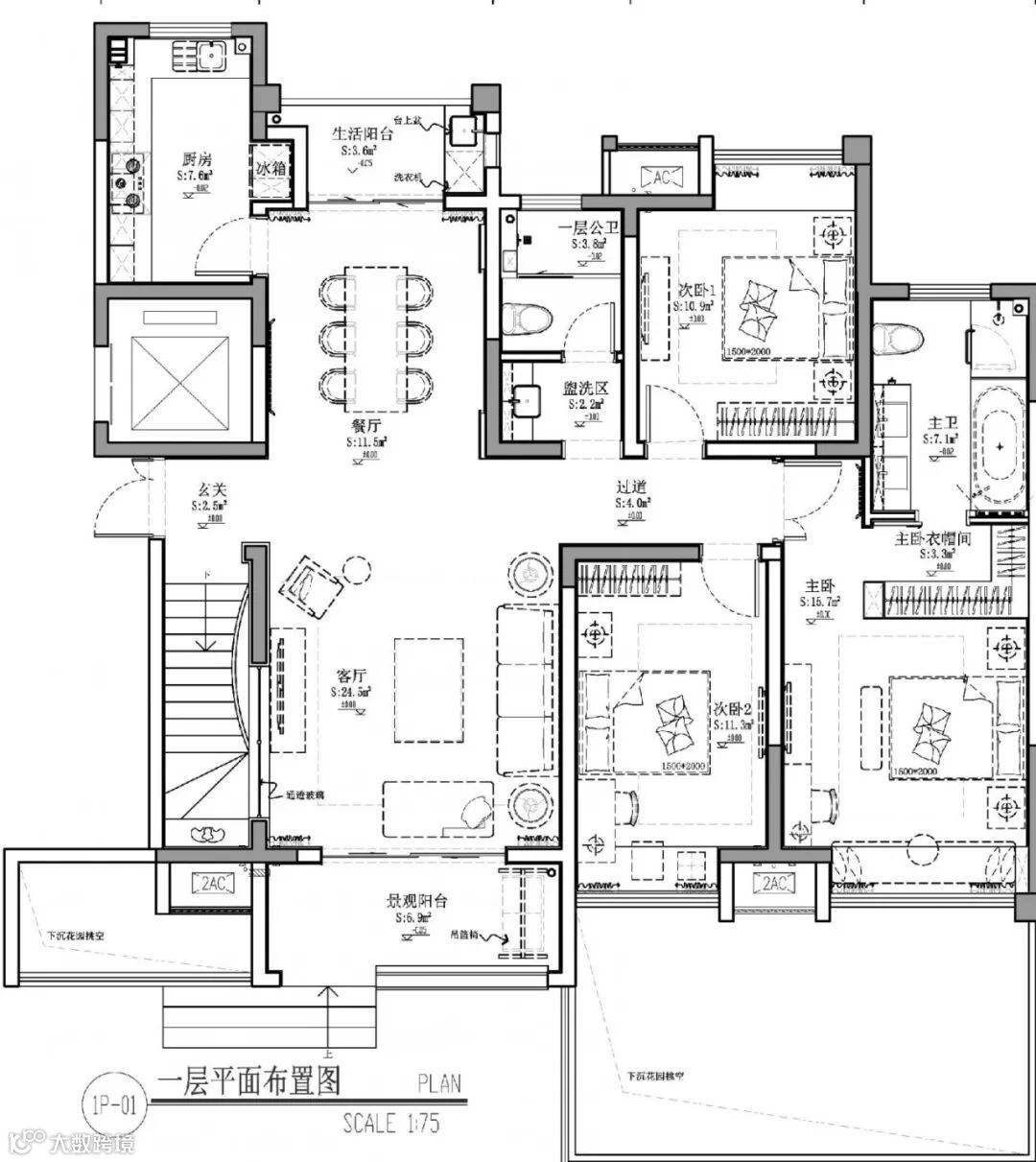
▼平面图


你感觉怎样?
想定制家具的小伙伴可以参考一下!
欢迎咨询东莞市珂琦家具


