
雅物韵意,清气两相宜


浓郁的高雅感营造出精致的空间,明暗色调和谐共处,其中点缀的少许亮色是点睛之笔。环顾四周之时,软装的搭配相得益彰,电视背景墙水墨质玉石的辉煌感更使整个空间大放异彩,是吸睛之处。

将隔墙打断,转换为屏风,巧妙的把客厅与楼梯连接为一个整体,扩大视觉的延伸性,统一性的风格也因这盏屏风引向二层,逐步扩散到所有空间。

风格上提取中式文化的精髓,再注入现代生活的气息,通过空间的营造,传递一种低调奢华,简约贵气的美感。

顶部直射下的灯光增添了墙壁通透空灵的质感,水墨般的地面涤荡在脚下,一步一涟漪。恰到好处的挂画同空间整体色调相辉映,踏上高地的转折处也藏匿美景,如同人生的旅途。


雪花白的大理石与黑色拉丝不锈钢的搭配泾渭分明,白的雪白,黑的深邃,对比鲜明,散发出一种简约干练的现代气息。





通透的长条走廊,满铺海浪灰大理石,萦萦绕绕,缠缠绵绵。


通往茶室的艺术长廊质感十足,满溢现代气息,墙身的挂画也延续了先前的风格,仿若置身艺术殿堂,踏足到哪里都伴随着雅气。



静谧幽清,悟禅解意,感受繁华都市内难觅的安宁和历久弥新的气韵,风格上恰如其分的融入现代气息,不突兀,不违和,仿佛天生就该同俱一体。



佛曰:“一方一净土,一念一清净。” 纷扰都市内体悟禅的意境,空间内外,尽避于喧嚣之外,以古为意,一盏清茶慰一方净土。


▼ 一层平面图

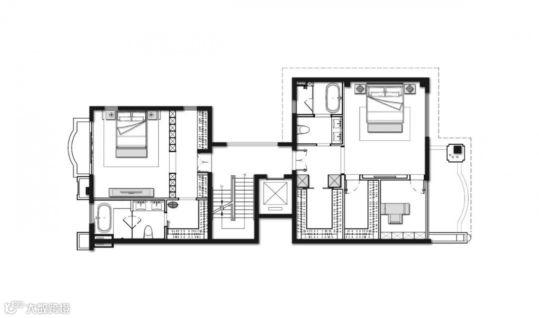
▼ 二层平面图

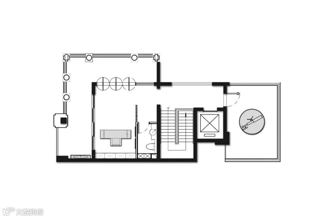
▼ 三层平面图

▼ 四层平面图

项目名称:招商依云雍景湾1802户型别墅样板房
你感觉怎样?
想定制家具的小伙伴可以参考一下!
欢迎咨询东莞市珂琦家具


