
窗外,云集的财富在落日余晖的映衬下,熠熠夺目。窗内,是雅致舒适的生活之境,划开喧嚣。


“基于探索架构开放互连的丰富可能性,同时注重隐私和舒适,从全局统筹、再到细节把控,用现代视角将空间具化为功能性和艺术性的载体。”


客厅作为空间枢纽区域,其横轴动线贯穿玄关、餐厅、厨房,形成一种流动之美。

金属元素分割的吊顶与地毯呼应,构筑T型视觉张力,配以落地窗采集充足阳光,最大化延伸入户视线。

画饰摆件以轻松姿态,绽放优雅。真火壁炉融入客厅,火焰升燃,家的气息也汇聚于此。

因势利用L型墙体并结合人体工学打造悬浮柜体,同时和藏有暗门的木饰面一体布局。

与之对望的岛台、橱柜,同样巧妙地将功能性融入体块,在黑白相映间凸显材质的碰撞。

餐厅吊顶延续客厅手法产生视觉韵律。

刻花玻璃与不锈钢勾勒客卫的递进层次,落地镜面有效缓解局促感。

水滴状吊装龙头由顶端垂落而下,与圆柱台盆互动,硬朗酷炫,堪称点睛之笔。

在狭长走廊引入展厅陈设概念,借由材质、光线、色泽进行分割,让视觉在体现规整之余,又提升收藏品陈列的观赏性。



女孩房床品、背板、立面三者关系竖向递增,加以莫兰迪色系调剂,氤氲出柔情与细腻,在日光的晕染下更加温婉可人。

客房立面背景呈L型转折至顶,与床体上下对应。床头两侧金属支架运用亚克力层板内打光的方式,提亮整个空间。


书房、主卧、衣帽间、卫浴共同组成独立的大套间,私享静谧空间由此开启。

智能雾化玻璃分隔主卫与主卧,一键启动便可实现使用场景灵活调整。

将自然粗犷的质感移植主卫,壁面让石材凹凸相间似鳞片状交错铺陈,在悬吊镜面与金属架的结合下,兼具功能与亮点。

书房与主卧以移动暗门划分,门一侧墙面另内嵌水吧区域,实用与美观兼备。

原木色开敞柜体构建步入式衣帽间,通透感扑面而来,处处展现着精致的气质。




家庭厅玻璃折叠门闭合,随即转换为独立空间,强化空间的灵活适应性以及开放融合性。


长辈房设计力求内敛,床品赋予其明亮与温度,沉稳雅致的氛围是其最佳注解。卫生间则有力延续了简约纯粹的气质。



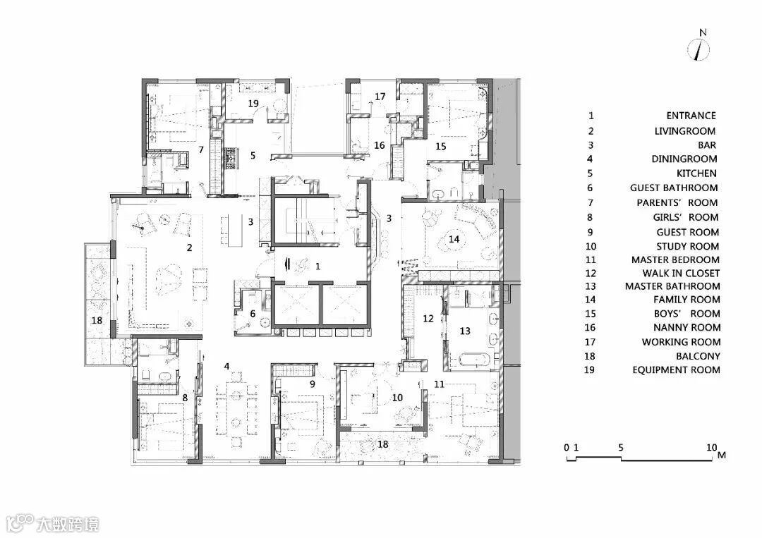
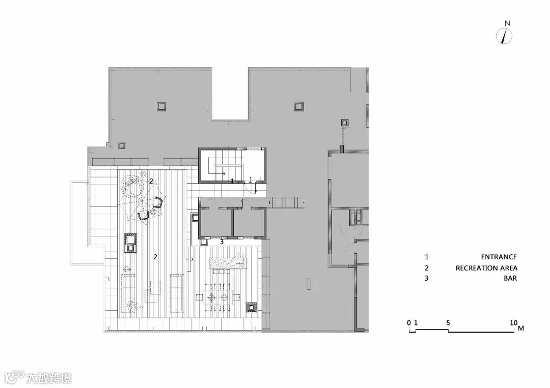
平面图


你感觉怎样?
想定制家具的小伙伴可以参考一下!
欢迎咨询东莞市珂琦家具


