柏深汇创 /总部中心
Bursen • HQ Center
柏深汇创是一家 23 年的商用家居企业
为了给广大用户更好的体验价值
23 年来,不断深耕,至今体验展厅涵盖2万平米
本案例是柏深汇创企业总部办公空间
也是柏深汇创提倡无界生活的场域体现
从 2023 年 8 月开始规划
历经半年以上时间打磨 才最终定稿
■ 柏深汇创总部视频
"
本案设计
是一次对办公生活的重新整理
让空间更适配于使用者
■ 柏深汇创总部
柏深汇创一直以“让工作成为一种生活方式”为使命。在自己的总部办公空间,也做出了自己的表达。整体的设计风格都是以融合、极简为基调,色彩以原木色以及白色结合。以人为本的去风格化的融合主题,让每个部门和都保留了他们独特的个性。在基础的功能需求外,给了更多的留白空间,为小伙伴们营造了一个更具创造性的场域。
"
• 01
ART CULTURE
SPACE DESIGN
空间韵律
-
前厅的空间设计彰显着一家企业的品牌精神。
作为企业形象体现的重要一环,我们通过模拟了一个户外休闲空间,将自然的生命感,以及生活感带入到办公场域,来传递企业的精神和理念。
-
"
• 02
CORPORATE CULTURE
READING CENTER
文化书吧
-
人与人之间也需要一些更高维度的碰撞与火花。
柏深汇创走过 23 年,“成长”,其实是永恒的话题。读书文化是柏深人自我成长以及共同成长很重要的载体,也因为我们是一个学习型的企业,让我们与很多同频的客户朋友进行链接。
-
■ 文化书吧
我们这里的书籍涵盖了艺术、哲学、文学、儿童、人物传记、个人成长、生活百科等。不但能够让员工提升自己,在家庭教育、生活品质、个人能力等都可以在森书吧得到很好的收获。
"
• 03
PRACTICAL
AESTHETICS
实用美学
-
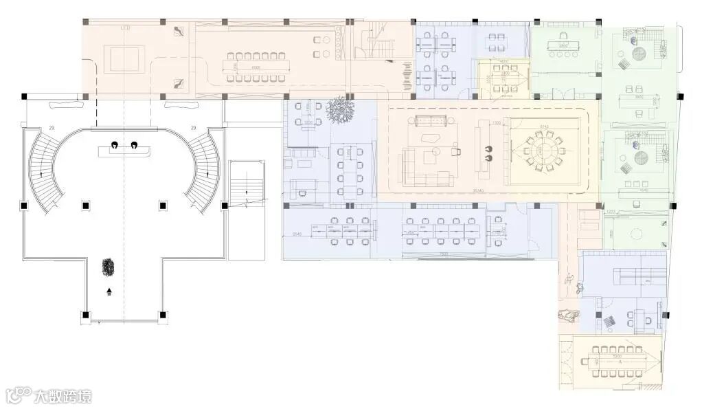
■ 柏深汇创总部平面图
空间的布局规划及功能性设计,因人而异。
整体布局围绕中央核心,“回”字形的半开放式格局,强化了人与人、与空间的互动。室内的每一件家具都很重要,它们塑造了所在的空间。
-
"
市场部
Marketing Department
■ 市场部办公区
基于该部门的属性,人员经常外出,会有加班情况。因此我们增加了加班用的智能护眼灯、节能的同时也能满足工作的需求。推拉式桌面也能隐藏走线,办公空间整洁让员工更舒心上班。
-
"
新媒体部
New Media Department
■ 新媒体部办公区
新媒体选择了升降办公桌和会议桌、白板墙、午休椅,提倡员工健康办公。给员工营造家的温馨,才能高效抓住灵感,互动更便捷。
-
"
设计部
Designer Department
■ 设计部办公区
结合设计师们的工作需求,宽大整洁的桌面,两台电脑都能摆放,更方便设计效果图,快速与客户交流。一键解锁轻微倾仰办公椅、小巧的洽谈桌,让团队协助交流更加方便,灵感并进。
-
"
采购部
Purchasing Department
■ 采购部办公室
采购部门的属性就是文件多,所以整个空间我们做了非常多的收纳区。桌面推拉式设计、台面侧柜可以直接放文件、材料色板收纳区等等,实现美观与实用并存的办公环境。
-
"
人力资源部
HR Department
■ 人力资源部办公区
小空间,但是五脏俱全,半开放的设计,屏风办公可以更专注工作,让整个办公室更加通透。方便交流的同时也独立空间。
-
"
• 04
INTIMATE LINK
亲密连接
-
■ 公共休闲区
以“留白”的处理手法,把“客厅”搬到了办公区。半开放式的形式,打破传统办公的局限布局。
在黑白色及原木交互下,像极了钢琴的黑白键,支撑起空间独有的情绪,既是实用的功能空间,也是提供精神慰藉和亲子互动的重要场所。
-
■ 公共休闲区
"
• 05
EXCHANGE
COOPERATION
交流合作
-
会议空间,是每个公司必不可少的场所。
它不仅是讨论问题,制定计划,做出决策的地方,更是展示公司形象,吸引客户的窗口。
因此,会议室的设计不仅要舒适高效,还需要具有品位、创意和时尚感,能够让参会人员感到愉悦,从而提高会议的效率和成果。
"
多媒体会议空间
Multimedia Conference Room

■ 多媒体会议空间
"
大会议室空间
Large Conference Room
■ 大会议室空间
"
小会议室空间
Small Conference Room
■ 小会议室空间
"
• 06
CUSTOMIZATION
PRESIDENT'S OFFICE
高端定制
-
办公室不仅仅是办公,也可以有生活。
我们设计之初就考虑如何将办公室变得温馨舒服,让人在工作时中脱离办公室中的压抑感,营造一种舒服自然,仿佛在家的轻松氛围。
"
销售总监办公室
Executive Office
■ 销售总监办公室
"
市场部总监办公室
Executive Office
■ 市场部总监办公室
这个空间因为女性使用,整体色彩相对柔和,“小空间大功能”,升降洽谈桌与办公桌位一体,加上大容量的储物柜,轻松解决了办公、饮茶、会议等综合需求。
-
"
总经理办公室
General Manager's Office
■ 总经理办公室
总经理是一个中国传统文化的爱好者。
对“木”有特别的情感,木生于野,安于室。吸收天地灵气,历经风霜雨雪,依然温润、儒雅。所以这个空间以原木作为基调,留白的色彩,给居住者以更多未来空间。
-
■ 总经理办公空间
■ 总经理休闲接待区
"
董事长办公室
President's Office
■ 董事长办公室
董事长是个非常深情的人,热爱生活,热爱自然。
他常说,希望柏深人在柏深汇创得到良好的体验感,在这里感受到自己的价值。让工作不止为办公而来。
董事长办公室设计以极简灰、深邃黑勾勒出深邃空间的真挚底蕴,整个空间规划开放但又很聚焦,有界又无界。
-
■ 董事长办公空间
■ 董事长沙发接待区
■ 董事长茶空间
-End-


