这个案例是设计师将中式与欧式两种不同设计风格进行了混搭,完美地营造出了一个既优雅大气、又古典奢华的空间。
项目地址:广西南宁山语城
本案设计师:李艳兰

设计师:李艳兰
欧式的华丽与中式的文化混搭,本案女主人喜欢时尚的欧式华丽风,男主人喜欢中式的文化底蕴。两者间的设计平衡,中西文化的风格。

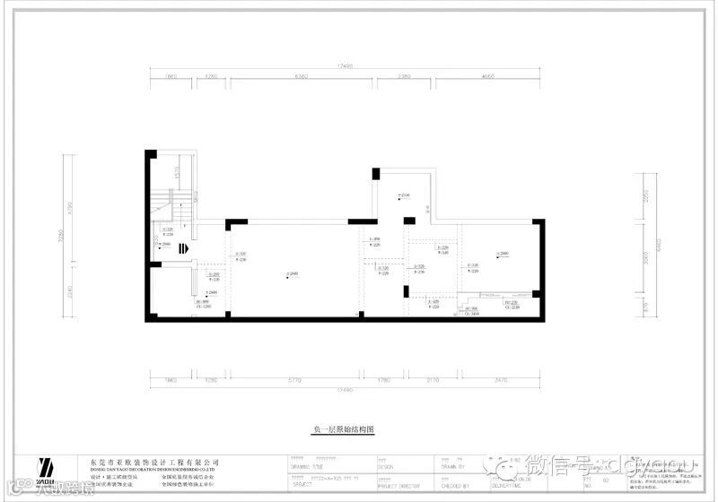
负一层原始结构图

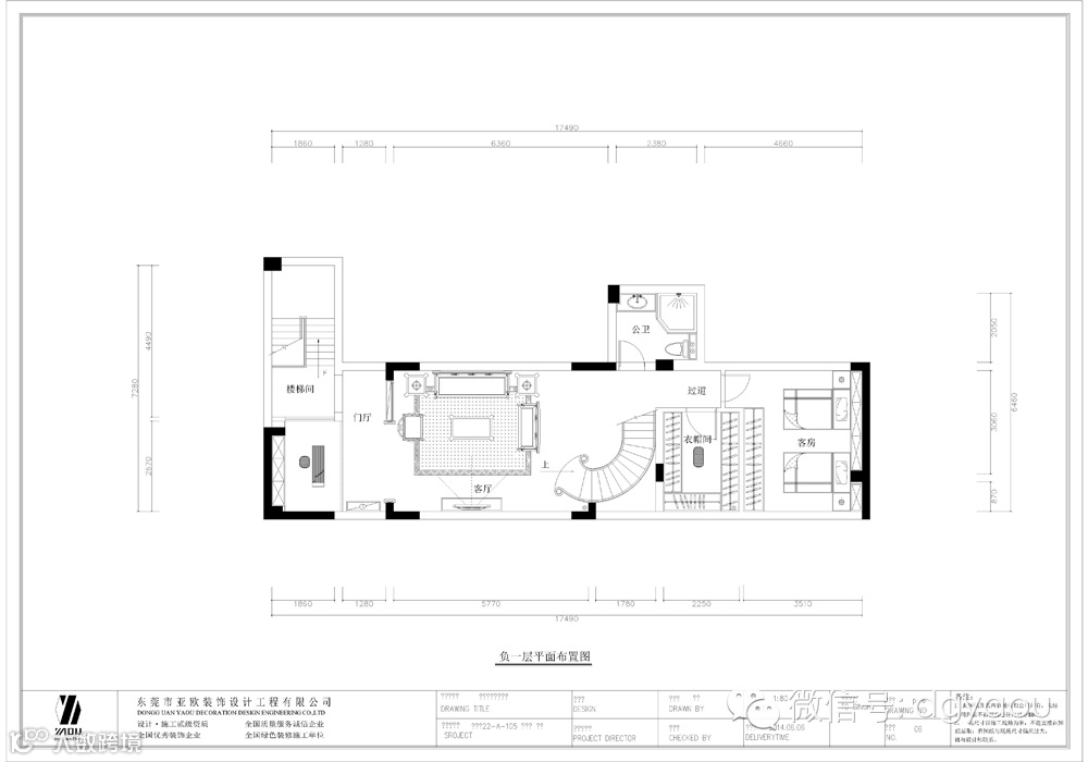
负一层平面图

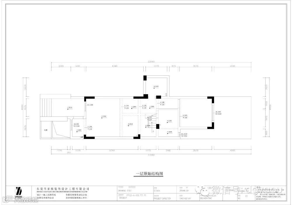
一层原始结构图

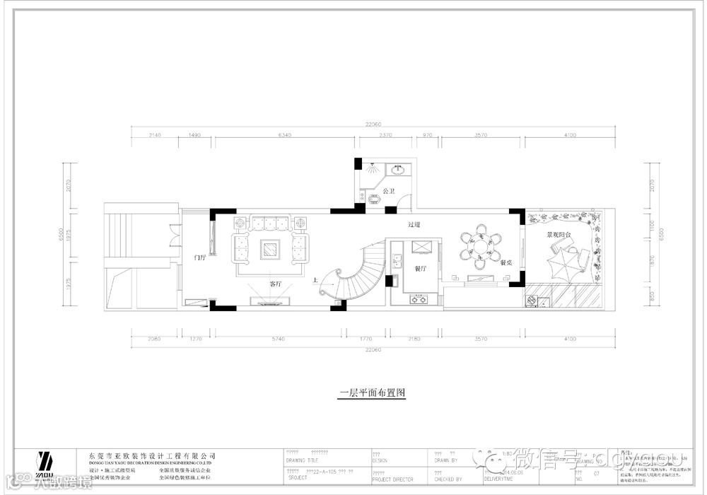
一层平面图

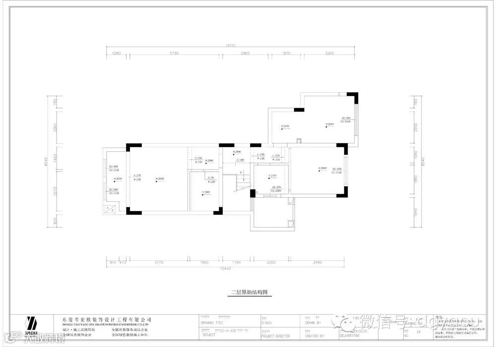
二层原始结构图

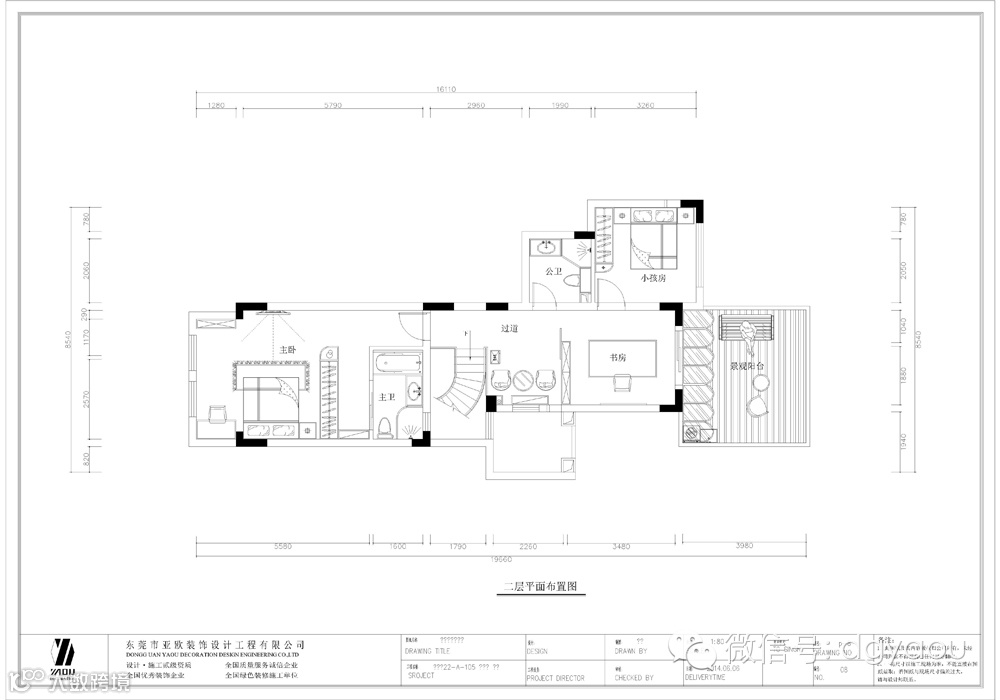
二层平面图

新颖的中式客厅设计,融和了西式风格,任何一件东西都能发现两种符号。

新颖的中式客厅设计,融和了西式风格,任何一件东西都能发现两种符号。

混搭的餐厅设计,穿插着两种风格的餐椅;烛台和那两罐子,都给空间增加了看点。

充满童趣无限的儿童房设计

主卧,恰到好处的复杂,不显的得张扬。富丽堂皇的壁纸给白色基调的空间的增添了一份祥和与安静。
更多详情请关注微信平台公众号:dgyaou,扫描下方二维码点击即可添加关于我们!

亚欧装饰官方网址:http://www.dgyaou.com
【全国服务热线】:4006-928-580
【详细地址】:广东省东莞市南城区元美路华凯广场B座806

