邓晓东
分部设计部经理
IAI亚太设计师联盟东莞分会会员
毕业于·广州美术学院·建筑艺术学院·建筑系
“亚欧杯”设计类一等奖
“亚欧杯”实景类三等奖
2014年度空间设计大奖·迪赛恩奖·十大新锐设计师奖
2014年度东莞·玉兰奖建筑装饰设计大赛·十大新锐设计师奖
设计理念:
设计是一个由空间转变成场所的过程
代表作品:
国际公馆香榭里、时捷物流公司会所、光大锦绣山河·观园、光大天骄御峰、中惠·卡丽兰四层别墅、鼎峰尚境、水印长堤····
作品欣赏
柔性空间—现代建筑表皮室内场所的演绎
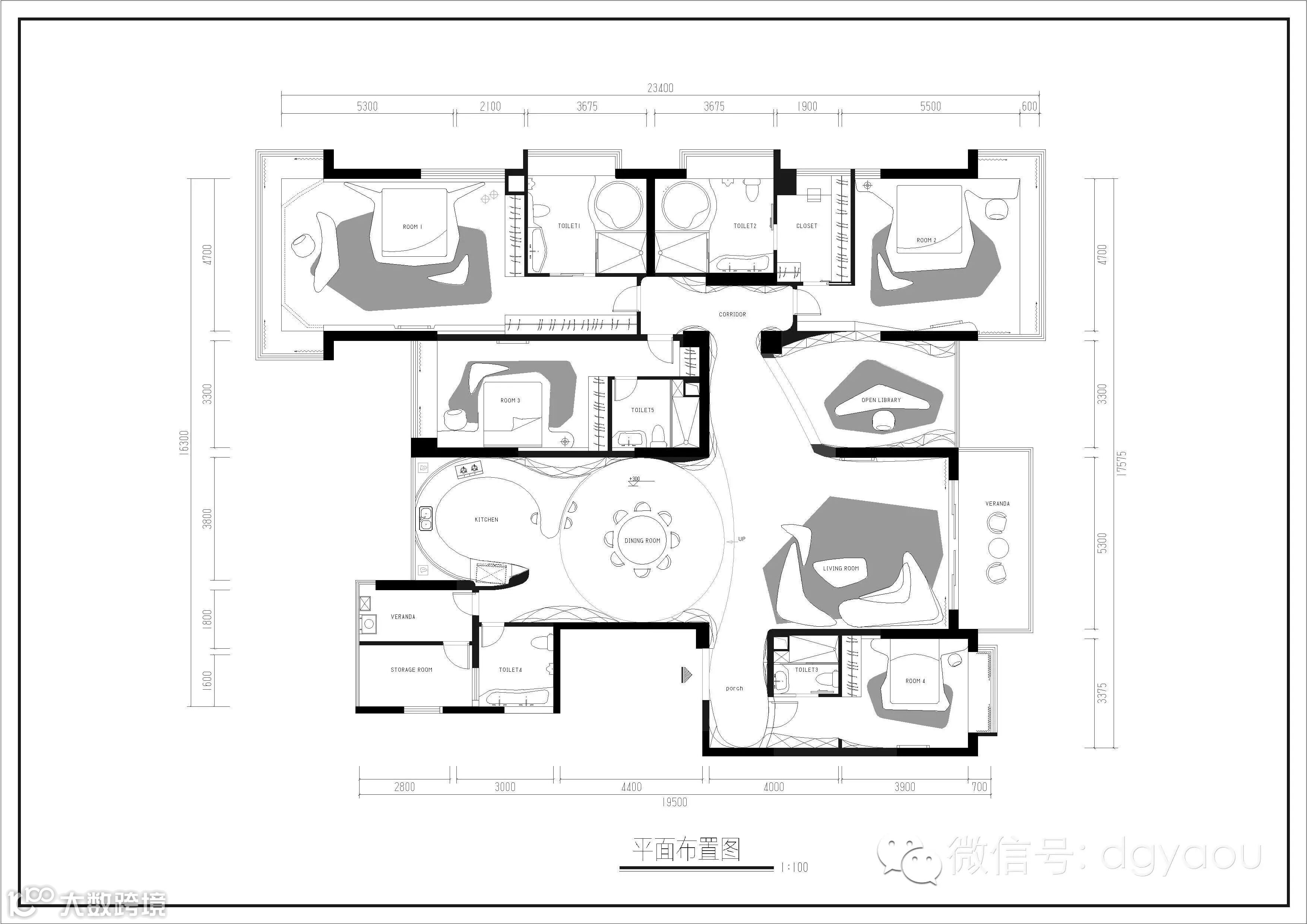
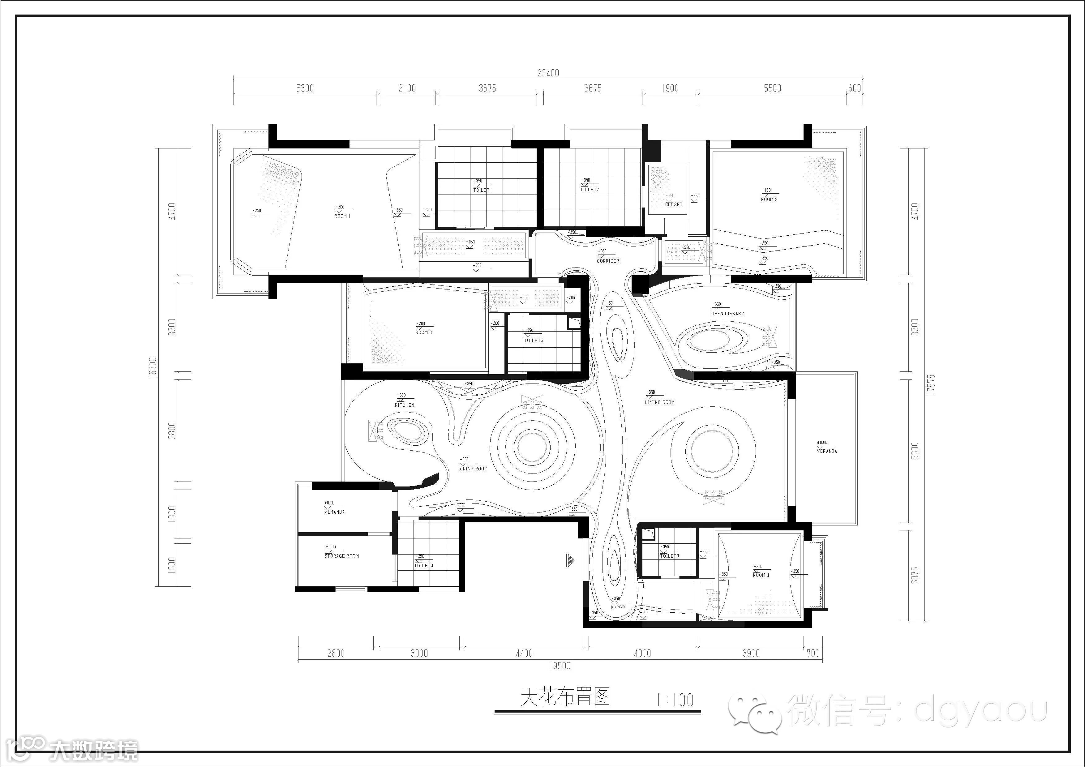
项目名称:天骄御峰
建筑总面积:339㎡
设计风格:时尚、动感
关键词:表皮 线性 流动 曲面 灯光 材料
把室内毛坯房状态喻为建筑屹立的初始框架状态再适合不过,单体建筑如想在万千建筑群里面脱颖而出,需要一件特别的外衣为其装点,也繁生了一些建筑公司专门设计一些为建筑穿衣的设计部门,行业称之为建筑表皮设计,在千奇百怪,形态各异的建筑里面,表皮底下同为规矩的几何形态,建筑表皮设计的关注和兴起,证明了一个新的时代的到来,无论是建筑还是生活工具,都希望标新立异,展现个人独特的审美志向。
本案设计就是在这种大环境里面衍生出来,一套属于追求时尚动感,拥有前卫思想人群的居住空间。
线性,流动,活跃,跳动…在设计中,一系列的词汇喷涌而出,出于竞赛作品,做出一个大胆的设想,如何把现代处理建筑立面的手法运用到室内上来,为一个毛坯状态穿上时尚前卫的外衣?
整个文案设计,呈现出一种流动的状态。整个公共空间,通过一条连续的曲线把整个公共空间连在一起,形成一个整体,统一的空间视觉效果。而在一些相对私密的空间,如卧室,卫生间,生活阳台等一些空间入口,通过流线的弯曲,形成虚实延伸的界面将其回避和隐藏。连续流线空间的处理,把原本固定的功能区域空间虚化,形成一个整体延续的空间。


立面造型设计:平面布局线性的向上拉升,形成二维的曲面造型;二维曲面的关系上,进行阵列渐变的点状装饰,得出一面三维曲面玲琅复杂的视觉效果。


天花造型设计:自由形态的天花造型与平面布局和谐一致,以形成统一的视觉空间感受。在平面布局上,公共空间的区域划分是模糊,虚化的,在天花设计中,通过天花的造型和天花灯光的设计,来完善空间区域的界限,虚实结合。

灯光设计:天花灯光的设计和布局,依赖与LED灯具的成熟运用,摆脱传统灯管隐藏问题,在灯光的设计方面,大胆的应用弧线,细光带等处理手法,使得空间更具流动性和现代感。




灯具方面,同样抛弃传统的吊灯形式,而是运用天花与灯一体化设计手法,形成一个流动,延伸,活跃的视觉空间。运用建筑灯光设计的一句话:见光不见灯,在整个设计文案中,灯光是于造型结合一起来统一规划设计的。光就是造型,造型就是光的设计理念,让每一盏灯不止是照亮空间,同是装饰空间的效果。
材料应用设计:流动曲面,多变的,无规律的造型如何实现?选用何种材料成为现实?最初曲面的应用出现在工业产品中,汽车和生活用品上,建筑行业模具化的生产和加工,属于后起产业,复杂的造型,需通过开模加工。而材料方面,室内装饰类,不同于室外,与环境的影响没有太大干扰,玻璃钢(亚克力材料)是首选,其可塑性极高,表面可做成任意材质等特点,依赖于这些技术,和材料,使设计得以实现。地面材质,沿用最古老的装饰材料,石材和木材。公共空间运用大理石加工拼花技术,自由流畅的地面形态与天花相呼应,形成和谐的空间关系。

室地面使用实木地板,暖色调卧室木地板相互映射,调和出现代,散漫舒适的睡眠空间。

作品欣赏
品味生活—美式经典家居演绎
项目名称:国际公馆·香榭里
建筑总面积:320㎡
设计风格:美式风格
本案为复式结构,通过实木的开放纹路,清晰的真皮质感,配搭出一股浓浓的古典没事风情,餐厅暗棕色的实木家具,客厅热情的地毯花纹,给人一种尊贵古典感,玄关大理石与墙布软性的配搭,温馨而又有层次感。
美式风格是美国生活方式演变到今日的一种形式。美国是一个崇尚自由的国家,这也造就了其自在、随意的不羁生活方式,没有太多造作的修饰与约束,不经意中也成就了另外一种休闲式的浪漫,而美国的文化又是一个移植文化为主导的脉络,它有着欧罗巴的奢侈与贵气,但又结合了美洲大陆这块水土的不羁,这样结合的结果是剔除了许多羁绊,但又能找寻文化根基的新的怀旧、贵气加大气而又不失自在与随意的风格。
美式家居风格的这些元素也正好迎合了时下的文化资产者对生活方式的需求,即:有文化感、有贵气感,还不能缺乏自在感与情调感。




客厅作为待客区域,主人要求沉稳并且明亮,通过石材和木材的修饰,营造出主人家喜欢的大气沉稳的历史情怀。



卧室布置较为温馨,作为房子主人的私密空间,主要以功能性和舒适性为考虑的重点,墙布,软包与实木的搭配,渲染出和谐的睡眠空间氛围。

作品欣赏
现代北欧—简约之下的居家生活态度
项目地址:卡丽兰28栋
设计面积:350㎡
设计风格:现代北欧
简约,带着一股北欧的时尚气息,刚一看上去或许感觉没有太多的设计修饰,当你慢慢感知后会发觉,其实设计的细节语汇已在不知不觉中融入家居的每个角落,这种不经意间的设计,传递着内敛的生活情节,而生活其中也会很舒适,简约设计、简单生活。
每一个家都有着不同的面孔,都呈现出独有的表情,透过对家的观察可以反映出主人的生活方式和对生活的态度,相同的是每个家都承载着对生活的热爱和美好憧憬。
室内整体以白色为主基调,辅以柚木地板及材质,营造出明亮利落的空间视觉效果,部分家具采用古船木饰面贴面,地面通体铺装原木实木地板,让时尚简约的空间氛围中融入自然、温馨、舒适、内敛的设计元素。体现出了典型素雅的北欧风格,设计中屏弃了造型与材料的繁复叠加,装修部分以减法的设计理念朔造空间格局,装饰方面则运用了加法的设计手段来渲染生活的品位。洗练、明朗、舒适、自然是它的气质,简约是它的设计风格,简约设计就如同具有质感的白纸,可以随着时间的推移对环境进行调整、改变时留出足够的空间。





电视墙:休闲田园的壁炉设计配搭木材,鹿头装饰,材质方面运用浅色明亮的文化石和肌理漆的搭配,作为整个客厅的主角,体现主人对休闲田园阳光的居家环境的追求和生活态度。
沙发背景墙留白,欧式特有的装饰挂画点缀,以及地板可以由客厅直接铺装到厨房,令两者之间视觉上贯通性极佳,还增加了空间延伸的感觉。

阳光通过大飘窗洒入室内,开放式厨房,枯枝,藤灯,茶几,文化石墙,楼梯墙面粗慥机理漆。乍眼一看似乎平淡无奇,细细品尝,无处不在的细节设计考虑。

1、简单到只有白漆的沙发背景墙上,一块小层板,打破了墙面的单调性,一些装饰物的摆设,是主人对居家态度的诠释。
2、舒适的纯色布艺大沙发,古船木茶几,休闲落地吊灯,都是房子主人休闲居家态度的体现。
3、楼梯木踏板底部细节藏灯处理,楼梯扶手简介的造型,吧台延续电视背景造型的休闲设计,都是房子主人的最爱。
4、过道墙面凹位的处理,文化石及装饰层板,原始吊灯灯泡的配色,北欧风味淋漓尽致。

楼梯顶部树枝灯饰,枯枝,古船木,奶牛皮地毯,鹿头等装饰,让整个简单到墙面没有任何装饰的空间丰富起来。

亚欧装饰是一家集家居设计服务、工程施工服务、公共装饰设计服务、材料物流配送、售后服务于一体的全国优秀装饰企业。
东莞市亚欧装饰设计工程限公司(总部)
ADD:东莞市南城区元美路华凯广场B座8楼
TEL:0769-88777800 FAX:0769-88777680
E-mail:dgyaou168@163.com
亚欧装饰华凯分公司
ADD:东莞市南城区元美路华凯广场B座8楼
TEL:0769-22888221 FAX:0769-88777678
E-mail:hkyaou168@163.com
亚欧装饰阳光分公司
ADD:东莞市东城区阳光假日南街33号
TEL:0769-22888030 FAX:0769-22888995
E-mail:ygyaou168@163.com
亚欧装饰塘厦分公司
ADD:东莞市塘厦镇四村塘兴路隆福花园103号铺
TEL:0769-82612900 FAX:0769-82612900
E-mail:txyaou168@163.com
亚欧装饰大朗分公司
ADD:东莞市大朗镇松佛路188号首层1号铺
TEL:0769-81208865 FAX:0769-81208865
E-mail:dlyaou168@163.com
亚欧装饰南宁铂宫分公司
ADD:广西南宁民族大道127号铂宫国际1805号
TEL:0771-5511968 FAX:0771-5528200
E-mail:nnyaou168@163.com
亚欧装饰南宁万达分公司
ADD:广西南宁市青秀区东葛路延长线159号景晖花园J13栋2-04铺
TEL:0771-5511218 FAX:0771-5511218
E-mail:wdyaou168@163.com
【全国统一服务热线】:4006-928-580
【亚欧装饰官方网址】:http://www.dgyaou.com

