圣堤雅


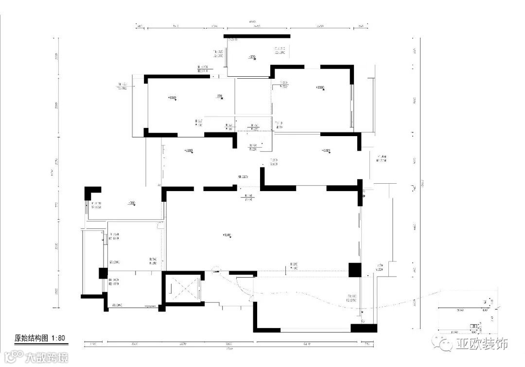
▲原始结构图

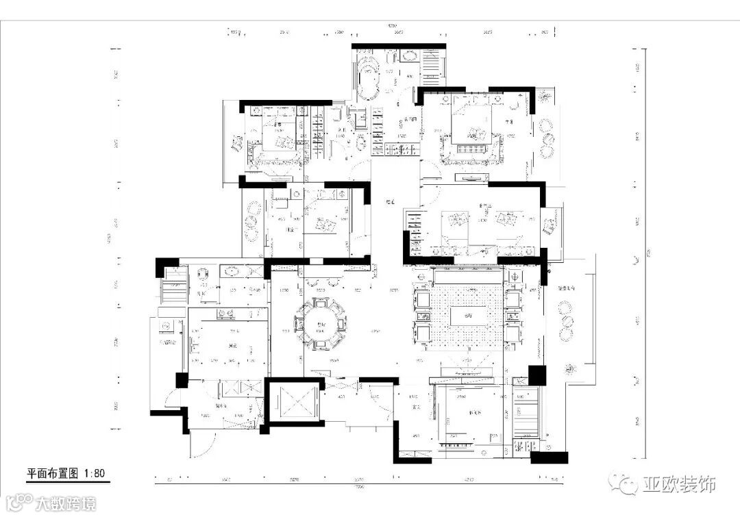
▲平面布置图

▲客厅
本案为五房二厅三卫一厨的平层住宅.建筑面积为272平方. 环境优美,以一家六口为依据进行设计,突出温馨且不失时尚之感。


▲休闲区
本案设计师以简洁明快的设计风格为主调,全面考虑,在总体布局方面,尽量满足一家六口生活上的需求,主要装修材料为浅木色为装饰饰面,以木色的优美含蓄的线条装饰玄关及各种景点,创造一个温馨,健康的现代家庭环境.环境室内设计区别于简单的装饰设计就在于环境艺术设计是从全局出发,而不仅仅着眼某一点或某一个墙面的装饰.力求达到统一中带有变化,和谐中产生对比的要求。


▲玄关


▲主卧
设计师介绍 
谭 翔
毕业于广东工业学校珠海校区
环境艺术设计专业
设 计 理 念:当家居成为艺术,生活就是艺术
设计专长:现代简约、简约欧式、现代中式
业余爱好:游泳、慢跑、爬山
代表作品:厚街湖景壹号、桥头山水园、丽水佳园、水岸华庭、天利中央、圣堤雅、鼎盛中环、天邑湾、虎门国际公馆......



