Case introduction
案例介绍
现代简约风格以简洁的视觉效果营,造出时尚前卫的氛围,现代家居设计早已不仅仅是为了应付基础的生活需要,而是要兼具灵动脱俗的艺术美感,要实现更聪明、更智能的人性化居住体验。
客厅书柜电视墙的设计,满足藏书又大气。从使用功能和设计美学讲,非常时尚和唯美,都能被更多的人接受,才能造就满意空间。
项目名称 | 区 政 府
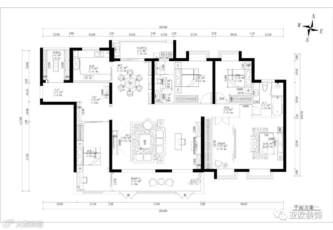
项目面积 | 200㎡
设计风格 | 简 约 风
设 计 师丨李 艳 兰





集团总部
地址:东莞市南城区周溪众利路阜东路口1号
邮箱:dgyaou@163.com
公司网址:www.dgyaou.com
广东区域
亚欧设计院:东莞市莞城区东纵大道光辉大厦11楼
东城分公司:东莞市东城区东泰花园中信阳光假日南街33号
塘厦分公司:东莞市塘厦镇塘厦社区环市路宏业花园宏建楼二楼201
广东片区物流配送中心:东莞市南城区周溪众利路阜东路口1号亚欧装饰物流园
广西区域
铂宫分公司:南宁市青秀区民族大道127号铂宫国际1805-1808号
万达分公司:南宁市青秀区东葛路延长线159号景晖花园J13栋2-04
广西片区物流配送中心:南宁市西乡塘区铁路仓库北区4号仓库长隆休闲山庄旁
邮箱:gxyaou@163.com

