MODERN LUXURY
返璞归真 ,惬意舒适
设计师:王康庄
项目位置:森林湖·香樟林
设计理念:
合理划分空间
让设计融入生活
营造自然、有品味
的家居空间。
现代简约·少即是多
时下
现代简约风设计
已成为最具代表性的风格
无论是时装、建筑亦或是室内设计
家的设计也是如此
简约的流行元素
以少胜多、以简胜繁的设计理念
玩转出一个个温馨、亲切的时尚家居环境
森林湖·香樟林·DESIGN
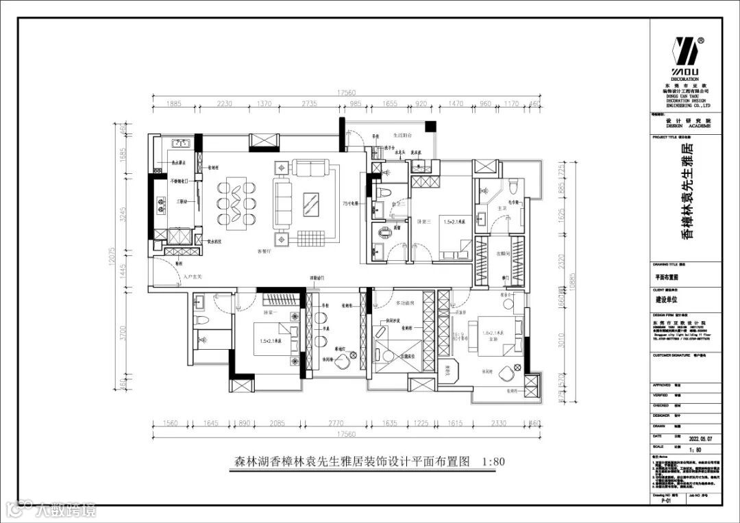
#平面布置图
森林湖·香樟林·DESIGN
#客厅空间
客厅空间整体简洁大方,空间中发挥出最大的使用功能,减去繁琐。在少装饰的同时,以简洁的造型、完美的细节,营造出时尚前卫的感觉。
森林湖·香樟林·DESIGN
#客餐厅空间
客厅与餐厅相连,纵向跨度拉伸了空间感,开放式的布局让优雅、简约的气息贯穿整个客餐厅,拉伸了空间感,整体看上去通透宽敞。
森林湖·香樟林·DESIGN
#书房、多功能房
舒适清雅的书房,提供充足收纳空间的同时兼作书房。没有过分的装饰一切从功能出发,简约实用。
多功能房,可作为小孩玩耍娱乐的天地,从实用性上,它的储物空间和休闲空间也能让你满足需求 。
MODERN SIMPLICITY
森林湖·香樟林·DESIGN
#卧室空间
卧室空间延续了整个空间的灰白色基调,简洁沉稳,没有过多的细节雕琢,静谧沉默。这样一个安静舒适的空间,让人摈弃生活的繁杂来到这里感受生活的安详,没有浓重刺眼的色彩和造型,每一处都是柔和、平衡的元素。
家是一个疗愈的代名词
是最简单与丰富的心灵居所,
又或者是一方清净的精神场域。
而在楷模设计师空间设计笔触下,
被赋予了当代时尚的新定义
......
往期推荐
关注我们了解更多装修风格
DECORATE
微信公众号:dgyaou
官网:www.dgyaou.com

