Location | 铜陵·北斗星城
Design Company | 汉楠设计
Execution Unit | 汉楠装饰
Area | 500m²


ORIENTAL OFFICE
踏入、触碰、颤栗、消逝,
带动着身体的电波传导至地下,
人们在这样的触电中,踏入东方的世界观,
感受视觉传递出的别样感官。
潜藏于细节的内敛美学,隐喻在大局的东方秩序,
一种追随于心的宁静,
一场话未出口的心照不宣,
一面东方古典、一面现代内秀的山鸣谷应,
静湖,照大川。
原始结构图:

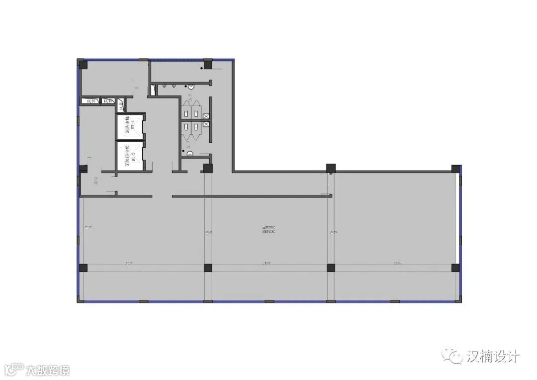
平面方案图:

墙壁朦胧的影子来自光线与绿植的玩笑,
大面积的木质混合着玻璃,
营造出空间的清透与延伸,
儒家的中庸在隐秘的入口得以表达。
反开放思维在美学复兴中逐渐丰富。
折页屏风背景下的定制家具,
突破旧有概念中笨重感的前台设计,
东方语汇下的设计细节,
成为一个又一个明亮的存在。



水吧区承担 LOUNGE 与公司分享的场所,
活动的多重举办赋予其多重身份,
以体块成为空间审美品质的铺垫。
人们在设计空间中感受到的设计,
终将归于时代留痕,价值生长。



时光将办公生活酿成常态,
光影在结构中谱写着一曲凯歌,
东方意趣的边际融于现代,
远山淡影,心境恬澹,
极简,成了办公美学最高的道德。




东方人的交互尚有余盈,
阶元系统的迭代继继存存,
空间自我意识的交流,
成为交互中的交互。



暮色四合、月华满川的静谧,
相投于办公空间所需环境,



于是,大隐于市的大寂静,
在不断安放的生活中,
怀旧而不怠,
传统而不羁。


我们感慨于空间中的空间,
设计中的设计,
交互中的交互,
空间精神的内涵与美感,
于进程的节律中体现价值观的诉求。
汉 楠 室内设计,您的空间设计顾问!
【联系我们】
微信:18656201636 QQ : 958318793
Tel : 0562-2666021
Add:铜陵市红星美凯龙北厅四楼

