
原始建筑结构图

业主需求:家里一共四口人居住,有两个小孩,一儿一女。
男主人需要独立书房
两个小朋友也需要有自己的独立房间,房间需要学习功能。
整体格局(特别是客厅)要明亮大气,不喜欢琐碎的空间。
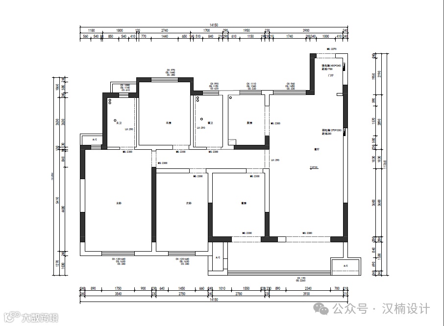
平面方案图

设计思路:从需求上看,整个格局没有必要去做大的改动。将北面的房间缩小,让主卧的门廊区域变大,做成一个衣帽间,这样主卧的功能性就更完善。
在主卫和客卫都保留的同时,客厅做了一个10米的厅柜展示背景,从门厅一直延续到客厅,视觉上呈现出一种大厅的感觉。
厨房是把表面的墙拆掉,做了一个外挂的移门,这种玻璃移门相较于原始的门洞来说是延伸了空间感,使得餐厨的空间更宽阔。
主卧的右边是两个孩子的房间,左边是男主人的书房,整个格局是非常方正的,从平面方案上也可以看出,卧室区域(左下)和功能区域(右上)是由一条主通道划分开来的。





男孩房将原来阳台的地方变成相对独立的空间,一边是书桌,另一边是书架,有效利用空间。整体颜色还是以白、米、灰为主,简单而温馨。



主卧的空间还是非常可观的,分为三个部分:主卫、衣帽间和睡觉休息的地方,功能区域划分明确。意式风格也是非常在乎线条感的,线条使得空间看起来更有层次感。除了线条感外,卧室整体色调以米白色为主,它既不像白色那样过于清冷,又比奶油色更加纯净,恰到好处的营造出一种温馨舒适、看起来也比较简约大气的氛围感。

客卫视觉上也是比较素雅,灰色地砖搭配白色素墙砖,整体是做了一个干湿分离,淋浴房做的是全隔断,避免有水溅出。和整体风格一致,兼具实用性。
Project Information 项目信息°
设计出品 : 汉楠设计
项目名称 : 吾悦华府
项目面积 :140㎡
关于我们:
铜陵一家专注于全案设计的公司
设计理念:
设计很有价值但是执行和结果才是一切
服务项目:
别墅设计 I 大宅优化 | 平层设计 | 旧房改造
设计团队:
均毕业于知名设计院校 有多年室内设计经验
联系我们:
红星美凯龙四楼汉楠设计
Tel:18156203708
线上预约设计师:



