
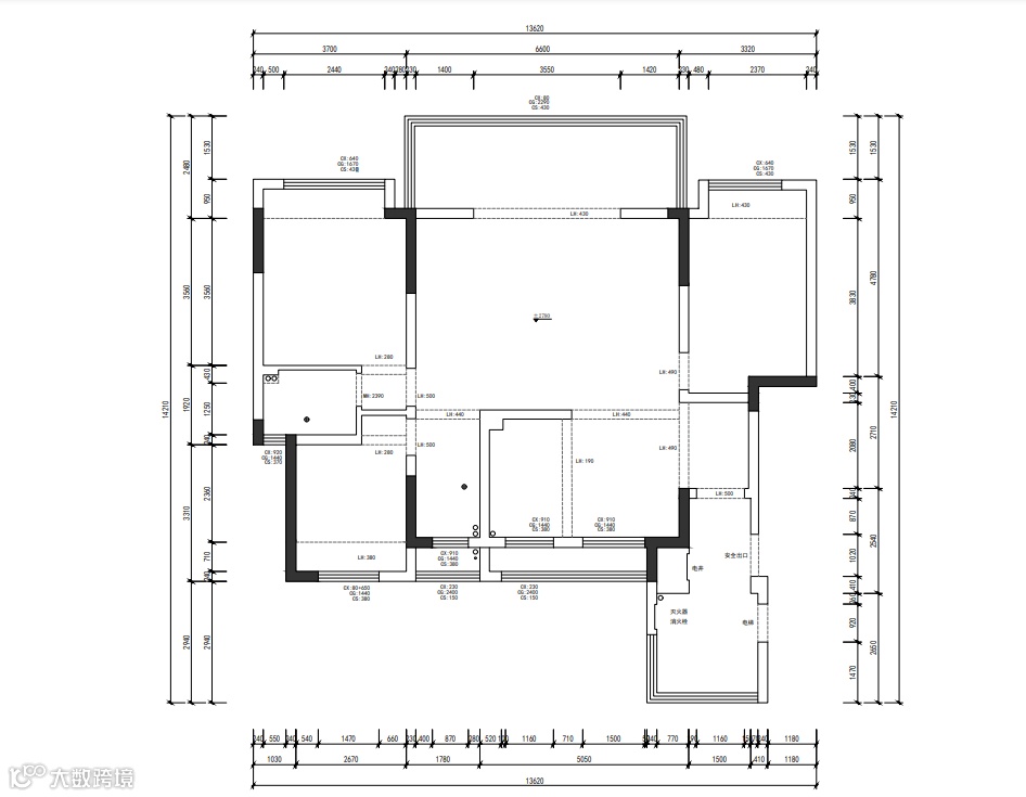
原始建筑结构图

平面方案图





厨房:
客卧的飘窗保留下来,与书桌连接,提供了工作与学习的空间。自成一方静谧天地,有着娓娓道来的自由舒适氛围。
Project Information 项目信息°
设计出品 : 汉楠设计
项目名称 : 毓秀·湖畔天楹
项目面积 :125㎡
关于我们:
铜陵一家专注于全案设计的公司
设计理念:
设计很有价值但是执行和结果才是一切
服务项目:
别墅设计 I 大宅优化 | 平层设计 | 旧房改造
设计团队:
均毕业于知名设计院校 有多年室内设计经验
联系我们:
红星美凯龙四楼汉楠设计
Tel:18156203708
线上预约设计师:



