
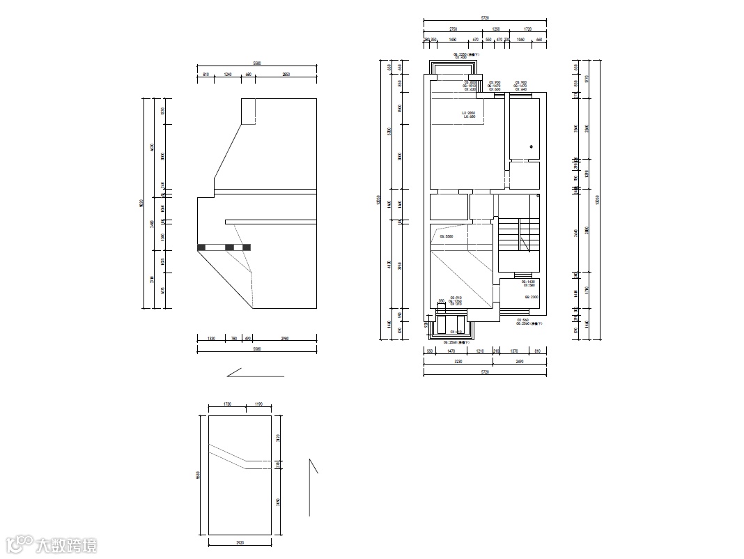
原始建筑结构图

平面方案图
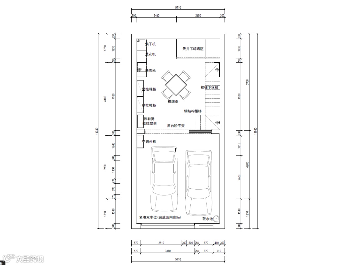
负一层:

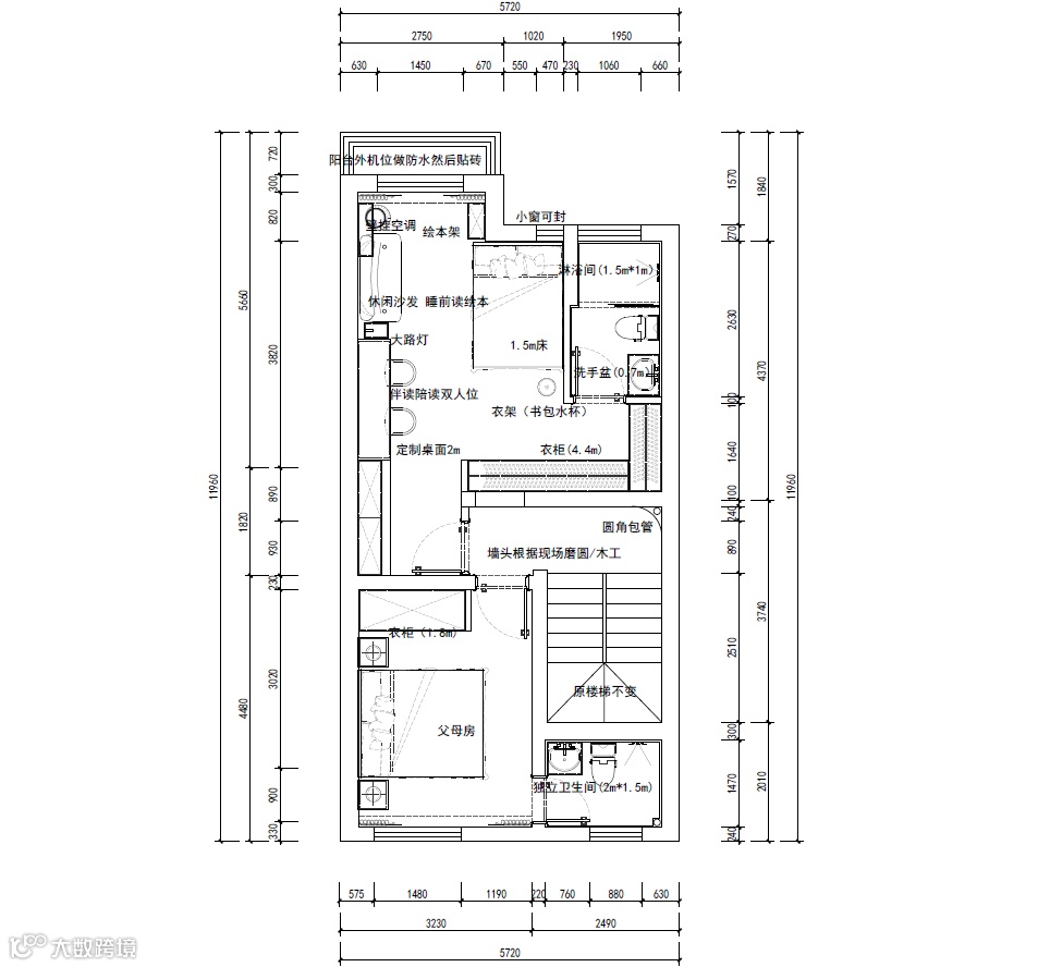
一层:

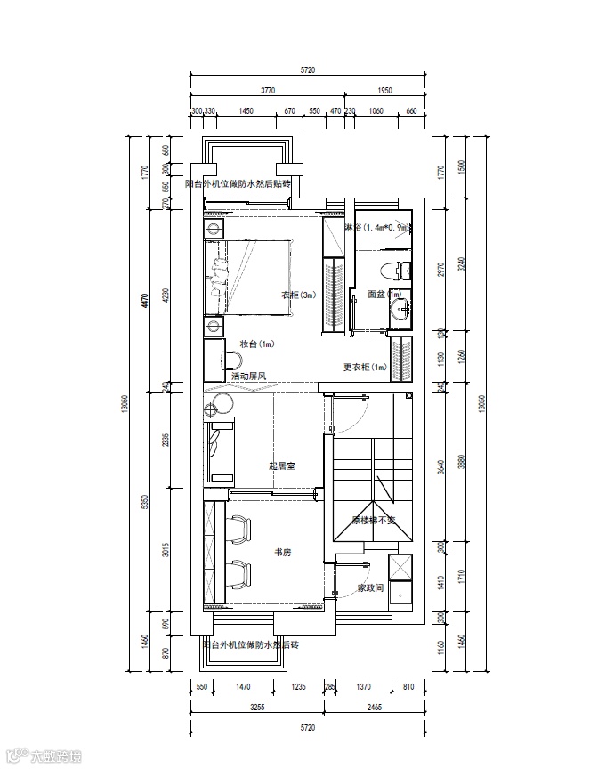
二层:

三层:








一层的功能是客厅+餐厨房,原始户型是卫生间在厨房里,相对来说有些不合理。我们通过负一楼的楼梯移位,可以空出一个楼梯间的位置,这个地方改成了卫生间,既解决了布局不合理的问题,也增大了厨房和餐厅的区域。这样使得空间优化更加合理。
整案的风格都是偏中古风的,我们可以看到很多复古的元素,这样旧时光的味道就隐藏在家里。感受到念旧的浪漫,时间的沉淀~






三楼首先是保留了天井采光结构,因为房屋是边户+长方形结构,南北有阳台,但东西两边是没有窗户采光的,所以天井采光就非常重要,一定要保留下来,这样使得空间的光线充足,更加明亮,同时也能拥有别墅的居住体验。
空间上是将整体设计成一个大套间,包含起居室、书房、卫生间等等,可以说是一个能够单独使用的小居室,能满足基本生活需求。
风格上还是偏中古风,复古的家具,柔和而温馨的氛围。在流动的时光里感受淳朴的氛围,日复一日的平淡中也能体会到历久弥新...
Project Information 项目信息°
设计出品 : 汉楠设计
项目名称 :芙蓉澜山
项目面积 :220㎡
关于我们:
铜陵一家专注于全案设计的公司
设计理念:
设计很有价值但是执行和结果才是一切
服务项目:
别墅设计 I 大宅优化 | 平层设计 | 旧房改造
设计团队:
均毕业于知名设计院校 有多年室内设计经验
联系我们:
红星美凯龙四楼汉楠设计
Tel:18156203708
线上预约设计师:



