
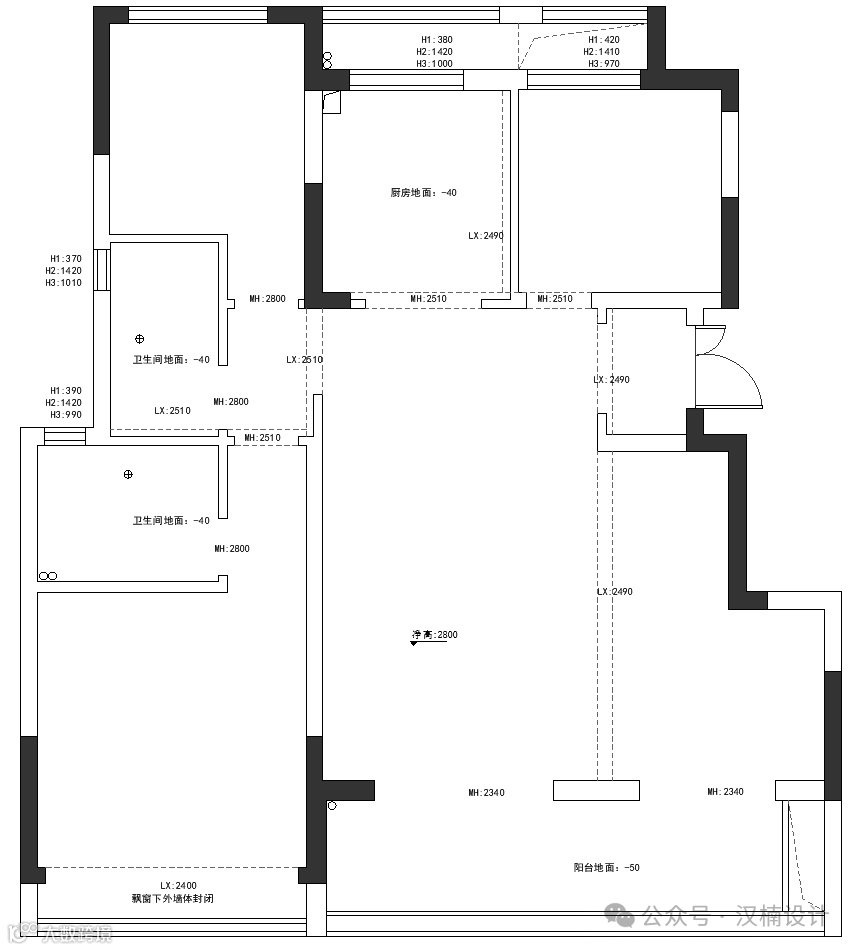
原始建筑结构图

业主需求:
原始房型问题:
餐厅在进门位置,空间不好利用;
南面阳台旁边的房间太小;
客卫的位置和动线都不合理。
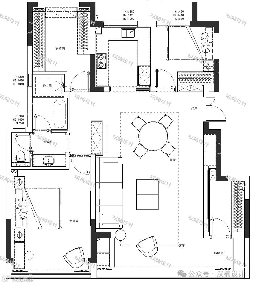
平面方案图

设计思路:
①舍去阳台小房间部分空间,延长电视背景墙,增加储物空间,拓宽进门视野,客餐厅一体,空间更开阔。
②原有南向次卧作为杂物间,增加储物功能。
③晾晒区放在杂物间门口,阳台东侧的位置,避开客厅区域,能够做到隐蔽晾衣。
④原有的两个卫生间布局改变,做成一个日式的三分离卫生间,使用更方便。
⑤主卧室面积扩大,做了一个小休闲区,可以看书晒太阳;卫生间相邻的北面小房间做成衣帽间,衣物收纳空间增加,使用更方便。
⑥进门房间作为客房,客房原有墙面做成内嵌鞋柜,布局更合理。
客餐厅:


客餐厅一体,明亮大气。大量运用原木色和白色相衬,视觉上给人素雅、温暖的感觉。木质元素自带禅意,古典字画、盆景等软装搭配,彰显淡雅和高级感。
主卫:


卫生间做了三分离,独立洗漱区,独立马桶间,独立淋浴间,提高使用效率。瓷砖通铺,显得空间更大,没有清洁死角也更好打理,与整体风格也非常统一。兼顾实用性和美观性。
衣帽间:

衣帽间是独立的一个房间,从地面到柜子,都是采用的木质元素,搭配了部分玻璃柜,融合现代和中式,简约又高级;
窗户下面做了梳妆台,也有小书房的功能,使用起来也比较方便。
主卧:


主卧的设计比较简单,没有主卫也没有衣柜,看上去就会简洁;
做了悬空的梳妆台,方便女主人晚间护肤。
米白木经典搭配,使得色调比较柔和、温暖,与整体风格也是非常一致。
Project Information 项目信息°
设计出品 : 汉楠设计
项目名称 : 凤起宸鸣
项目面积 :140㎡
关于我们:
铜陵一家专注于全案设计的公司
设计理念:
设计很有价值但是执行和结果才是一切
服务项目:
别墅设计 I 大宅优化 | 平层设计 | 旧房改造
设计团队:
均毕业于知名设计院校 有多年室内设计经验
联系我们:
红星美凯龙四楼汉楠设计
Tel:18156203708
线上预约设计师:



