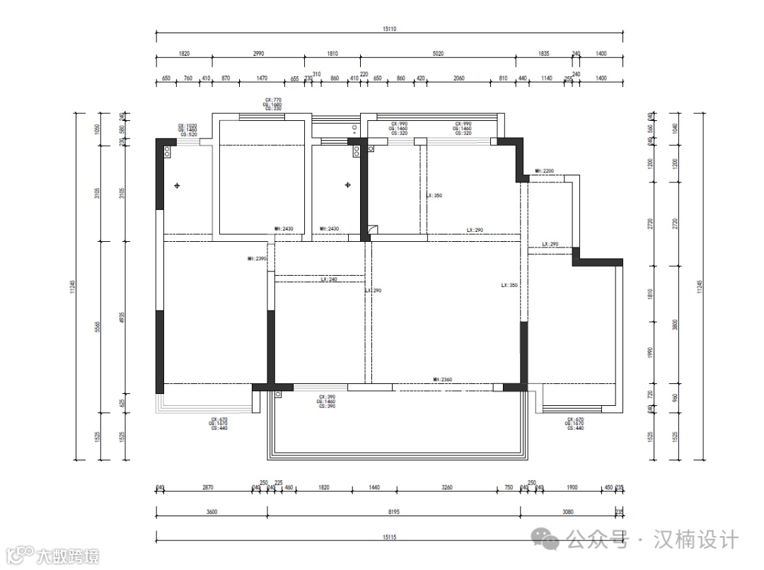
原始建筑结构图
业主需求:
原始房型问题:
门厅的动线过窄,客厅和餐厅的背景墙长度不一样,按照正常思路拉平的话,距离太短,不符合140平房子的开间距离。主卫门朝向床头,布局不合理。
平面方案图
设计思路:
主卧做成一个套间,包含主卫、书房、衣帽间。
改变了主卫的门洞位置,布局更加合理。
考虑到老人偶尔会过来居住,起居习惯可能会不同,老人房和主卧是两个不互扰的空间;晚上活动区域基本在书房、衣帽和主卧室的区域。
原始的大阳台一分为二,晾衣区放在老人房的阳台,能够做到隐蔽晾衣。
预留的小孩房间是在客房位置。
厨房做的是明厨,比较通透明亮,符合业主需求。
客厅的开间距离做了调整,分别向阳台和老人房区域扩展部分尺寸,使得客厅的横向纵向距离都在4米以上,视觉效果更加宽敞明亮。
门厅做了一个动线调整,门厅出口方向与卧室通道对齐,同时避开餐区厨房动线,使得家中横向、纵向都通畅无障碍。
门厅的存在还是非常重要的,首先是更有隐私性,遮挡住家中大部分区域,不会一开门就一览无余;其次是不论是出门还是回家,在门口的位置可以换鞋和放置随身物品,非常方便。
厨房:
厨房有明显分区,中餐区和精加工区;台面操作空间非常大,洗菜切菜备菜都可以同时进行。正对窗户,采光好,用起来非常方便。
客卧一共有两个:老人房和儿童房;
儿童房是做了学习区域和睡觉区域的,书桌紧挨着柜子,方便拿取。
老人房的设计比较简单,家具颜色和地板颜色呼应,色系统一。卧室直通阳台的晾晒区域;
主卫:
客卫也做了干湿分离,有一个单独的淋浴房。白色地砖搭配素雅的花砖,看上去简约而不简单。
Project Information 项目信息°
设计出品 : 汉楠设计
项目名称 : 湖畔天楹
项目面积 :140㎡
关于我们:
铜陵一家专注于全案设计的公司
设计理念:
设计很有价值但是执行和结果才是一切
服务项目:
别墅设计 I 大宅优化 | 平层设计 | 旧房改造
设计团队:
均毕业于知名设计院校 有多年室内设计经验
联系我们:
红星美凯龙四楼汉楠设计
Tel:18156203708
线上预约设计师:


