厌倦了尘世的纷繁嘈杂
每个人都需要一个秘境来搁置自己浮躁的内心
这个秘境可能是一部电影,一本书,一次旅行
也可能,是一个家……
Gucci幻境系列——由Gucci携手西班牙艺术家 Ignasi Monreal合作打造的一个静谧飘渺的乌托邦幻境,作品强调将艺术变为真实的时尚。
本案设计从Gucci幻境系列中提取灵感,通过经典元素与高级色调,重新定义当代城市新贵的艺术与优雅,在对古典致敬的同时也让人们感受当代艺术的美好。
艺术,源于对生活的洞察与追求。让纯粹的情绪,静默于此,在时光的交错里,邂逅一场意犹未尽的艺术乌托邦。
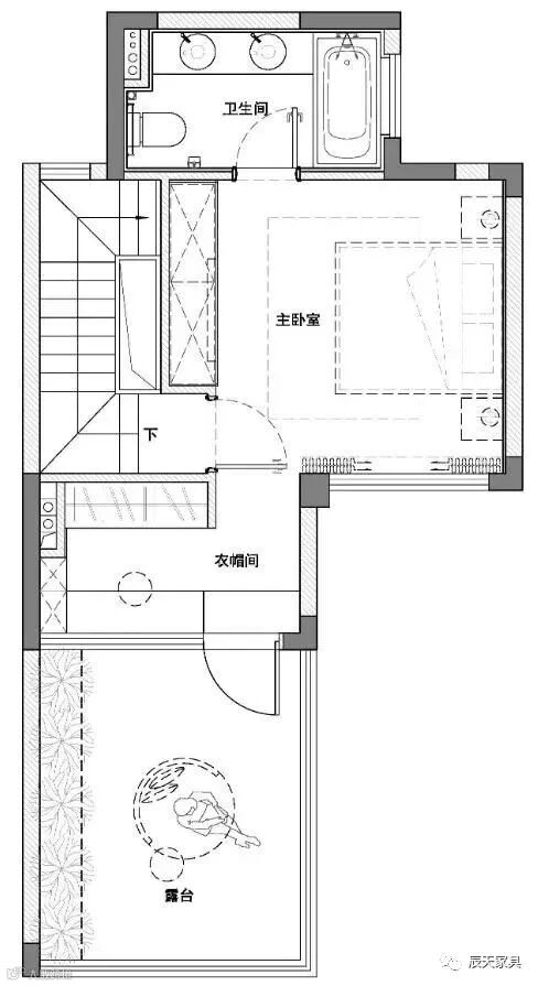
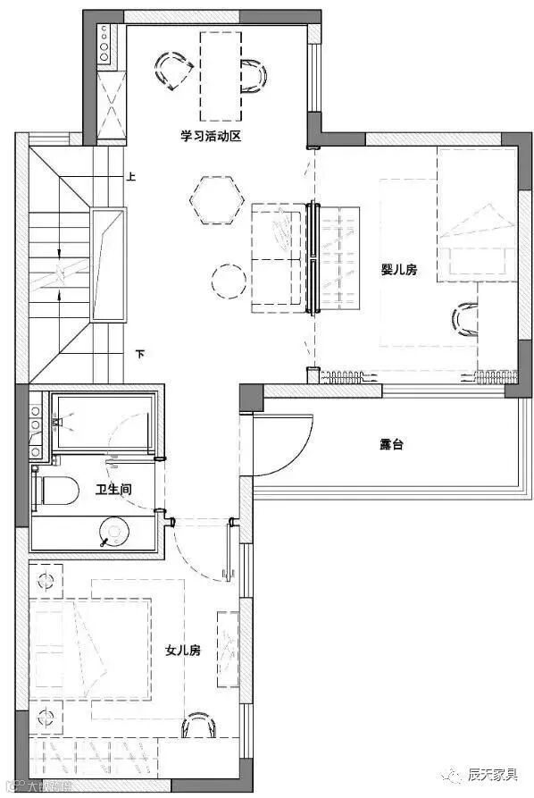
平面图
▽
图片
1F
图片
2F
图片
3F
-End-
本文来源于设计学院
关于辰天家具
长按二维码 关注我们

