
辉耀居家装饰永存“利人之心”,做一个有良知、有社会责任感的公司!
欧式的典雅奢华与现代的时尚简约相碰撞,
形成了简欧风格独特的魅力,
在现代社会中日益受到欢迎。

今天小辉就为大家奉上丽景嘉园的家装效果图,设计师通过多元素材的使用,展现独有的空间美学,塑造出别有质感的家居空间。
▼▼▼
【项目名称】 丽景嘉园
【户型面积】 127㎡
【户 型】 3室2厅1厨2卫2阳台
【风 格】 现代简欧
【设 计 师】 曹军
【项目经理】 徐素庆
简欧风格在古典欧式风格的基础上,以简约的线条代替复杂的花纹,采用更为明快清新的颜色,既保留了古典欧式的典雅与豪华,又更适应现代生活的休闲与舒适。设计上追求空间变化的连续性和形体变化的层次感,在造型设计上既突出凹凸感,又有优美的弧线。

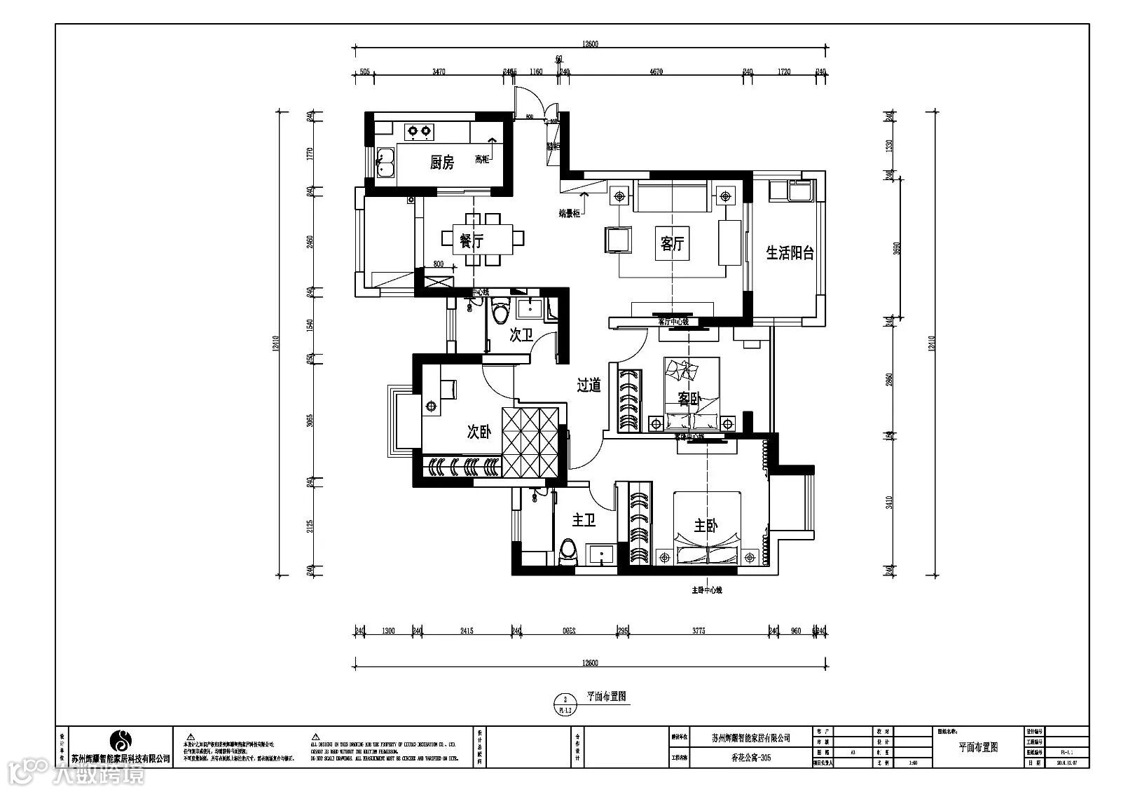
平面布置图

▲ 高贵典雅的客厅

▲充满浪漫气息的餐厅

▲简约时尚的过道

▲质朴优雅的门厅

如果对上文介绍的装修效果感兴趣的话,那就赶快来关注小辉家的微信号,我们会从专业的角度解答您的疑惑,满足您个性化的家装需求!

